Spacious period home near beach with annexe and approved extension plans.
Four double bedrooms in main house plus self-contained one-bedroom annexe
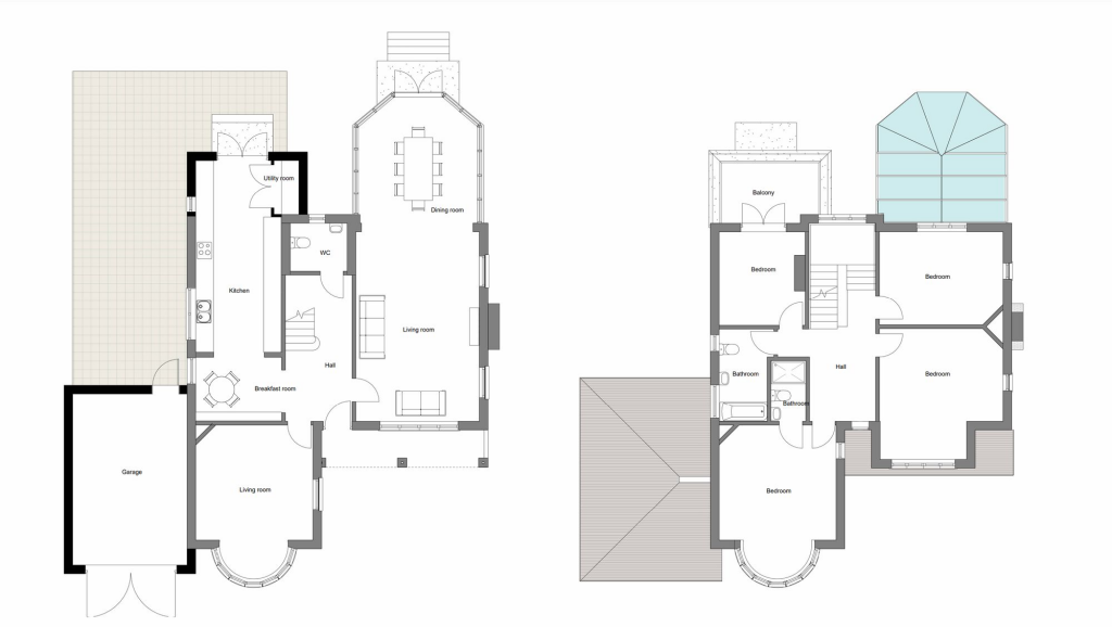
Set on a very large plot close to Canford Cliffs beach, this extensively renovated 1920s detached house blends original 1930s character with high-spec modern upgrades. The main house offers four double bedrooms, two family bathrooms (including an en suite to the master) and generous reception rooms with high ceilings and a conservatory; a self-contained one-bedroom annexe within the grounds provides flexible guest accommodation or potential rental income.
The heart of the home is a luxury kitchen/breakfast room fitted to a modern specification, plus two large reception rooms with working log burners and an easy flow to the landscaped rear garden and generous patio. Recent upgrades include new electrics and plumbing, a Worcester pressurised heating system, modern double glazing and quality finishes throughout. Approved planning permission (APP/21/01765/F) exists for a loft and side extension, offering clear scope to enlarge the living space.
Practical benefits include secure electric gates, off-street parking for multiple cars or a boat, video entry and excellent local transport links, including a walk to Branksome station and nearby Penn Hill parade. The property is close to top-rated independent and state schools and is well suited to families seeking space, professionals wanting easy commutes to Bournemouth/Poole, or investors interested in the annexe revenue potential.
Notable negatives are set out plainly: council tax is described as quite expensive and the local crime level is above average. Some garden fixtures (outdoor kitchen, hot tub) are negotiable and may not remain. Buyers should verify all services and permissions; a full survey is recommended before commitment.
5 bedroom detached house for sale in Canford Cliffs Road, Branksome Park, Poole, BH13 — £1,695,000 • 5 bed • 3 bath • 2600 ft²
4 bedroom detached house for sale in Canford Cliffs Avenue, Lower Parkstone, Poole BH14 — £1,500,000 • 4 bed • 4 bath • 3345 ft²
5 bedroom detached house for sale in Maxwell Road, Canford Cliffs, Poole, Dorset, BH13 — £1,650,000 • 5 bed • 4 bath • 2457 ft²
5 bedroom detached house for sale in Newton Road, Poole, Dorset, BH13 — £3,895,000 • 5 bed • 6 bath • 6547 ft²
4 bedroom detached house for sale in Lawrence Drive, Canford Cliffs, Poole, BH13 — £2,350,000 • 4 bed • 4 bath • 4454 ft²
5 bedroom detached house for sale in Dalkeith Road, Poole, Dorset, BH13 — £1,950,000 • 5 bed • 4 bath • 3275 ft²


























































































































