No onward chain, ready to move into
Central Poynton village location, shops and amenities nearby
Well-maintained communal gardens, residents’ lounge, lift access
Modern fitted kitchen and shower room, built-in bedroom wardrobes
Off-road resident parking plus ample visitor parking
Short lease (approx. 44 years) — may affect mortgage availability
High annual service charge (£3,720 average) and ground rent £60
Electric storage heaters — potential for higher energy costs
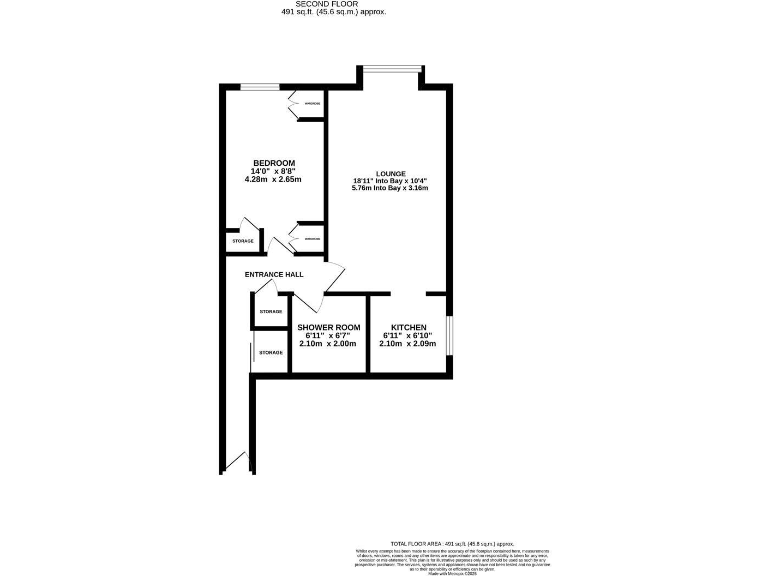
Set in the heart of Poynton village, this second-floor one-bedroom retirement apartment offers a convenient, low-maintenance lifestyle for downsizers. The building has well-kept communal gardens, resident lounge, lift access, house manager and laundry facilities, making daily life straightforward and sociable. The living room’s bay window and the bedroom’s garden aspect provide pleasant natural light and a homely feel.
The apartment includes a modern fitted kitchen and shower room, built-in bedroom wardrobes and useful hallway storage. Off-road resident parking and ample visitor bays add practical value for residents and visiting family. Sold with no onward chain, the home is move-in ready for someone seeking village-centre convenience.
Buyers should note material lease and cost considerations. The lease has approximately 44 years remaining which may restrict mortgage options; buyers should check lender criteria before offer. Annual service charges are substantial (£3,720 average) and there is a small ground rent (£60), both important ongoing costs to factor into affordability. Heating is by electric storage heaters, which can influence energy bills.
This apartment suits a retiree or downsizer wanting a managed community near shops, cafes and local amenities. It offers a comfortable, secure base with communal facilities but carries the practical constraints of a shorter lease and notable service costs.
1 bedroom retirement property for sale in Legh Close, Poynton, SK12 — £145,000 • 1 bed • 1 bath • 404 ft²
1 bedroom apartment for sale in Holland Court, Willow Close, Poynton, Stockport, Cheshire, SK12 1PL, SK12 — £175,000 • 1 bed • 1 bath • 472 ft²
1 bedroom apartment for sale in Cedarwood, Legh Close, Poynton, Stockport, Cheshire, SK12 1JW, SK12 — £165,000 • 1 bed • 1 bath • 398 ft²
1 bedroom apartment for sale in Cedarwood, Legh Close, Poynton, Stockport, Cheshire, SK12 1JW, SK12 — £148,000 • 1 bed • 1 bath • 393 ft²
1 bedroom apartment for sale in CEDARWOOD, LEGH CLOSE, Poynton, SK12 — £165,000 • 1 bed • 1 bath • 603 ft²
2 bedroom apartment for sale in Park View Court, Park Avenue, Poynton, SK12 — £300,000 • 2 bed • 1 bath • 745 ft²






























