LU2 7PQ - 1 bedroom maisonette for sale in Clarendon Road, LUTON, Bed…

View on Property Piper

1 bedroom maisonette for sale in Clarendon Road, LUTON, Bedfordshire, LU2

Summary - 6A CLARENDON ROAD LUTON LU2 7PQ

1 bed 1 bath Maisonette

Compact renovated one-bedroom with garden, near station — ideal for first buyers or investors..
- One-bedroom ground-floor maisonette with private garden
- Newly renovated interior, ready to occupy
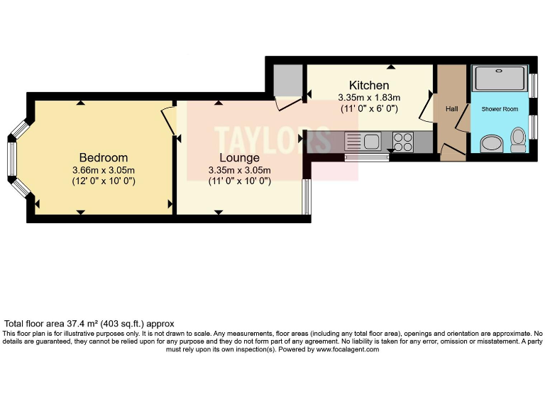
- Approx 403 sq ft — compact living space
- Leasehold with around 100 years remaining
- Excellent transport links and walking distance to station
- Very low council tax — lower ongoing costs
- High local crime rate — consider security measures
- Courtyard exterior needs maintenance; solid-brick walls likely uninsulated
A well-presented one-bedroom ground-floor maisonette with a private garden, recently renovated and ready to move into. The compact layout (about 403 sq ft) suits a first-time buyer, commuter or investor seeking a low-maintenance pied-à-terre close to Luton town centre and mainline rail links.

The property is leasehold with around 100 years remaining, double glazing, mains gas central heating and a solid-brick Victorian build that gives character. Local amenities, schools and frequent transport connections are within walking distance, making daily life convenient and attractive for commuters.

Notable positives include the private garden, excellent mobile signal and fast broadband, and very low council tax. Important considerations: the home is small, the area records higher-than-average crime levels, the courtyard exterior will need some maintenance, and the solid-brick walls likely lack modern cavity insulation. These points are factual factors to weigh alongside the convenient location and recent refurbishment.

Good for buyers wanting an affordable city-base to personalise or hold as a rental; the property’s size and local context mean it will particularly appeal to single buyers, students or investors targeting town-centre lets.

Property Details

Image Descriptions

Rooms

Textual Property Features

Target Audience

AI Tags

Detected Visual Features

EPC Details

Nearby Schools

Nearest Bars And Restaurants

,,,,}

Nearest General Shops

,,}

Nearest Grocery shops

,,}

Nearest Supermarkets

,,}

Nearest Religious buildings

,,}

Nearest Medical buildings

,,,}

Nearest Airports

}

Nearest Leisure Facilities

,,,,}

Nearest Tourist attractions

,,}

Nearest Train stations

,,,,}

Nearest Bus stations and stops

,,,,}

Nearest Hotels

,,}

Tags

Local Market Stats

AirBnB Data

Similar Properties

Meta

High Res Images

Compatible Images

Low res Images

Thumbnails

Raw Images

High Res Floorplan Images

Compatible Floorplan Images

Low res Floorplan Images

FloorplanImages Thumbnail

Raw Floorplan Images