Low-maintenance, single-storey living with generous garden and off-street parking.
New roof, new boiler and full rewire within last five years
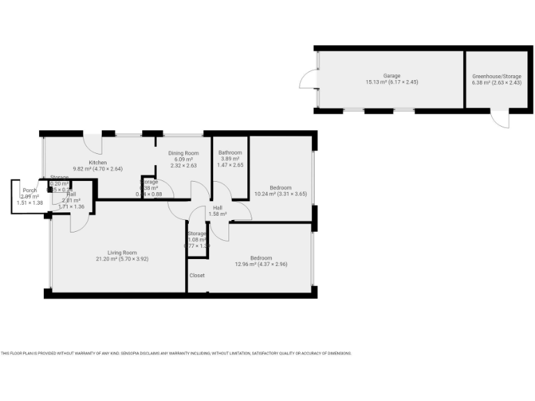
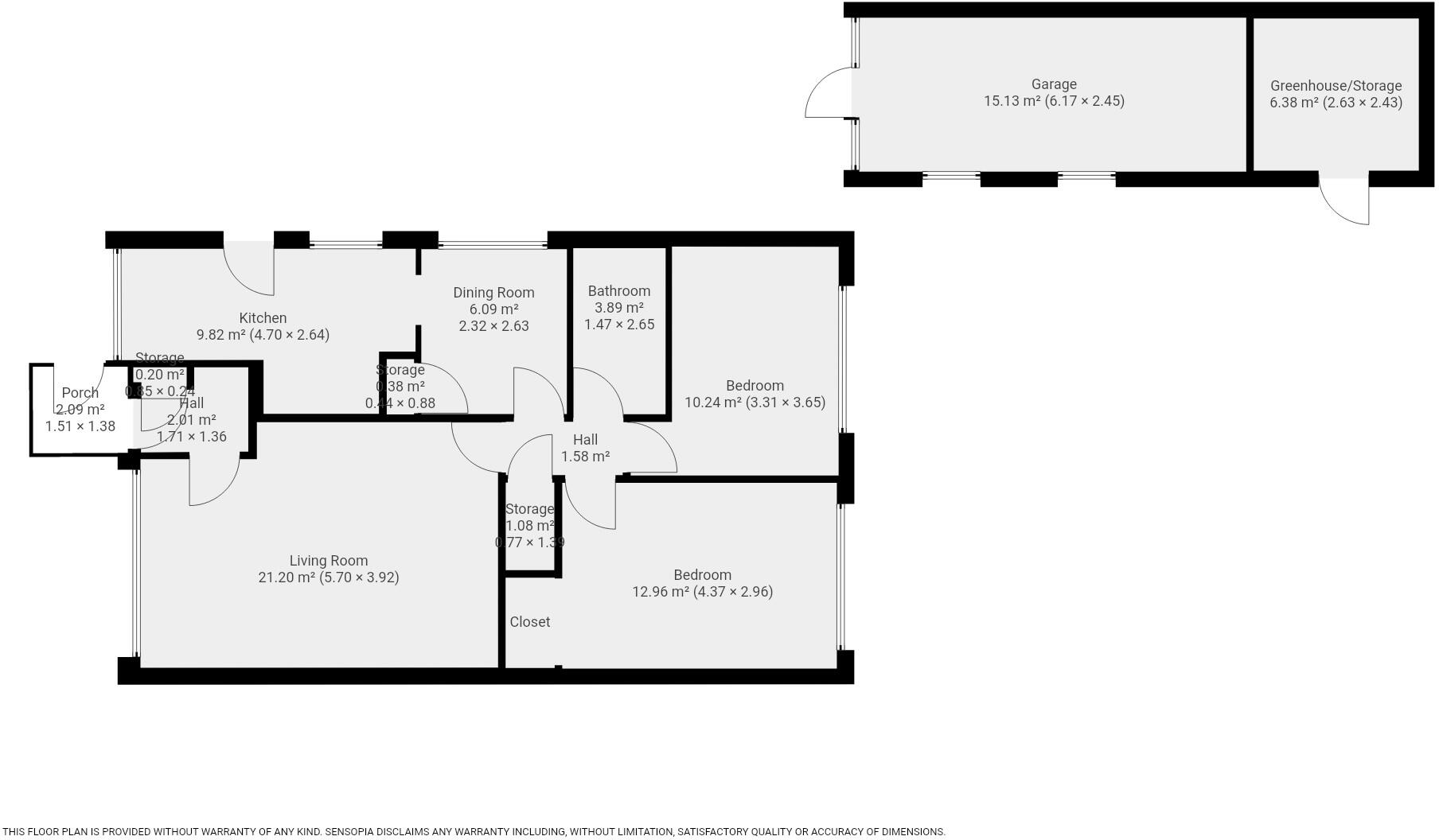
Two good-sized bedrooms, single ground-floor bathroom
Generous private rear garden with versatile outhouse space
Off-street private driveway for convenient parking
Semi-detached 1976–82 build with standard ceiling heights
Double glazing present; install date unknown
Average local broadband speeds; mobile signal excellent
Affordable council tax in an affluent, very low-crime area
Comfortable, newly renovated bungalow in a quiet Southport street, finished to a high standard and ready to move into. The single-storey layout suits downsizers or buyers seeking step-free living, with two well-proportioned bedrooms, a bright living room with a fireplace and a modern kitchen with dining space. Recent upgrades include a full rewire, new roof and new boiler completed within the last five years.
Outside, a generous, private rear garden and a paved driveway provide easy outdoor living and off-street parking. An outhouse at the rear adds practical storage and hobby space currently used as a greenhouse and home gym. The plot size gives scope for gardening, small extensions or further landscaping subject to planning.
Practical points to note: the property is a semi-detached bungalow built in the late 1970s/early 1980s with standard ceiling heights and cavity walls. Double glazing is installed but the fitment date is unknown. Broadband speeds are average in the area, and there is a single family bathroom. Overall the home offers low-maintenance, comfortable living in an affluent, low-crime neighbourhood close to schools, local shops and bus links.
2 bedroom semi-detached bungalow for sale in Holmdale Avenue, Southport, PR9 — £230,000 • 2 bed • 1 bath • 793 ft²
2 bedroom bungalow for sale in Croyde Close, Southport, Merseyside, PR9 9FS, PR9 — £175,000 • 2 bed • 1 bath • 526 ft²
3 bedroom bungalow for sale in Waterfoot Avenue, Southport, Merseyside, PR8 3TE, PR8 — £250,000 • 3 bed • 1 bath • 784 ft²
2 bedroom bungalow for sale in Seacroft Crescent, Southport, Merseyside, PR9 9FR, PR9 — £270,000 • 2 bed • 1 bath • 838 ft²
2 bedroom detached bungalow for sale in Balmoral Drive, Southport, PR9 — £130,000 • 2 bed • 1 bath • 657 ft²
2 bedroom detached bungalow for sale in Crockleford Avenue, Southport, PR8 — £260,000 • 2 bed • 1 bath • 638 ft²


































































































