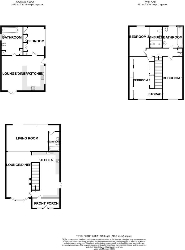
Four-bedroom home with a rare self-contained annexe and extension potential..
Self-contained annexe with kitchen, bathroom and private garden
Bright extended open-plan living with bi-folding doors to garden
Previously approved planning permission for driveway and side extension
Four generous bedrooms; en-suite plus modern family bathroom
Driveway, garage and decent private rear garden included
System-built walls with assumed no insulation — may need upgrading
High local crime and area deprivation — consider location factors
Council Tax Band B; low running costs
This spacious four-bedroom semi-detached house includes a rare self-contained annexe—ideal for multigenerational living, long-term guests, or reliable rental income. The ground floor extension and stylish open-plan kitchen/diner with bi-folding doors create a bright family hub that opens directly onto the private garden. High-quality finishes throughout mean the main house is largely move-in ready.
The detached annexe at the rear has its own kitchen, bathroom and private outdoor space, offering genuine versatility and extra income potential. Previously approved planning permission for a large front driveway and side extension provides clear scope to increase living space and future resale value.
Buyers should note material local factors: the immediate area has higher deprivation and a recorded high crime rate. The house is a system-built construction with assumed limited wall insulation, which may affect long-term energy efficiency and could require upgrading. Despite these issues, the property benefits from double glazing, mains gas central heating and a low council tax band B, keeping running costs down.
This home suits growing families who need flexible accommodation or investors seeking an annexe with rental appeal. It balances ready-made comfort with realistic development potential—viewings recommended for those who value space, versatility and clear scope to add value.
3 bedroom semi-detached house for sale in Dowland Walk, Basildon, SS15 — £500,000 • 3 bed • 4 bath
4 bedroom end of terrace house for sale in SELF CONTAINED ANNEX - Little Chittock, Basildon, SS14 — £400,000 • 4 bed • 3 bath • 1619 ft²
3 bedroom bungalow for sale in Deirdre Avenue, Wickford, Essex, SS12 — £500,000 • 3 bed • 2 bath • 895 ft²
3 bedroom semi-detached bungalow for sale in Friern Gardens, Wickford, SS12 — £500,000 • 3 bed • 1 bath • 1045 ft²
4 bedroom semi-detached house for sale in Burnt Mills Road, Basildon, SS13 — £500,000 • 4 bed • 3 bath • 1368 ft²
4 bedroom semi-detached house for sale in St. Teresa's Close, Basildon, Essex, SS14 — £500,000 • 4 bed • 3 bath • 1304 ft²


















































































































































































