LA16 7BJ - 2 bedroom terraced house for sale in John Street, AskamInFu…

View on Property Piper

2 bedroom terraced house for sale in John Street, Askam-In-Furness, LA16 7BJ, LA16

Summary - 63 John Street,ASKAM-IN-FURNESS,LA16 7BJ LA16 7BJ

2 bed 1 bath Terraced

**Standout Features:**
- Two double bedrooms
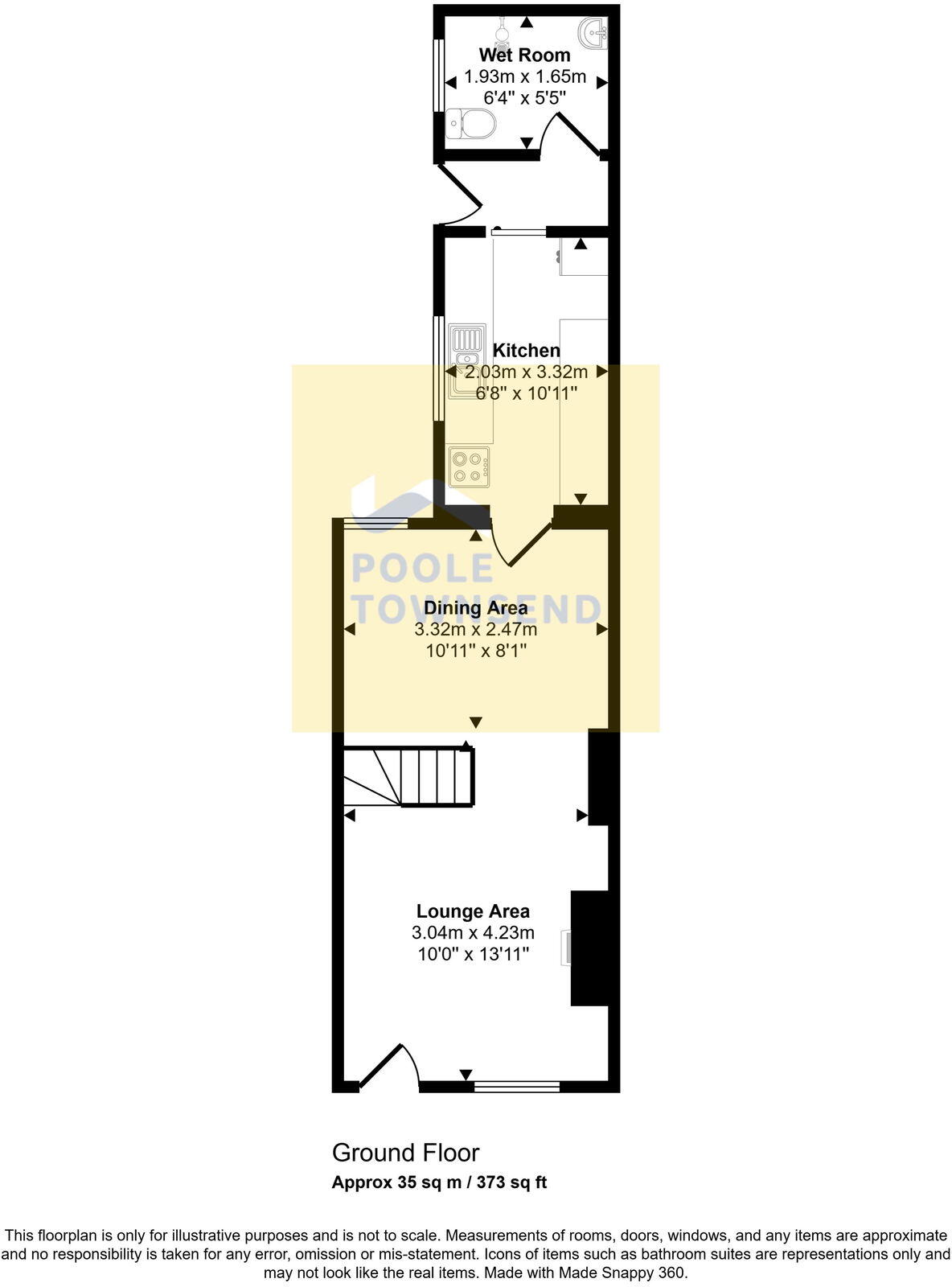
- Open-plan lounge diner with double-sided galley kitchen
- Ground floor bathroom with modern wet room suite
- Gas-fired central heating with a modern Ferroli boiler
- UPVC framed double glazing
- Freehold tenure, chain-free sale
- Low council tax band (A)
- Excellent mobile and fast broadband signals

**Concerns:**
- Requires full renovation
- Small plot size typical of terraced homes
- Limited scenic views, situated in an urban setting

This mid-terraced home in the popular coastal village of Askam offers an exciting renovation project for investors or first-time buyers looking for a home to personalize. The property features an open-plan living area with a double-sided galley kitchen and a modern wet room, accommodating functional and cozy living. The upstairs comprises two spacious double bedrooms, providing ample space for families or guests.

While the property is in need of full modernisation, it boasts a modern heating system and double glazing, reducing future investment risks. Its location in a low-crime area with access to local amenities and reputable schools enhances its family-friendly appeal. This freehold, chain-free property is primed for someone ready to tap into its potential—don't miss out on this rare opportunity to craft your ideal home in a desirable location!

Property Details

Brochure Descriptions

Floorplan Description

Rooms

Textual Property Features

Nearby Schools

Nearest Bars And Restaurants

,,,,}

Nearest General Shops

,,}

Nearest Grocery shops

,,}

Nearest Supermarkets

,,}

Nearest Religious buildings

,,}

Nearest Medical buildings

,,,}

Nearest Leisure Facilities

,,,,}

Nearest Tourist attractions

,,}

Nearest Train stations

,,,,}

Nearest Bus stations and stops

,,,,}

Nearest Hotels

,,}

Local Market Stats

Similar Properties

Meta

High Res Images

Compatible Images

Low res Images

Thumbnails

Raw Images

High Res Floorplan Images

Compatible Floorplan Images

Low res Floorplan Images

FloorplanImages Thumbnail

Raw Floorplan Images