Spacious, newly refurbished ground-floor flat in a converted chapel opposite parkland.
Large 1,375 sq ft ground-floor apartment with high ceilings and tall windows
Private patio and double garage with electric doors included
Newly refurbished throughout; brand-new Wren kitchen and two new bathrooms
Two main bedrooms plus study/occasional third bedroom, big living/dining space
Long lease (996 years) and 1/10th share of the freehold; no ground rent
Service charge c. £3,500 pa (£350 pcm); council tax Band F (expensive)
Solid brick historic building — likely no cavity insulation, consider retrofit
10–15 minute walk to town, Broadway and railway station; opposite parkland
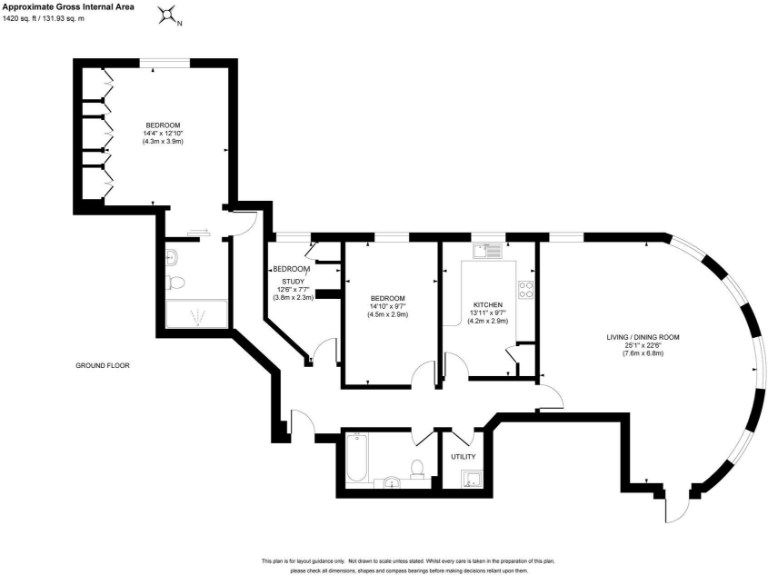
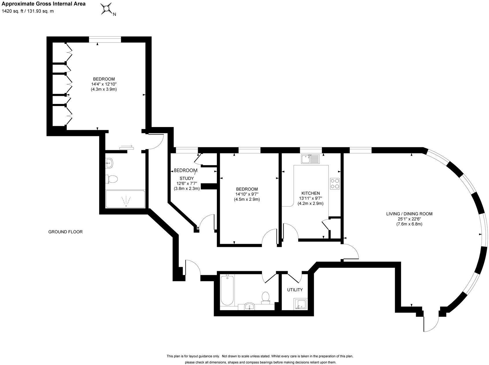
This impressive ground-floor apartment occupies 1,375 sq ft in a converted Gothic Revival chapel, opposite Beech Hurst Gardens. Recently refurbished throughout, it combines period character — tall leaded windows and high ceilings — with a brand-new Wren kitchen, two new bathrooms and modern heating. The private patio and double garage with electric doors add practical outdoor and storage space rarely found with flats.
The layout suits families or professional couples: two main double bedrooms plus a study/occasional third bedroom, a large open-plan living/dining area and separate utility space. The property benefits from a very long lease (996 years) and a 1/10th share of the freehold, with no ground rent payable. It is an easy 10–15 minute walk to the town centre, Broadway and the train station, while the setting feels leafy and secluded.
Be clear about ongoing costs and retrofit potential. The service charge is approximately £3,500 per year (£350 pcm), and council tax is in Band F. The building is a historic, solid-brick construction with no assumed cavity insulation — buyers may want to consider future insulation or energy-efficiency works despite the current EPC C rating.
Overall, this is a sizeable, character-rich ground-floor home with modern finishes and strong convenience to local amenities. It will particularly suit buyers seeking generous single-floor living, historic charm and secure parking, but those prioritising the lowest-running costs should factor in service charge and potential insulation work.
3 bedroom penthouse for sale in Bolnore Road, Chapel Heights Bolnore Road, RH16 — £800,000 • 3 bed • 3 bath • 1877 ft²
2 bedroom apartment for sale in Hett Close, Ardingly, RH17 — £485,000 • 2 bed • 2 bath • 1135 ft²
3 bedroom apartment for sale in Cavendish House, Southdowns Park, Haywards Heath, RH16 — £350,000 • 3 bed • 2 bath • 858 ft²
3 bedroom ground floor flat for sale in Southdowns Park, Haywards Heath, RH16 — £350,000 • 3 bed • 1 bath • 611 ft²
1 bedroom flat for sale in Sydney Road, Copperwood Court, RH16 — £225,000 • 1 bed • 1 bath • 680 ft²
1 bedroom retirement property for sale in Kleinwort Close, Hurst Place, RH16 — £275,000 • 1 bed • 1 bath • 700 ft²






























































































































































