Spacious modern family house with riverside walks and gated privacy.
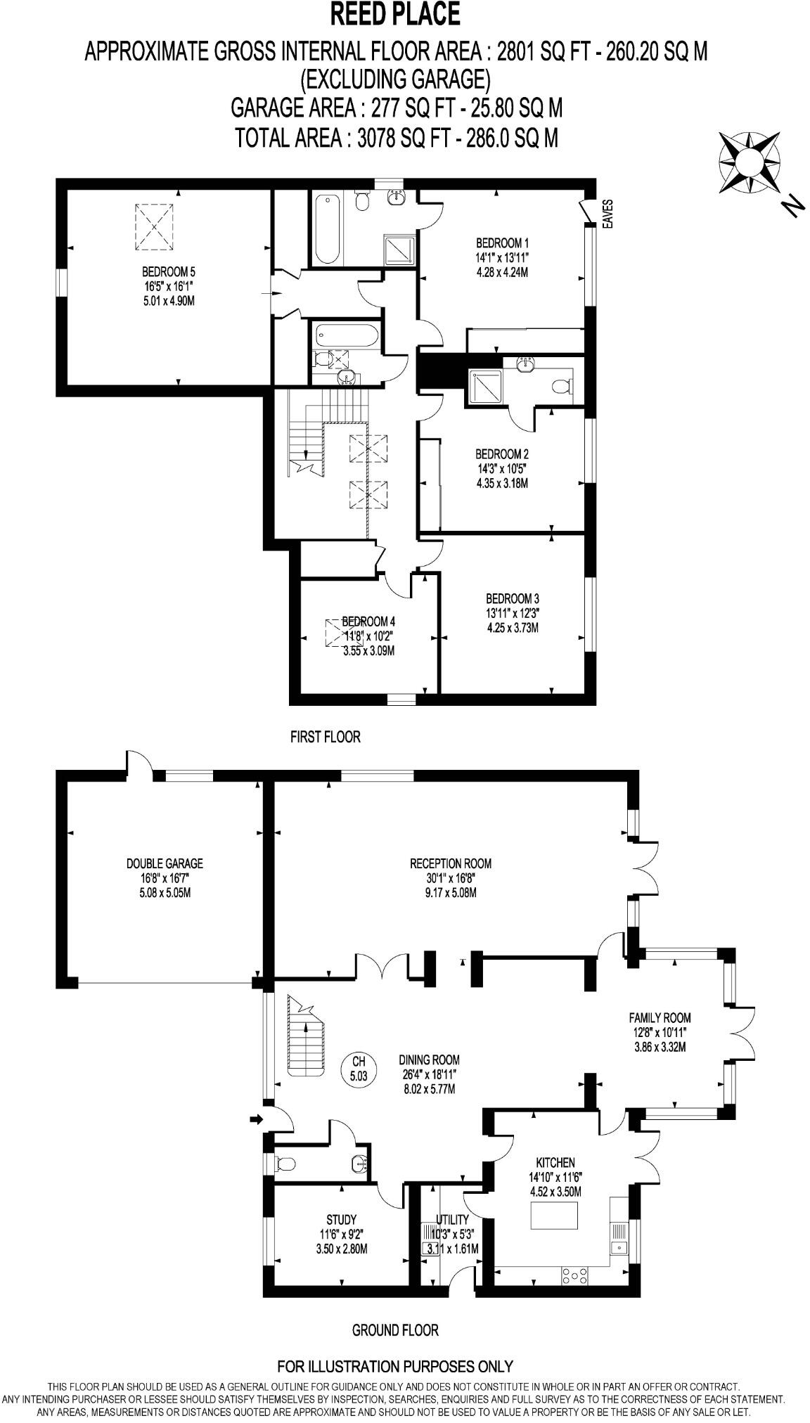
Five double bedrooms and three bathrooms across 2,801 sqft
Set within a gated enclave on Towpath, this contemporary five-bedroom detached home offers expansive family space and immediate access to adjoining fields and riverside walks. Built in 2021, the house feels modern throughout with large windows, timber cladding and generous room proportions across 2,801 sqft. The double garage, driveway parking and sizeable private garden with decking make it practical for family life and entertaining.
The ground floor layout centres on a large kitchen with island, separate utility, two reception rooms and a flexible study/ground-floor bedroom. Upstairs are five double bedrooms and three bathrooms, including a principal suite, giving comfortable separation for children, guests and home working. Heating is by air-source heat pump with underfloor systems, and an EPC rating of C reflects good energy performance for a home of this size.
This property’s riverside setting and shared access to open fields are standout lifestyle features — ideal for families with dogs or those who value outdoor space and scenic walks. The gated development adds privacy and a village-like feel while remaining close to Shepperton amenities and rail links to London.
Buyers should note material considerations: the postcode carries a medium flood risk due to proximity to the river and council tax is described as quite expensive. While finished to a contemporary standard, some buyers may wish to tailor internal details to personal taste. Overall, the house delivers modern construction, generous accommodation and a rare riverside plot within a secure development.
4 bedroom terraced house for sale in Sheep Walk, Shepperton, TW17 — £540,000 • 4 bed • 3 bath • 1239 ft²
4 bedroom detached house for sale in Shepherds Close, Shepperton, TW17 — £800,000 • 4 bed • 2 bath • 1473 ft²
5 bedroom detached house for sale in Park Avenue, Wraysbury, Staines-upon-Thames, Berkshire, TW19 — £1,900,000 • 5 bed • 5 bath • 3940 ft²
3 bedroom detached house for sale in Ferry Lane , Shepperton, TW17 — £1,000,000 • 3 bed • 2 bath • 2574 ft²
3 bedroom detached house for sale in Chertsey Road, Chertsey, Surrey, TW17 — £799,950 • 3 bed • 1 bath • 1179 ft²
5 bedroom detached house for sale in Thames Street, Sunbury-On-Thames, TW16 — £1,575,000 • 5 bed • 3 bath • 3486 ft²














































































































