Compact family home near Ilford shopping and Outstanding primary school.
Freehold Victorian mid-terrace, three bedrooms
This well-presented three-bedroom Victorian mid-terrace offers a compact, practical home in Manor Park with straightforward, low-maintenance outdoor space. The property’s freehold tenure, double-glazed windows and gas central heating make it move-in ready for families or first-time buyers seeking value near Ilford’s amenities.
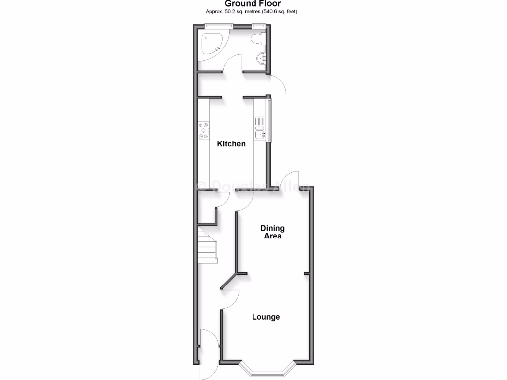
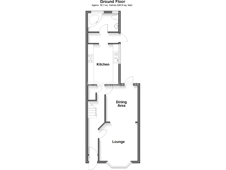
Inside, a spacious galley kitchen and connected lounge/dining area provide sensible everyday living. The ground-floor bathroom plus a convenient first-floor cloakroom add flexibility for busy mornings. A small outbuilding in the rear garden gives useful storage or workshop space.
The house sits on a small plot (approx. 734 sq ft internal) with period character such as a bay window and chimney pot. It benefits from excellent mobile signal and fast broadband, and is close to local shops, Monega Primary (Outstanding) and bus links to Ilford station and the Exchange Shopping Centre. Council tax is affordable and flood risk is low.
Buyers should note the home is compact and built with solid brick walls likely without cavity insulation; loft/wall insulation status is not confirmed. There is a single full bathroom, and the property is in an area with higher deprivation metrics despite very low local crime. Interested parties should verify fixtures, services and any planning history before purchase.
3 bedroom terraced house for sale in Monega Road, Manor Park, E12 — £347,000 • 3 bed • 1 bath • 1055 ft²
3 bedroom end of terrace house for sale in Landseer Avenue, Manor Park, London, E12 — £425,000 • 3 bed • 1 bath • 783 ft²
3 bedroom end of terrace house for sale in Rectory Road, Manor Park, E12 — £480,000 • 3 bed • 1 bath • 819 ft²
3 bedroom terraced house for sale in Monega Road, Manor Park, E12 6UF, E12 — £525,000 • 3 bed • 2 bath • 936 ft²
3 bedroom terraced house for sale in Colchester Avenue, Manor Park, E12 5LF, E12 — £420,000 • 3 bed • 1 bath • 807 ft²
3 bedroom semi-detached house for sale in Wolferton Road, London, E12 5PD, E12 — £485,000 • 3 bed • 1 bath • 1742 ft²


















































