**Standout Features:**
- Freehold investment with six self-contained flats.
- Total of seven bedrooms and six bathrooms.
- Development potential with full control over future leases.
- Located in a vibrant, affluent neighborhood with excellent amenities.
- Cash buyers only; property will be sold at auction.
- Current EPCs not available but can be arranged upon flat completion.
**Concise Summary:**
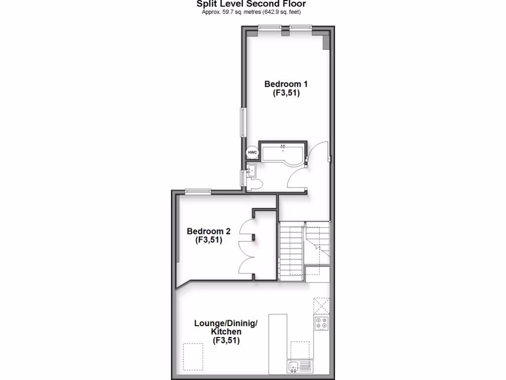
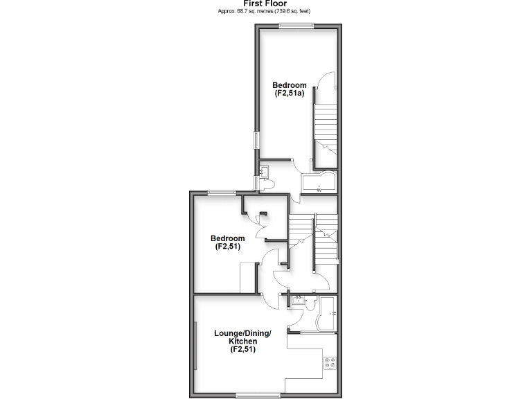
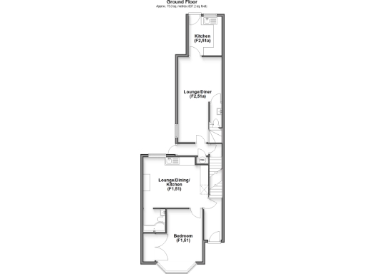
Seize the rare opportunity to acquire a freehold block of six self-contained flats, ideally situated in an affluent inner-city area. This property, constructed between 2003-2006, offers great potential for savvy investors looking to establish a solid rental income with the flexibility to redevelop or tweak the layout as desired. With five flats in the main building and one with a private entrance, you'll have full control over lease agreements and tenant selection, as no leases currently exist.
The property features a charming external garden, currently accessible from only select flats, allowing potential reallocation or private usage at the new owner's discretion. Each flat has individual characteristics, from modern open-plan designs to unique split-level offerings. Although maintenance is required, the solid timber frame construction and double glazing provide a sturdy foundation for renovation. Given its cash-only auction status, this unique investment opportunity is not expected to last long—act quickly to explore the significant potential this property holds for passive income and personal investment growth!
 4 bedroom block of apartments for sale in St. John's Terrace Road, Redhill, Surrey, RH1 — £675,000 • 4 bed • 4 bath
 4 bedroom block of apartments for sale in St. John's Terrace Road, Redhill, Surrey, RH1 — £675,000 • 4 bed • 4 bath 4 bedroom flat for sale in Queens Road, East Grinstead, West Sussex, RH19 — £400,000 • 4 bed • 4 bath • 366 ft²
 4 bedroom flat for sale in Queens Road, East Grinstead, West Sussex, RH19 — £400,000 • 4 bed • 4 bath • 366 ft² Property for sale in  5 Flats - Freehold & Building Plot Station Road, Merstham, Redhill, Surrey, RH1 3EE, RH1 — £375,000 • 1 bed • 1 bath • 676 ft²
 Property for sale in  5 Flats - Freehold & Building Plot Station Road, Merstham, Redhill, Surrey, RH1 3EE, RH1 — £375,000 • 1 bed • 1 bath • 676 ft² 1 bedroom flat for sale in Somers Road, Reigate, Surrey, RH2 — £270,000 • 1 bed • 1 bath • 496 ft²
 1 bedroom flat for sale in Somers Road, Reigate, Surrey, RH2 — £270,000 • 1 bed • 1 bath • 496 ft² 1 bedroom ground floor flat for sale in Garlands Road, Redhill, RH1 — £150,000 • 1 bed • 1 bath • 347 ft²
 1 bedroom ground floor flat for sale in Garlands Road, Redhill, RH1 — £150,000 • 1 bed • 1 bath • 347 ft² 2 bedroom flat for sale in Bancroft Court, Reigate, Surrey, RH2 — £375,000 • 2 bed • 1 bath • 848 ft²
 2 bedroom flat for sale in Bancroft Court, Reigate, Surrey, RH2 — £375,000 • 2 bed • 1 bath • 848 ft²






































































































































