**Standout Features:**
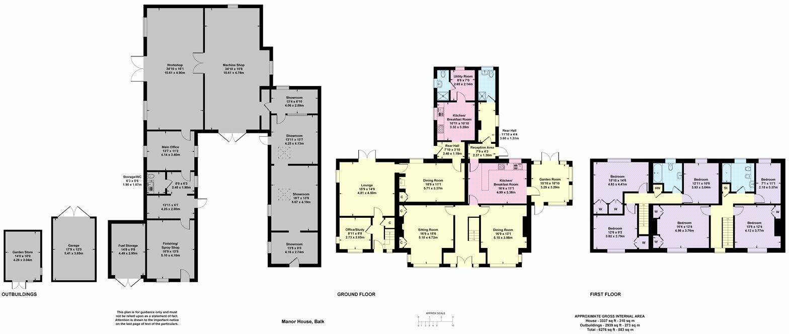
- Period six-bedroom farmhouse with potential for multi-generational living
- Currently divided into two dwellings; ideal for rental income or family needs
- 2,939 sq ft of insulated brick outbuildings, perfect for business or conversion
- Expansive private garden of approximately one acre, providing ample outdoor space
- Outstanding location with excellent access to Thirsk and York
- Off-street parking for several vehicles
- Very low crime rate and fast broadband speeds
**Concerns:**
- EPC Rating = E indicates potential improvements in energy efficiency needed
- Some structural considerations due to the building's historical nature, including solid brick walls with assumed lack of insulation
This enchanting period farmhouse, nestled at the foot of the scenic Hambleton Hills, offers a remarkable blend of comfort and potential. The property’s spacious layout includes two distinct living areas, making it perfect for families seeking shared spaces while maintaining privacy, or for investors looking to capitalize on rental opportunities. With generous grounds, a large gravel driveway, and an extensive lawned garden that invites tranquility, envision hosting serene outdoor gatherings or enjoying peaceful afternoons amidst nature.
The impressive brick outbuildings present a unique opportunity for business expansion or conversion into additional living quarters, subject to necessary planning approvals. Ideally located only two miles from Thirsk, with easy access to major routes and the historic City of York just a short drive away, this farmhouse is not just a residence but a potential lifestyle investment. Don't miss the chance to secure this rare gem in a desirable village location with room for growth and personal touch—properties like this won't last long.
6 bedroom detached house for sale in Balk, Thirsk, North Yorkshire, YO7 — £695,000 • 6 bed • 4 bath • 3374 ft²
4 bedroom detached house for sale in Bagby, Thirsk, North Yorkshire, YO7 — £1,950,000 • 4 bed • 1 bath • 3866 ft²
8 bedroom detached house for sale in Pickhill, Thirsk, YO7 4JG, YO7 — £1,250,000 • 8 bed • 4 bath • 2544 ft²
5 bedroom detached house for sale in Baldersby, Thirsk, YO7 — £995,000 • 5 bed • 3 bath • 3000 ft²
3 bedroom detached house for sale in Pickhill, Thirsk, North Yorkshire, YO7 — £525,000 • 3 bed • 4 bath • 2302 ft²
5 bedroom guest house for sale in Moor Lane, Knayton, Thirsk, YO7 — £1,750,000 • 5 bed • 3 bath • 3357 ft²






























































































































