**Standout Features:**
- Two-bedroom first-floor flat in central Christchurch
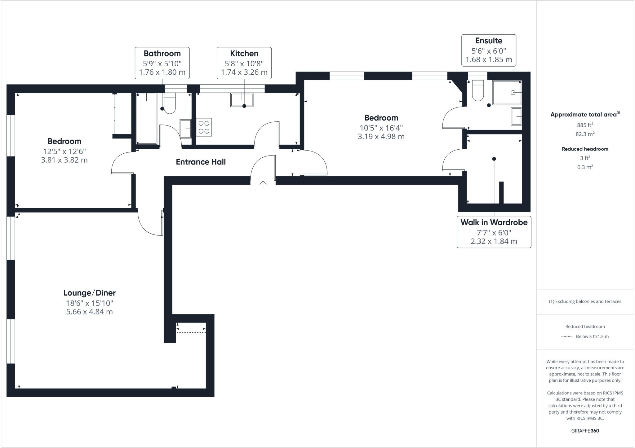
- Generously sized at 885 sq ft with a spacious living area
- Vacant possession and chain-free sale
- Attractive leasehold with approximately 94 years remaining
- Renovation potential to create a modern living space
- Close proximity to amenities, shops, and public transport (train & bus)
- Ideal for first-time buyers or investors
**Concerns:**
- Requires refurbishment; dated decor and maintenance needed
- High crime rate in the vicinity may be a consideration for families
- Limited insulation could impact energy efficiency
This two-bedroom first-floor flat is a promising opportunity for anyone looking to invest in property in the heart of Christchurch. With an impressive 885 sq ft of living space, it offers room for creativity and personalization, making it an excellent choice for first-time buyers or investors looking for rental potential. The unique layout features a bright lounge/diner flooded with natural light, two comfortable bedrooms — one with an ensuite — and ample room for modern living.
Although the flat requires significant renovations, its central location near shops, cafes, and the mainline train station provides the perfect backdrop for urban living. With the added advantage of being chain-free and vacant, you can take possession immediately and begin your transformation. However, prospective buyers should be mindful of the high local crime rates and the need for enhancements in insulation and decor as they envision this property becoming their new home. Don’t miss out on this chance to create a space that meets your needs in a historic town rich with charm!
2 bedroom apartment for sale in Church Street, Christchurch, Dorset, BH23 — £240,000 • 2 bed • 1 bath • 691 ft²
2 bedroom apartment for sale in Millhams Street, Christchurch, Dorset, BH23 — £300,000 • 2 bed • 1 bath • 583 ft²
2 bedroom flat for sale in Christchurch Town Centre, BH23 — £225,000 • 2 bed • 1 bath • 597 ft²
2 bedroom ground floor flat for sale in Stour Road, Christchurch, BH23 — £225,000 • 2 bed • 1 bath • 466 ft²
2 bedroom ground floor flat for sale in Fairmile Court, Fairmile Road, Christchurch, BH23 — £200,000 • 2 bed • 1 bath • 616 ft²
2 bedroom flat for sale in Bargates, Christchurch, BH23 — £180,000 • 2 bed • 1 bath • 645 ft²






































