**Standout Features:**
- Charming 1930s Art Deco flat in Mornington Mansions
- Spacious living room with bay windows and fireplace
- Modern kitchen with integrated appliances and ample counter space
- Two well-proportioned bedrooms, including a master with built-in storage
- Low crime area with excellent transport links to Brighton
- Close to local cafés, shops, and Hove seafront
**Potential Concerns:**
- Leasehold tenure with service charges of £2,000 per year and ground rent of £250
- Cavity wall construction with no assumed insulation
- Property’s exact double-glazing install date is unknown
**Summary:**
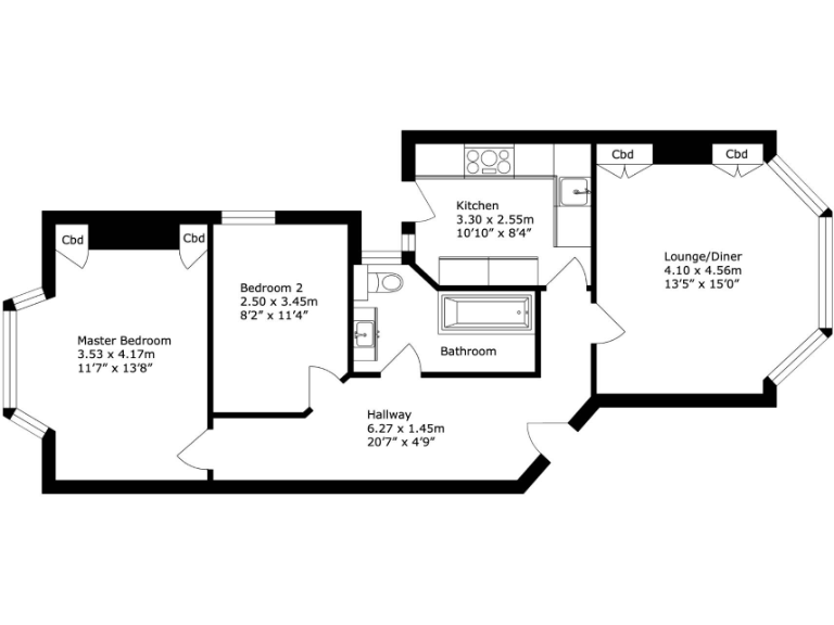
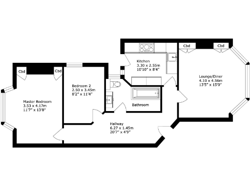
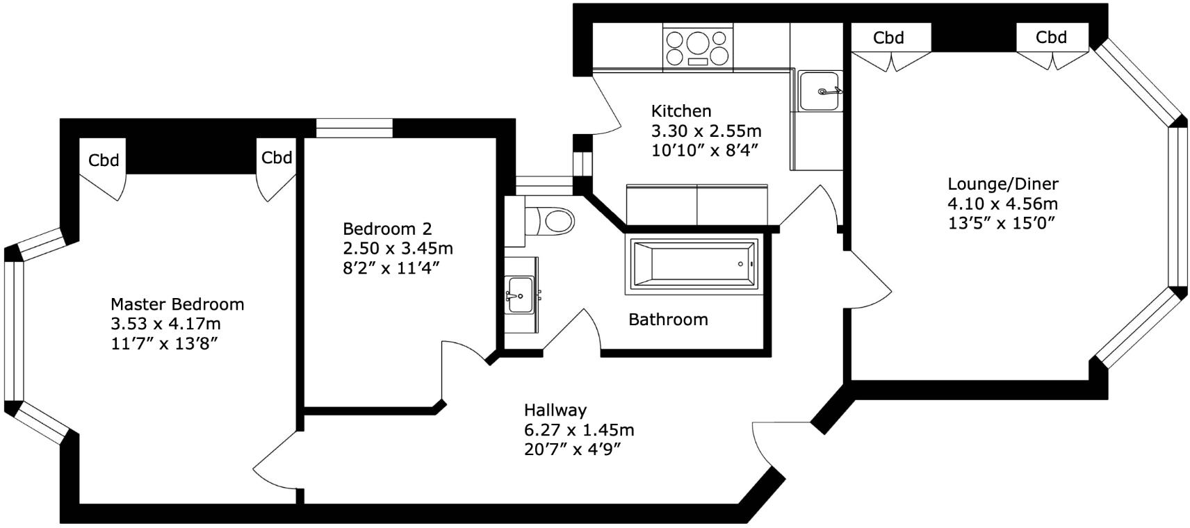
Step into this elegantly designed two-bedroom apartment nestled in the desirable Mornington Mansions. Infused with character from its 1930s Art Deco roots, the flat showcases a spacious lounge with a striking bay window and a cozy fireplace, making it ideal for both relaxing and entertaining. The modern kitchen is a chef's dream, equipped with sleek cabinetry and integrated appliances, while both bedrooms are roomy and comfortable, with the master offering built-in storage.
Located in the affluent area of Hove, this property stands out for its low crime rate and strong community feel, making it perfect for professionals and families alike. Enjoy effortless access to local cafés, boutique shops, and the stunning seafront just a stroll away, alongside excellent transport connections via Aldrington Station. With some minor maintenance considerations related to the leasehold and construction, this flat presents a fantastic opportunity for those seeking a stylish retreat in a sought-after location. Don’t miss out on this charming home that combines period elegance with modern convenience!
2 bedroom flat for sale in Braemore Road, Hove, East Sussex, BN3 — £325,000 • 2 bed • 1 bath • 811 ft²
2 bedroom flat for sale in Wilbury Crescent, Hove, BN3 — £325,000 • 2 bed • 1 bath • 624 ft²
2 bedroom flat for sale in Cromwell Road, Hove, East Sussex, BN3 — £350,000 • 2 bed • 1 bath • 725 ft²
2 bedroom flat for sale in Brittany Court, New Church Road, Hove, BN3 4JT, BN3 — £300,000 • 2 bed • 1 bath • 681 ft²
4 bedroom flat for sale in Furze Croft, Furze Hill, Hove, BN3 — £900,000 • 4 bed • 3 bath • 1890 ft²
2 bedroom flat for sale in Tisbury Road, Hove, BN3 — £325,000 • 2 bed • 1 bath • 658 ft²


























































