**Standout Features:**
- Two-bedroom ground floor apartment in the Windrush Place development
- 25% shared ownership scheme available
- Modern design, built in 2020
- No onward chain
- Off-street parking and access to communal garden
- Excellent mobile signal and fast broadband speeds
- Affordable council tax
**Concerns:**
- Average square footage with limited storage options
- Leasehold with 97 years remaining
- Located in a high-crime area
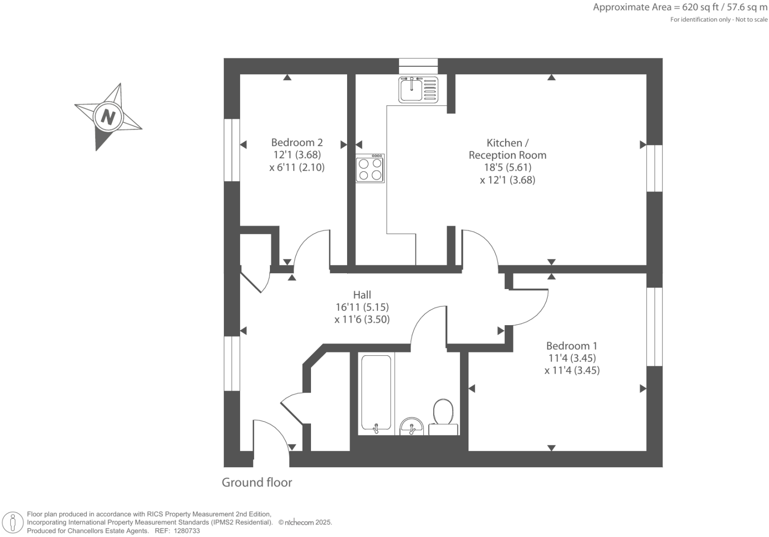
Discover comfortable suburban living with this well-presented, modern two-bedroom apartment situated in the sought-after Windrush Place development. Featuring an open-plan living area and well-sized kitchen, this ground floor flat offers a lifestyle of convenience with off-street parking and a shared garden ideal for relaxation. Perfect for first-time buyers or those seeking investment potential, this property is available with a 25% shared ownership option and is chain-free, allowing for a stress-free purchase process.
The apartment is within reach of reputable primary schools, enhancing its appeal for families. With fast broadband and excellent mobile signal, working from home is a breeze. While the property does require attention to its leasehold arrangement, with 97 years left, and is set in a high-crime area, its modern features and location in an affluent neighborhood make it an attractive opportunity. Don’t miss out on this unique chance to enter the property market in a comfortable suburban setting!
2 bedroom flat for sale in Moggridge Walk, Witney, OX29 — £57,500 • 2 bed • 1 bath • 622 ft²
2 bedroom flat for sale in Moggridge Walk, Witney, OX29 — £92,000 • 2 bed • 1 bath • 619 ft²
1 bedroom flat for sale in Centenary Way, Merlin House Centenary Way, OX29 — £97,500 • 1 bed • 1 bath • 497 ft²
2 bedroom end of terrace house for sale in Mott Close, Witney, OX29 — £155,000 • 2 bed • 1 bath • 657 ft²
1 bedroom flat for sale in Centenary Way,Witney,OX29 7BU, OX29 — £48,750 • 1 bed • 1 bath • 481 ft²
1 bedroom flat for sale in Windrush Place, Witney, OX28, OX29 — £47,500 • 1 bed • 1 bath • 492 ft²


























































































