**Standout Features:**
- Meticulously refurbished with modern finishes
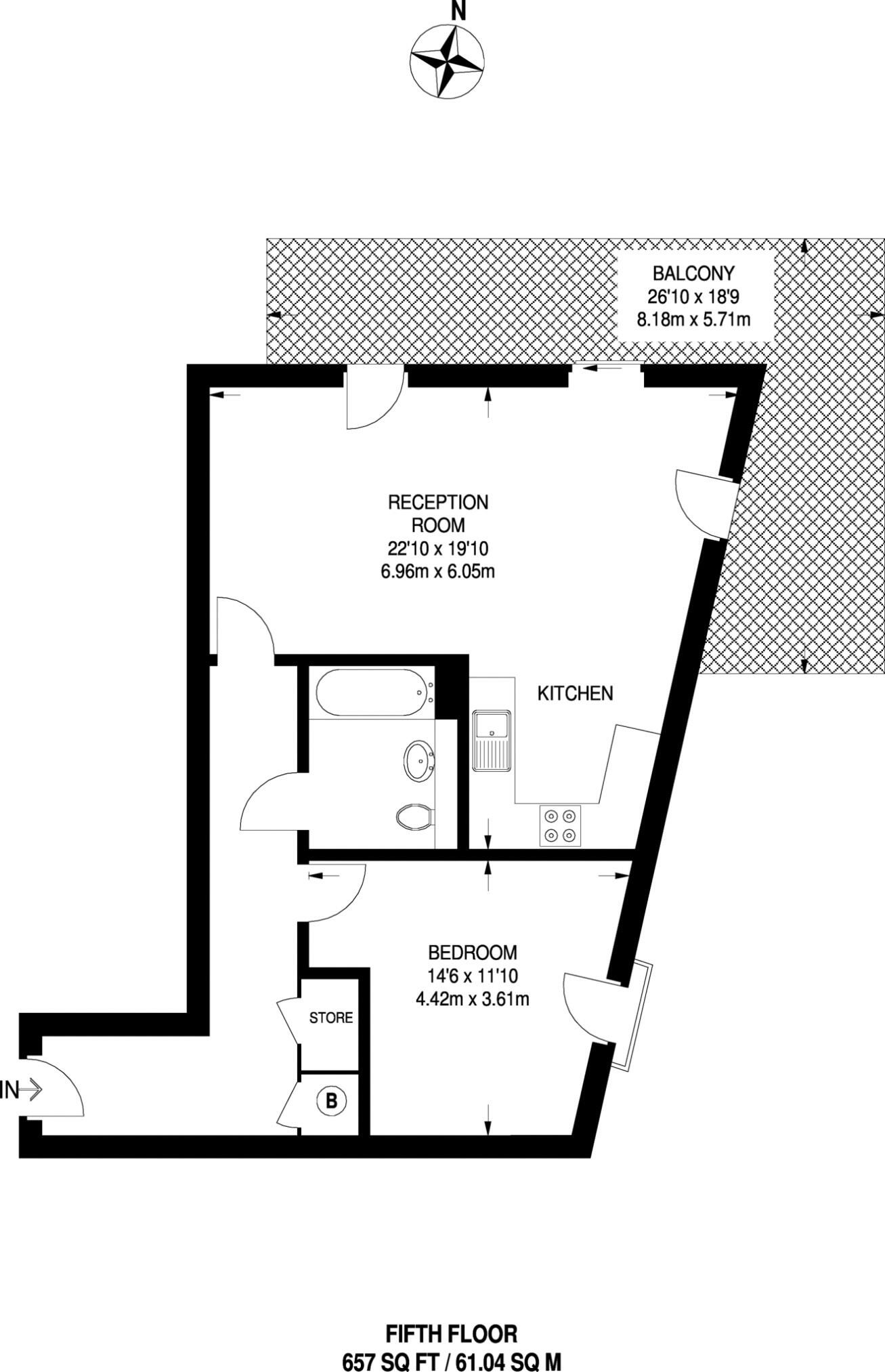
- Spacious open-plan living and dining area
- Impressive 40 sqm wraparound terrace
- Convenient concierge service and lift access
- Ideal central location near transport and amenities
Discover the perfect blend of style and convenience in this exceptionally renovated one-bedroom flat located on the fifth floor of Cannon Court in the sought-after Brewery Square development. With 657 sq. ft. of meticulously designed space, this apartment boasts floor-to-ceiling windows that flood the interior with natural light, a chic open-plan living and dining area, and a fully equipped modern kitchen ready for your culinary adventures.
Step outside onto your expansive wraparound terrace, perfect for entertaining or unwinding while enjoying panoramic views of the vibrant Clerkenwell cityscape. The property is also secured by a concierge service, offering peace of mind and convenience in your urban lifestyle. With Barbican Station and Farringdon Station just a short walk away, you'll enjoy seamless access to London’s extensive transport network, making it ideal for professionals and investors alike.
While the area is known for its cosmopolitan ambiance and proximity to boutique shops, trendy cafés, and cultural landmarks, please note that residents should take into account the above-average service charge and the high crime rate in the vicinity—important factors for anyone considering this property. This apartment represents a remarkable opportunity to embrace an exclusive city lifestyle in one of London’s most dynamic neighborhoods. Don’t miss out on your chance to make it yours!
1 bedroom apartment for sale in Brewhouse Yard, London, EC1V — £725,000 • 1 bed • 1 bath • 657 ft²
2 bedroom apartment for sale in Brewhouse Yard, Clerkenwell, London, EC1V — £1,100,000 • 2 bed • 2 bath • 1271 ft²
1 bedroom apartment for sale in Brewery Square, London, EC1V — £575,000 • 1 bed • 1 bath • 590 ft²
1 bedroom apartment for sale in Brewhouse Yard, Clerkenwell, London, EC1V — £650,000 • 1 bed • 1 bath • 725 ft²
1 bedroom apartment for sale in Brewhouse Yard, London, EC1V — £550,000 • 1 bed • 1 bath • 534 ft²
1 bedroom apartment for sale in Brewhouse Yard, London, EC1V — £725,000 • 1 bed • 1 bath • 657 ft²














































































































































































