BH23 1RA - 3 bedroom house for sale in The Meridians, Christchurch, Do…

View on Property Piper

3 bedroom house for sale in The Meridians, Christchurch, Dorset, BH23

Summary - 61 THE MERIDIANS CHRISTCHURCH BH23 1RA

3 bed 2 bath House

**Standout Features:**
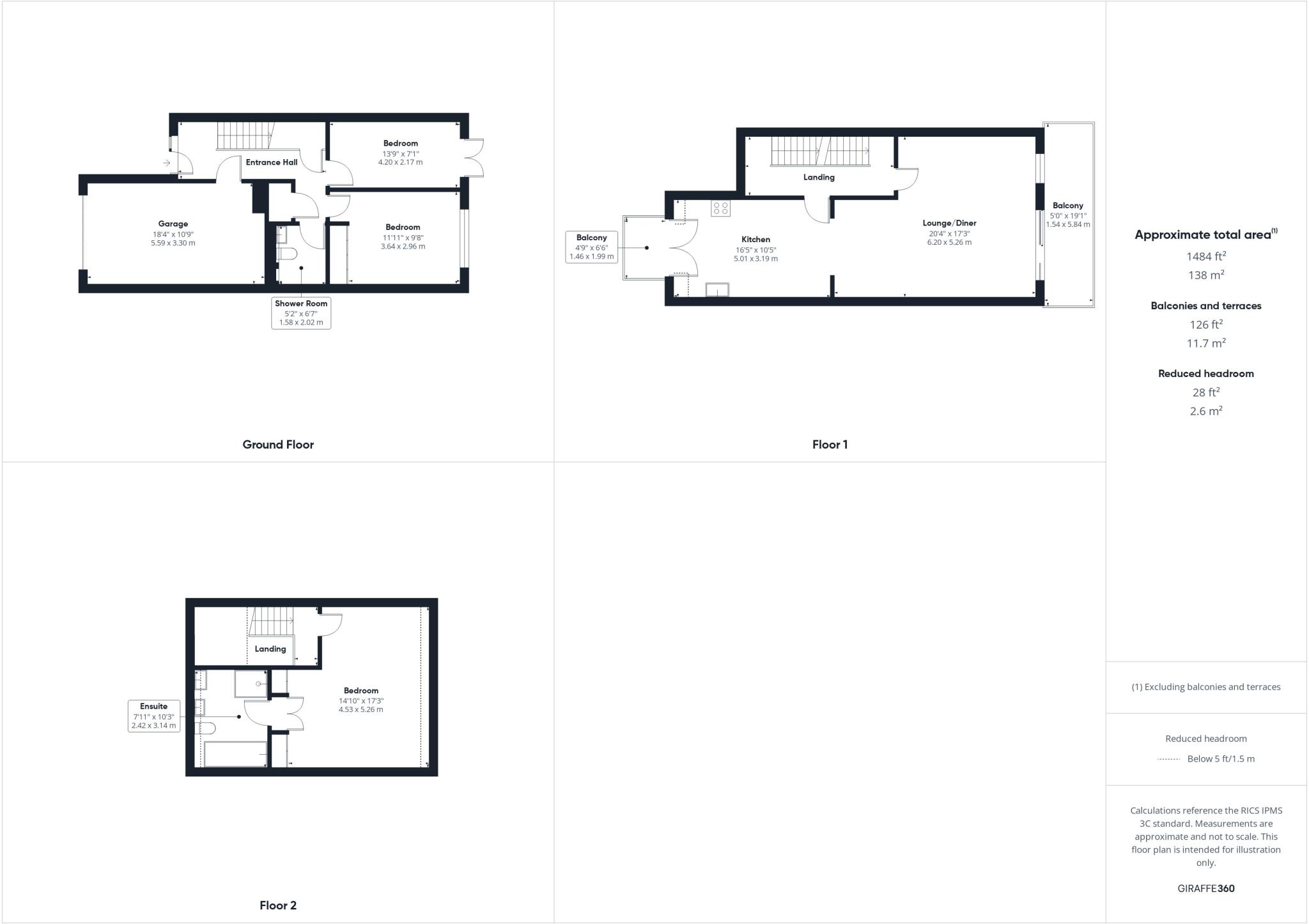
- Three bedrooms, two bathrooms
- Stunning river views with a 7M mooring
- Two balconies for outdoor relaxation
- Off-road parking and integral garage
- Chain free and freehold tenure

**Notable Concerns:**
- High council tax band (F)
- Community crime rate is high
- Only slow broadband speeds available
- Small plot size with a management/mooring charge of approximately £800 pa

This appealing three-bedroom waterfront townhouse in central Christchurch presents an exceptional opportunity for both families and investors. Nestled in a serene waterside development, it offers stunning river views and benefits from a 7 meter mooring, perfect for boating enthusiasts. The property features a practical layout, including spacious living areas and a modern kitchen with integral appliances. Enjoy leisure time on one of two balconies overlooking the tranquil waters, or relax in the generously sized garden.

Although the property boasts charm and comfort, potential buyers should note the high council tax band and community crime rate, as well as the presence of slow broadband speeds. Being chain-free allows for seamless transition, making it an attractive option in today’s competitive market. With Christchurch’s vibrant amenities and excellent schooling nearby, this home not only provides a scenic living space but also a fantastic lifestyle. Don’t miss the chance to own this exclusive property—it’s a true gem along the river!

Property Details

Brochure Descriptions

Image Descriptions

Floorplan Description

Rooms

Textual Property Features

Detected Visual Features

EPC Details

Nearby Schools

Nearest Bars And Restaurants

,,,,}

Nearest General Shops

,,}

Nearest Grocery shops

,,}

Nearest Supermarkets

,,}

Nearest Religious buildings

,,}

Nearest Medical buildings

,,,}

Nearest Airports

}

Nearest Leisure Facilities

,,,,}

Nearest Tourist attractions

,,}

Nearest Train stations

,,,,}

Nearest Bus stations and stops

,,,,}

Nearest Hotels

,,}

Tags

Local Market Stats

AirBnB Data

Similar Properties

Meta

High Res Images

Compatible Images

Low res Images

Thumbnails

Raw Images

High Res Floorplan Images

Compatible Floorplan Images

Low res Floorplan Images

FloorplanImages Thumbnail

Raw Floorplan Images