**Standout Features:**
- Newly renovated one-bedroom apartment in a historical Victorian building (circa 1901).
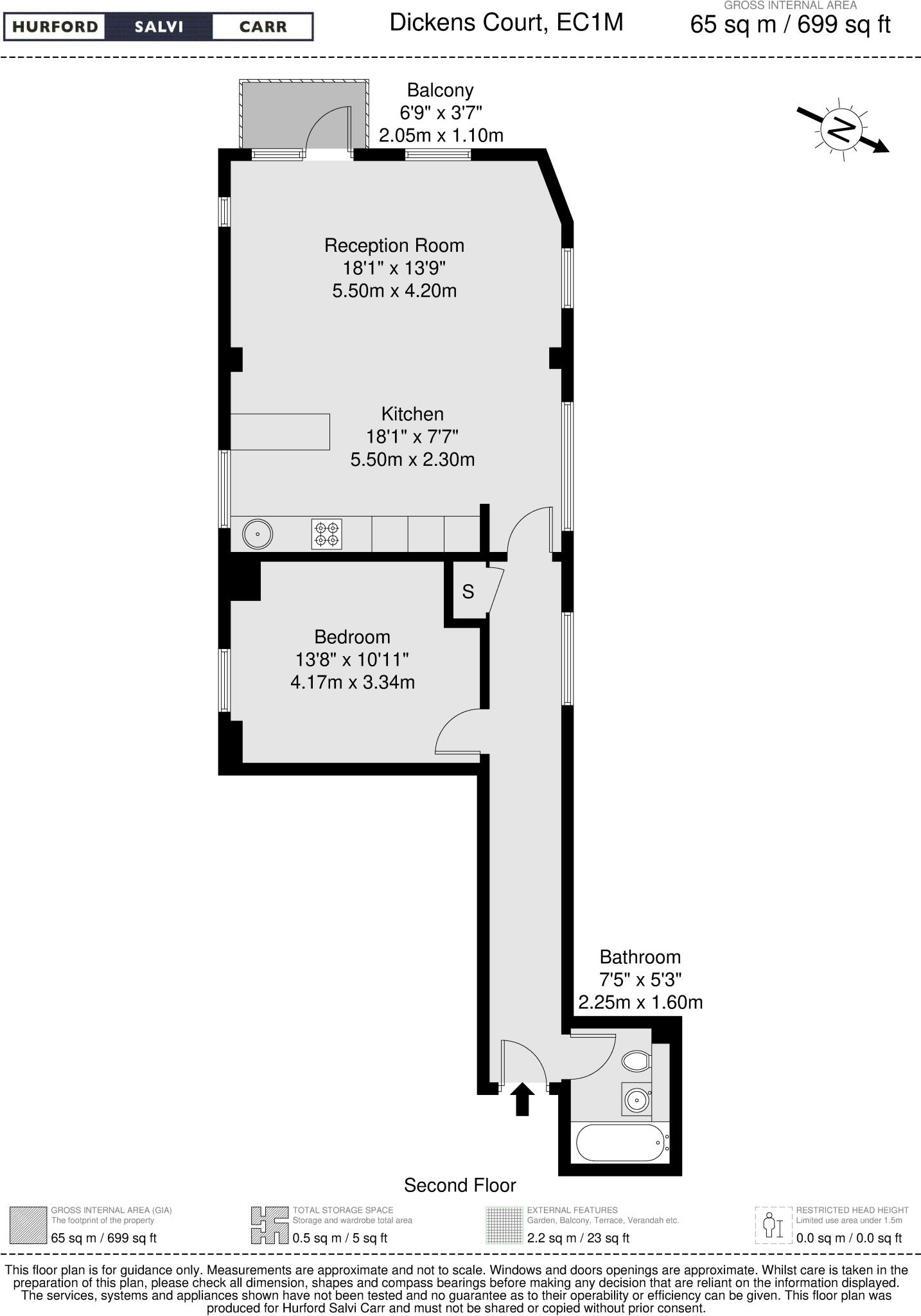
- Large private balcony with urban views.
- Open-plan kitchen and living area with modern finishes.
- Excellent transport links via Farringdon station, including the Elizabeth Line.
- Located in a vibrant Clerkenwell neighborhood, rich with amenities and dining options.
**Potential Concerns:**
- Above-average service charge of £5,008.
- High crime rates in the area, requiring cautious consideration.
**Summary Description:**
Discover urban living at its finest in this beautifully renovated one-bedroom apartment, ideally situated in the heart of Clerkenwell. Spanning 699 sq ft, this spacious home boasts a bright, open-plan layout which integrates a modern kitchen with stylish finishes and a welcoming living area. Enjoy your evenings on the generous private balcony, offering captivating views of the bustling city.
Set within a stunningly preserved Victorian building, residents benefit from an affluent location that balances convenience and a cosmopolitan lifestyle. Transportation is effortless with Farringdon station just a short stroll away, ensuring seamless access to all corners of London, including the upcoming developments at the London Museum.
With a myriad of unique restaurants, shops, and cultural hotspots right at your doorstep, this apartment is perfect for professionals seeking a vibrant lifestyle or investors eyeing a lucrative rental opportunity. While the area does face a high crime rate and comes with an elevated service charge, the apartment's prime location and charming features make it a standout choice, promising comfort and future value. Don't miss out on this exceptional offering—arrange a viewing today!
1 bedroom apartment for sale in Turnmill Street, EC1M — £435,000 • 1 bed • 1 bath • 538 ft²
1 bedroom apartment for sale in Brewhouse Yard, London, EC1V — £550,000 • 1 bed • 1 bath • 534 ft²
1 bedroom apartment for sale in Turnmill Street, EC1M — £570,000 • 1 bed • 1 bath • 580 ft²
1 bedroom apartment for sale in Turnmill Street, EC1M — £450,000 • 1 bed • 1 bath • 542 ft²
1 bedroom flat for sale in Clerkenwell Road, Clerkenwell, London, EC1M — £550,000 • 1 bed • 1 bath • 611 ft²
1 bedroom apartment for sale in Worcester Point, Central Street, ClerkenWell/Old Street, EC1V — £475,000 • 1 bed • 1 bath • 466 ft²










































































