**Standout Features:**
- Luxury ground-floor apartment, chain-free
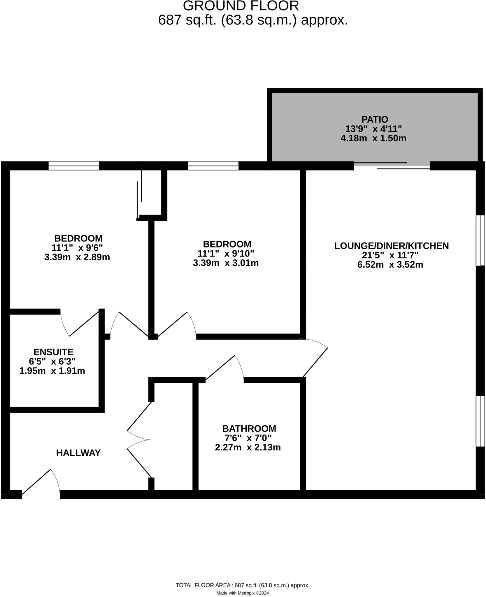
- Two spacious double bedrooms with en-suite
- Private patio for outdoor relaxation
- Allocated off-street parking
- Convenient access to local amenities and rail services
- Low council tax and affordable service charges
- Quiet, low-crime area
This modern and stylish two-bedroom ground-floor apartment is a perfect blend of comfort and convenience, ideal for small families or first-time buyers. With 687 square feet of efficiently laid-out space, the apartment boasts a bright and airy living area that seamlessly connects to a private patio, offering an inviting spot for outdoor gatherings or quiet relaxation. The contemporary kitchen is fully equipped and integrated into the open-plan design, while the master bedroom features an en-suite, enhancing privacy and ease.
Situated close to Hitchin's vibrant market square, you’ll have easy access to a plethora of shops, dining options, and excellent educational facilities, including well-rated primary and secondary schools. The area's low crime rate and community-oriented atmosphere create a secure and welcoming environment. Although the property has a reasonable service charge, the overall affordability of council tax makes this a smart investment. Don't miss this opportunity to secure a charming lifestyle in a desirable location that's sure to capture your heart!
2 bedroom ground floor flat for sale in Cooks Way, Hitchin, SG4 — £220,000 • 2 bed • 1 bath • 593 ft²
2 bedroom apartment for sale in Nightingale Road, Hitchin, SG5 — £270,000 • 2 bed • 1 bath • 596 ft²
2 bedroom flat for sale in Allwoods Place, Hitchin, SG4 — £325,000 • 2 bed • 2 bath • 646 ft²
2 bedroom flat for sale in Sanders Place, Walsworth Road, Hitchin, SG4 — £265,000 • 2 bed • 2 bath • 607 ft²
2 bedroom apartment for sale in Elderflower House, Whinbush Road, Hitchin, SG5 — £290,000 • 2 bed • 2 bath • 501 ft²
2 bedroom apartment for sale in Whinbush Road, Hitchin, SG5 — £290,000 • 2 bed • 2 bath • 689 ft²






































