Affordable starter or renovation opportunity close to Coventry centre.
Two-bedroom Victorian mid-terrace, freehold
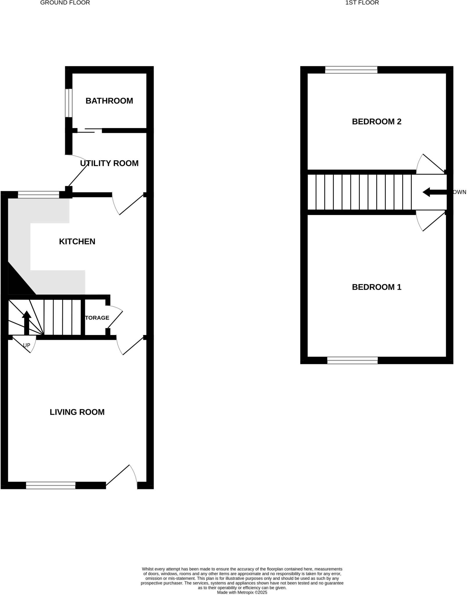
A straightforward two-bedroom Victorian mid-terrace in CV1, this freehold home sits close to Coventry city centre and suits first-time buyers or hands-on investors. The layout includes a compact living room, eat-in kitchen, ground-floor bathroom and two upstairs bedrooms — practical rooms for everyday use.
The property benefits from gas central heating and double glazing, and comes with a small rear garden to improve or maintain. Solid-brick construction offers good bones, and room sizes are typical for an early-20th-century terrace, making the house economical to run and easy to adapt.
Important realities: the house needs renovation and walls are assumed uninsulated, so expect upgrading costs for thermal performance and modern finishes. The local area is classified as very deprived with above-average crime; buyers should factor this into decisions about security and target tenants. Plot and room sizes are modest.
For an investor, an estimated rent of around £925 PCM suggests a practical yield at the listed price. For a first-time buyer, the low council tax and proximity to city amenities make it a practical starter with clear scope to add value through refurbishment. Viewings are recommended to assess condition and renovation budget in person.
3 bedroom house for sale in Northfield Road, Stoke, Coventry, CV1 — £220,000 • 3 bed • 2 bath • 792 ft²
2 bedroom terraced house for sale in Argyll Street, Coventry, CV2 — £150,000 • 2 bed • 1 bath • 689 ft²
3 bedroom terraced house for sale in Quarryfield Lane, Coventry, West Midlands, CV1 — £230,000 • 3 bed • 2 bath • 818 ft²
2 bedroom terraced house for sale in Burlington Road, Coventry, West Midlands, CV2 — £140,000 • 2 bed • 1 bath • 728 ft²
3 bedroom terraced house for sale in King Edward Road, CV1 — £160,000 • 3 bed • 1 bath • 823 ft²
2 bedroom terraced house for sale in Craners Road, Coventry, West Midlands, CV1 — £140,000 • 2 bed • 1 bath • 648 ft²






























