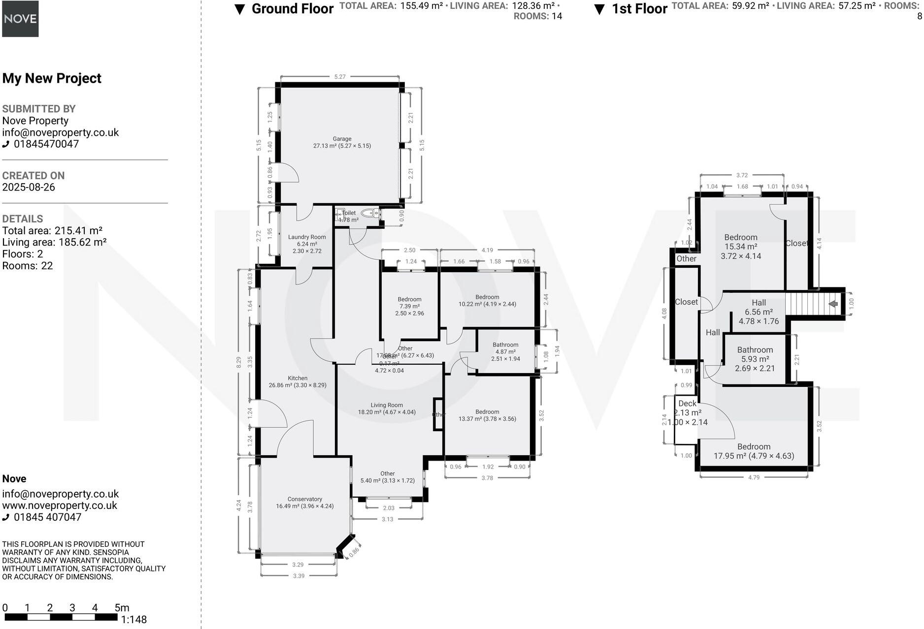
Five bedrooms with loft/first-floor rooms accessed via dormers
Set on a large, fully fenced plot in quiet Carlton Miniott, this detached five-bedroom home suits families seeking space and village convenience. The heart of the house is a modern kitchen flowing into a bright conservatory that overlooks a west-facing lawn — perfect for afternoon sun, outdoor dining and children's play. Mature planting, fruit trees and a pond give the garden immediate appeal and privacy.
Internally the property offers flexible accommodation across ground and loft/first-floor rooms linked by dormer windows and rooflights. Practical features include a double garage, generous driveway parking and mains gas central heating. Fast broadband and excellent mobile signal support home working and family connectivity, while Thirsk station nearby gives direct rail links to major regional and national destinations.
Buyers should note some material facts: the house dates from the early 1990s so some elements may benefit from updating, the exact age of the double glazing is unknown, and there are two bathrooms for five bedrooms. Council tax is above average. There is scope to extend or remodel subject to planning consents for buyers wanting to increase liveable space or personalise the home.
Overall this is a well-located, spacious family property on a substantial plot in an affluent village setting. It will suit buyers looking for roomy accommodation, strong transport links, and a large private garden with immediate outdoor amenity.
3 bedroom detached bungalow for sale in Carlton Miniott, Thirsk, YO7 — £425,000 • 3 bed • 2 bath • 1263 ft²
3 bedroom semi-detached house for sale in Station Cottages, Carlton Miniott, Thirsk, North Yorkshire, YO7 — £210,000 • 3 bed • 1 bath • 1021 ft²
5 bedroom detached house for sale in Harriers Croft, Dalton, Thirsk, YO7 — £400,000 • 5 bed • 2 bath • 1500 ft²
3 bedroom detached house for sale in Ripon Way, Carlton Miniott, YO7 — £345,000 • 3 bed • 1 bath • 858 ft²
3 bedroom terraced house for sale in Eastwood Court, Carlton Miniott, Thirsk, YO7 — £175,000 • 3 bed • 1 bath • 911 ft²
3 bedroom detached house for sale in Ripon Way, Carlton Miniott, Thirsk, YO7 — £345,000 • 3 bed • 1 bath • 1047 ft²






















































































































































