Lifetime Lease option offers substantial upfront savings for eligible buyers looking to downsize..
- Lifetime Lease example price £198,500 for over‑60s (market value £300,000)
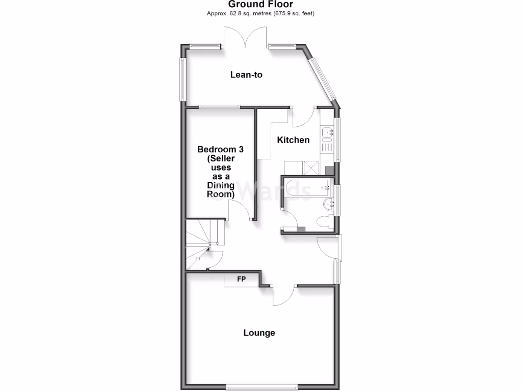
- Freehold chalet with driveway and single garage
- Generous rear garden with mature planting, decent plot size
- Three bedrooms; third currently used as dining room
- Single bathroom plus upstairs cloakroom only
- Dated interior; needs updating and cosmetic refurbishment
- Solid brick walls (likely no cavity insulation)
- Built 1930s–1940s; standard ceiling heights, mains gas heating
This three-bedroom chalet-style semi offers a practical downsize in Minster-on-Sea with a generous rear garden, driveway and garage. The property is freehold and sits in a quiet, low-crime neighbourhood close to local shops and countryside walks — convenient for daily errands and gentle strolls.
A Homewise Lifetime Lease example price is shown at £198,500 for eligible over-60s (market value £300,000). That plan can reduce the upfront cost by a significant percentage (typical savings range 20–50% depending on age and circumstances) and allows buying up to a 50% share to protect future value. Buyers who are not eligible can purchase at the full market price.
Internally the layout works for single-level living with two first-floor bedrooms and a ground-floor bedroom currently used as a dining room. The living room and kitchen are functional but dated; the property will benefit from updating throughout. There is only one full bathroom and an additional upstairs cloakroom, which should be considered if hosting family.
Practical points: the house is solid brick (likely no cavity insulation), double glazed, gas‑heated via boiler and radiators, and was constructed mid-20th century. The plot is a selling point — a mature rear garden and decent-sized plot give scope for gardening or modest extension (subject to consent).
3 bedroom chalet for sale in Nelson Avenue, Minster On Sea, Sheerness, Kent, ME12 — £280,500 • 3 bed • 1 bath • 1240 ft²
3 bedroom chalet for sale in Union Road, Minster On Sea, Sheerness, Kent, ME12 — £208,500 • 3 bed • 3 bath • 1034 ft²
3 bedroom semi-detached house for sale in Windmill Rise, Minster On Sea, Sheerness, Kent, ME12 — £192,000 • 3 bed • 1 bath • 1004 ft²
2 bedroom semi-detached bungalow for sale in Kent Avenue, Minster On Sea, Sheerness, Kent, ME12 — £185,500 • 2 bed • 1 bath • 571 ft²
3 bedroom chalet for sale in Hillside Road, Minster-On-Sea, Sheerness, Kent, ME12 — £281,000 • 3 bed • 1 bath • 985 ft²
3 bedroom semi-detached house for sale in Coronation Crescent, Queenborough, Sheerness, Kent, ME11 — £172,000 • 3 bed • 2 bath • 639 ft²














































