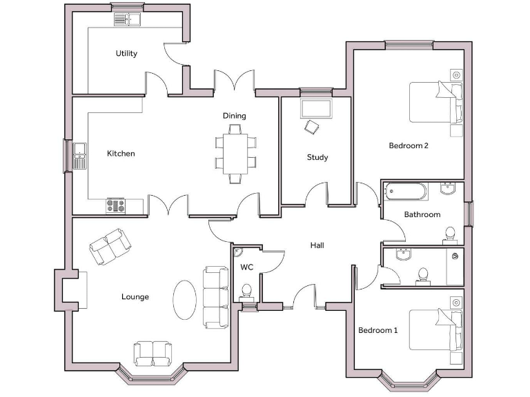
**Standout Features:**
- Brand new, spacious 1927 sq ft detached bungalow
- Set on a generous 0.9-acre plot
- High specification finish with contemporary elements
- Master bedroom with en suite, and two additional bedrooms/study
- Open-plan kitchen/dining/family area, leading to garden
- Double detached garage and ample off-road parking
- Backing onto picturesque farmland with serene views
- Chain free, completion expected Autumn 2024
- Energy Performance Certificate (EPC): B
**Potential Downsides:**
- New build completion in Autumn 2024 means immediate occupancy is not available
- Some buyers may prefer a traditional property style
**Summary:**
Experience the elegance of this stunning new detached bungalow located in a desirable area of Burnham-On-Crouch. Boasting a spacious floor plan across 1927 sq ft, this home includes two/three well-sized bedrooms, a master suite with en suite, and an inviting open-plan kitchen/dining/family area—perfect for modern living and entertaining. Enjoy the tranquil surroundings of 0.9 acres of land with dual aspect gardens that gently slope toward the countryside, creating an ideal setting for relaxation and outdoor activities.
This exclusive development of only detached bungalows promises luxurious living with high-grade specifications, including underfloor heating and premium materials throughout. The property benefits from a double detached garage and the convenience of the vast outdoor space, ideal for families or professionals seeking a peaceful retreat. With a projected completion date in Autumn 2024, now is the perfect time to secure your dream home in a sought-after location where idyllic countryside meets modern comfort. Don’t miss out on this unique opportunity!
3 bedroom detached bungalow for sale in Orchard Close, Stoney Hills, Burnham-On-Crouch, CM0 — £550,000 • 3 bed • 1 bath • 1500 ft²
2 bedroom detached bungalow for sale in Plot 21 Burnham Waters, CM0 — £635,000 • 2 bed • 2 bath • 1334 ft²
3 bedroom detached bungalow for sale in Plot 12 'The Blackwater' Show Home Now FOR SALE @ Burnham Waters, Burnham-On-Crouch, CM0 — £699,995 • 3 bed • 2 bath • 1475 ft²
2 bedroom detached bungalow for sale in Orchard Close, Stoney Hills, Burnham-On-Crouch, CM0 — £680,000 • 2 bed • 2 bath • 1754 ft²
4 bedroom detached house for sale in Mangapp Chase, Burnham-On-Crouch, CM0 — £950,000 • 4 bed • 2 bath • 2700 ft²
3 bedroom bungalow for sale in Burnham Road, Latchingdon, Chelmsford, CM3 — £600,000 • 3 bed • 2 bath • 904 ft²


























































































































































































