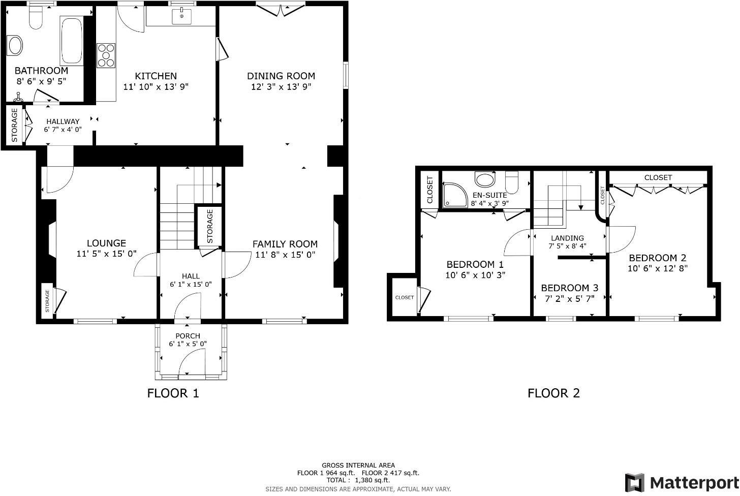
**Standout Features:**
- Extended and modernized three-bedroom semi-detached period house.
- Versatile layout with a large central hall, spacious lounge, and dining area.
- Well-fitted kitchen/breakfast room with built-in appliances.
- Luxury bathroom with freestanding roll-top bath and separate shower.
- Master bedroom with ensuite, plus two additional bedrooms.
- Enclosed rear garden with shed and ample onsite parking.
**Notable Concerns:**
- Property constructed before 1900 may lack modern insulation.
- Limited mobile signal and average broadband speeds.
This beautifully extended and recently renovated three-bedroom semi-detached house in the charming village of Clawddnewydd offers a delightful blend of modern comfort and period character. The home boasts a spacious lounge featuring a stunning stone fireplace and a generous family room perfect for gatherings, seamlessly flowing into an impressive kitchen equipped with essential built-in appliances. Upstairs, the master suite comes with a contemporary ensuite bathroom, complemented by two additional bedrooms and a luxurious main bathroom that invites relaxation.
Set within an attractive, manageable garden, this property promises a peaceful escape in picturesque rolling countryside. With essential amenities just a short walk away, it’s ideal for families or first-time buyers seeking a welcoming community-centric lifestyle. The property’s freehold status, coupled with off-street parking, adds to the appeal, making it a perfect investment or family home.
Don’t miss out on this unique opportunity to secure a spacious, comfortable living space in a tranquil village setting—schedule your viewing today!
3 bedroom detached house for sale in Clawddnewydd, Ruthin, LL15 — £280,000 • 3 bed • 2 bath • 1394 ft²
3 bedroom house for sale in Clawddnewydd, Ruthin, LL15 — £249,950 • 3 bed • 1 bath • 996 ft²
3 bedroom semi-detached house for sale in Tyn Y Groesffordd, Llanbedr Dyffryn Clwyd, Ruthin, LL15 — £359,500 • 3 bed • 1 bath • 1549 ft²
4 bedroom detached house for sale in Cwr Y Llan Llanfair Dyffryn Clwyd LL15 2RU, LL15 — £500,000 • 4 bed • 2 bath • 1869 ft²
3 bedroom semi-detached house for sale in Stryd Yr Wylan, Ruthin, LL15 — £249,950 • 3 bed • 2 bath • 1157 ft²
3 bedroom semi-detached house for sale in Llys Ial, Bryneglwys, Corwen, LL21 — £195,000 • 3 bed • 1 bath • 913 ft²






















































