Modern family living beside scenic water and green spaces.
Four double bedrooms with master en-suite and fitted wardrobe
Open-plan kitchen-diner with Bosch appliances and French doors
Integral garage, driveway parking and private rear garden
10-year NHBC warranty; brand-new build specification
Total internal area approx 952 sq ft — modest for four beds
Located on lakeside development with scenic walks and play areas
Area shows higher deprivation statistics; average crime and mobile signal
Fast broadband; no flood risk
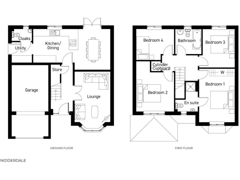
Set on the attractive Shipley Lakeside development, this new-build four-bedroom detached home combines contemporary fittings with lake-side green space. The house benefits from a 10-year NHBC warranty, an integral garage, private garden and Bosch kitchen appliances — practical features for everyday family life. Fast broadband and scenic walking routes nearby support both homeworking and outdoor family time.
Internally the layout works well for families: a bay-fronted lounge with double doors, an open-plan kitchen-diner with French doors to the garden, utility room and ground-floor cloakroom. The first-floor master bedroom includes an en-suite and fitted wardrobe; three further bedrooms provide space for children, guests or a home office. The total internal size is about 952 sq ft, so rooms feel well planned rather than expansive.
Buyers should note this is a new build on a development in an area with higher deprivation statistics. The property is Freehold with no flood risk, average local crime levels and average mobile signal. The plot is a decent size but overall square footage is modest for a four-bedroom layout — viewings will show whether the arrangement suits your family’s space needs.
Nearby schooling includes a mix of ratings: a local outstanding secondary and a good primary, plus other options close by. With lakeside walks, play areas and handy local amenities, the home suits families seeking modern, low-maintenance living close to green space. Optional part-exchange may simplify moving for qualifying buyers.
4 bedroom detached house for sale in Shipley Lakeside , Derbyshire
DE75 7JL, DE75 — £371,500 • 4 bed • 2 bath • 867 ft²
4 bedroom detached house for sale in Deepfields Drive, Shipley, Heanor, DE75 — £349,950 • 4 bed • 2 bath • 1065 ft²
4 bedroom detached house for sale in Deepfields Drive, Shipley, Heanor, Derbyshire, DE75 — £415,000 • 4 bed • 2 bath • 1238 ft²
4 bedroom detached house for sale in Deepfields Drive, Shipley, DE75 — £500,000 • 4 bed • 2 bath • 1511 ft²
4 bedroom detached house for sale in Damstead Park Avenue, ALFRETON, DE55 — £390,000 • 4 bed • 2 bath • 838 ft²
4 bedroom detached house for sale in Heanor Road, Ilkeston, DE7 — £425,000 • 4 bed • 3 bath • 1722 ft²


























































