Spacious single-storey home with private garden and off-street parking.
Chain free sale, immediate occupancy possible
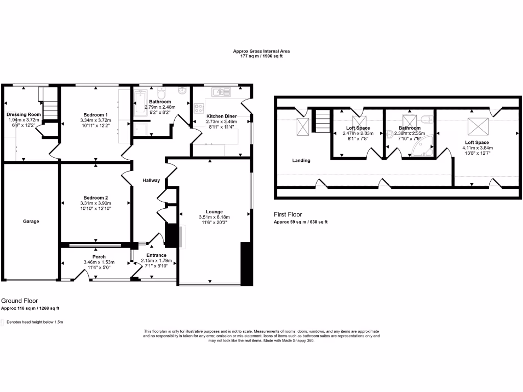
A well-maintained, chain-free two-bedroom detached bungalow set on a generous plot in Rhuddlan. The layout suits downsizers or retirees seeking single-storey living with easy parking and a private, peaceful rear garden. The lounge with dining area and a bright kitchen look out to the garden, while two double bedrooms provide flexible accommodation (one could serve as a second reception).
Practical benefits include off-street parking, mains services, a combi boiler in the hallway, fast broadband and excellent mobile signal. The property is described as extremely large overall (approx. 1,268 sq ft) and has a usable converted loft — owners have commissioned a structural report to support that work.
Buyers should note a few material points: the loft conversion does not have up-to-date building regulations approval, the conservatory/porch shows damp staining, and council tax sits above average (Band E). The surrounding area is marked as relatively deprived, which may affect long-term resale considerations, but local amenities, transport links and community facilities are all within easy reach.
This bungalow offers comfortable, low-maintenance living and scope for modest updating. It will suit someone seeking a calm base in Rhuddlan with immediate occupancy (no chain) and the potential to add value by regularising the loft conversion and addressing the conservatory damp.
 2 bedroom detached bungalow for sale in Grenville Avenue Rhuddlan LL18 5PN, LL18 — £228,000 • 2 bed • 1 bath • 799 ft²
 2 bedroom detached bungalow for sale in Grenville Avenue Rhuddlan LL18 5PN, LL18 — £228,000 • 2 bed • 1 bath • 799 ft² 2 bedroom detached bungalow for sale in Kerfoot Avenue, Rhuddlan, Rhyl, LL18 — £200,000 • 2 bed • 1 bath • 666 ft²
 2 bedroom detached bungalow for sale in Kerfoot Avenue, Rhuddlan, Rhyl, LL18 — £200,000 • 2 bed • 1 bath • 666 ft² 2 bedroom bungalow for sale in Maes Ffyddion,  Rhuddlan, LL18 — £190,000 • 2 bed • 1 bath • 775 ft²
 2 bedroom bungalow for sale in Maes Ffyddion,  Rhuddlan, LL18 — £190,000 • 2 bed • 1 bath • 775 ft² 2 bedroom bungalow for sale in Bryn Cwnin Road,  Rhyl, LL18 — £210,000 • 2 bed • 1 bath • 947 ft²
 2 bedroom bungalow for sale in Bryn Cwnin Road,  Rhyl, LL18 — £210,000 • 2 bed • 1 bath • 947 ft² 2 bedroom semi-detached bungalow for sale in Rhodfa Maen Gwyn, Rhyl, LL18 — £139,950 • 2 bed • 1 bath • 513 ft²
 2 bedroom semi-detached bungalow for sale in Rhodfa Maen Gwyn, Rhyl, LL18 — £139,950 • 2 bed • 1 bath • 513 ft² 3 bedroom bungalow for sale in Rhos Fawr, Abergele, Conwy, LL22 — £260,000 • 3 bed • 2 bath • 960 ft²
 3 bedroom bungalow for sale in Rhos Fawr, Abergele, Conwy, LL22 — £260,000 • 3 bed • 2 bath • 960 ft²






























































