Spacious energy-efficient family home with sustainable tech and parking.
Five bedrooms including ground-floor double with ensuite
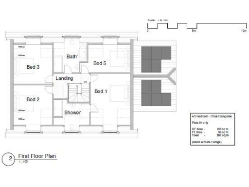
Plot 94 at Meadow View Park is a five-bedroom new-build chalet-style detached home offering about 201 m² (2,164 sq ft) of flexible family space. The house is specified for low running costs with an air source heat pump, whole-house underfloor heating, solar panels with battery storage and a rainwater-harvesting system. The ground floor open-plan lounge/dining/kitchen with bifold doors connects directly to a private garden, while a ground-floor double bedroom with ensuite gives multi-generational or guest flexibility. A separate utility and plant room keep services and laundry out of sight, and an integral garage provides secure parking and storage.
This property is classed as an Affordable Housing Unit and is offered at 80% of current market value on a shared-ownership basis; purchasers must meet eligibility criteria. The garden is shown unfinished and will need landscaping to complete the outdoor living space. Schools nearby are a mix of Good and Requires Improvement ratings, so check individual school places if important.
The house is well suited to first-time buyers or growing families who want high-spec, energy-efficient systems and low bills. Bedroom five can double as a home office with pleasant garden views, supporting remote working. Buyers are advised that, as a new build, there may be minor completion works and that a full inspection is recommended before exchange.
In summary: modern, energy-efficient family accommodation with strong sustainability credentials, generous internal space and a large plot — offered on shared-ownership terms with eligibility requirements and some garden landscaping to complete.
 4 bedroom detached house for sale in Plot 93. 17 Sunset Drive, Cowes, Isle of Wight., PO31 — £620,000 • 4 bed • 3 bath • 2164 ft²
 4 bedroom detached house for sale in Plot 93. 17 Sunset Drive, Cowes, Isle of Wight., PO31 — £620,000 • 4 bed • 3 bath • 2164 ft² 4 bedroom detached house for sale in Plot 92. 18 Sunset Drive, Meadow View Park, Cowes, Isle of Wight., PO31 — £775,000 • 4 bed • 3 bath • 2164 ft²
 4 bedroom detached house for sale in Plot 92. 18 Sunset Drive, Meadow View Park, Cowes, Isle of Wight., PO31 — £775,000 • 4 bed • 3 bath • 2164 ft² 5 bedroom detached house for sale in 15 Sunset Drive, Cowes, PO31 7GE, PO31 — £795,000 • 5 bed • 3 bath • 2164 ft²
 5 bedroom detached house for sale in 15 Sunset Drive, Cowes, PO31 7GE, PO31 — £795,000 • 5 bed • 3 bath • 2164 ft² 3 bedroom semi-detached house for sale in 6 Sunset Drive, Cowes, Isle of Wight., PO31 — £368,000 • 3 bed • 2 bath • 1044 ft²
 3 bedroom semi-detached house for sale in 6 Sunset Drive, Cowes, Isle of Wight., PO31 — £368,000 • 3 bed • 2 bath • 1044 ft² 3 bedroom detached house for sale in 19 Cordelia Gardens, Cowes, PO31 7GB, PO31 — £950,000 • 3 bed • 3 bath • 2465 ft²
 3 bedroom detached house for sale in 19 Cordelia Gardens, Cowes, PO31 7GB, PO31 — £950,000 • 3 bed • 3 bath • 2465 ft² 4 bedroom detached house for sale in Cowes, PO31 — £695,000 • 4 bed • 3 bath • 1976 ft²
 4 bedroom detached house for sale in Cowes, PO31 — £695,000 • 4 bed • 3 bath • 1976 ft²






































































