Two-bedroom period cottage with south-facing garden — auction sale, cash buyers only.
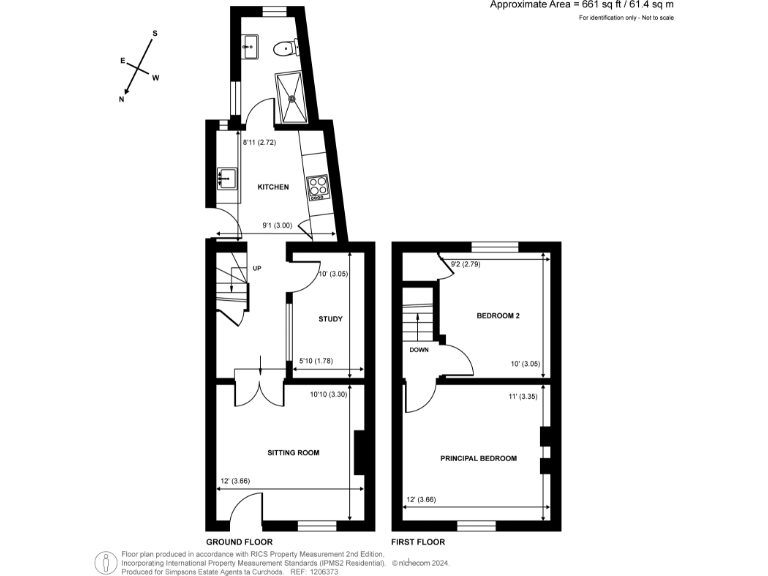
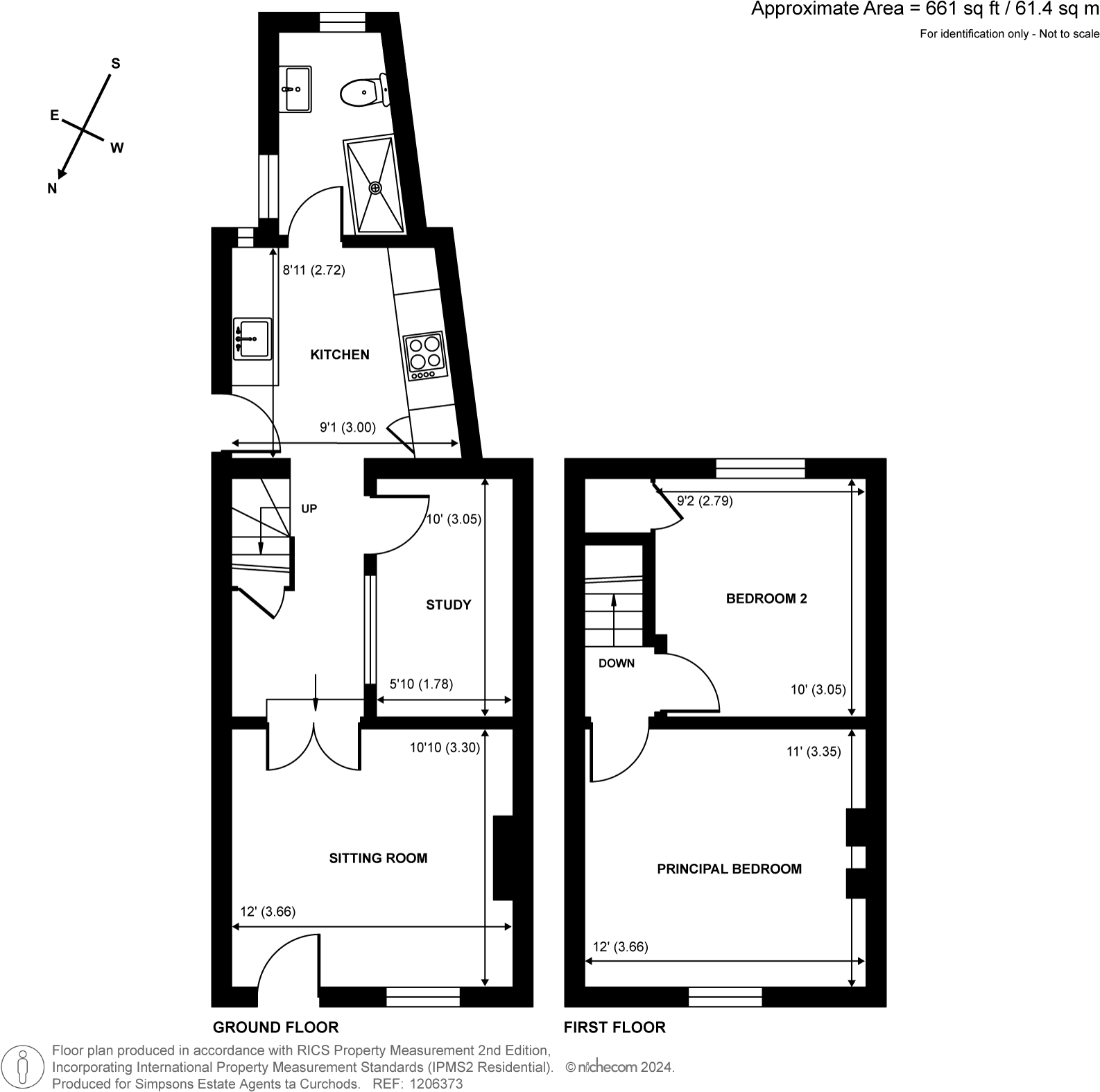
Two double bedrooms in a compact 661 sq ft Victorian end-terrace
South-facing rear garden — decent plot for the area
Vacant freehold; sold by online auction, six-week completion
Requires full refurbishment and modernization throughout
Cash buyers only — mortgage lending restrictions apply
Cavity walls assumed uninsulated; energy upgrades likely needed
Situated in affluent Claygate with fast broadband and low crime
Adjacent to a public house; average mobile signal in area
A Victorian end-of-terrace cottage on Common Road offered as a vacant freehold. The house dates from the early 20th century (c.1900–1929) and provides a compact, practical layout across multiple storeys with around 661 sq ft of space and a decent plot including a south-facing back garden. The property has mains gas heating with a boiler and radiators, double glazing (install date unknown) and cavity walls assumed without added insulation.
This home needs full refurbishment throughout and will suit a buyer prepared to invest in modernization and energy-efficiency upgrades. Expect works such as internal redecoration, kitchen and bathroom renewal, insulation improvements and potential reconfiguration to improve flow and value. It is vacant and will be sold at online auction with a six-week completion period — cash buyers only due to mortgage lending restrictions.
Location is a genuine strength: Claygate is an affluent, low-crime area with fast broadband, good primary and secondary schools nearby, and easy commuter links via Claygate station and local buses to Kingston and Surbiton. Practical positives include a private garden and a freehold title, offering clear scope for value-add for a refurbishment buyer or investor.
Material negatives are clear and must be factored into purchase plans: the property requires renovation, cavity walls likely lack insulation, double glazing install date is unknown, mobile signal is average, it sits next to a public house and mortgage lenders may not lend, making cash purchase necessary. Buyers should inspect and budget accordingly.
 2 bedroom end of terrace house for sale in Common Road, Claygate, Esher, KT10 — £270,000 • 2 bed • 1 bath • 493 ft²
 2 bedroom end of terrace house for sale in Common Road, Claygate, Esher, KT10 — £270,000 • 2 bed • 1 bath • 493 ft² 2 bedroom end of terrace house for sale in Common Road, Claygate, KT10 — £550,000 • 2 bed • 1 bath • 676 ft²
 2 bedroom end of terrace house for sale in Common Road, Claygate, KT10 — £550,000 • 2 bed • 1 bath • 676 ft² 2 bedroom semi-detached house for sale in Rythe Road, Esher, KT10 — £765,000 • 2 bed • 1 bath • 1080 ft²
 2 bedroom semi-detached house for sale in Rythe Road, Esher, KT10 — £765,000 • 2 bed • 1 bath • 1080 ft² 2 bedroom terraced house for sale in Vale Road, Claygate, KT10 — £585,000 • 2 bed • 1 bath • 828 ft²
 2 bedroom terraced house for sale in Vale Road, Claygate, KT10 — £585,000 • 2 bed • 1 bath • 828 ft² 3 bedroom semi-detached house for sale in Brookfield Gardens, Claygate, KT10 — £750,000 • 3 bed • 1 bath • 1157 ft²
 3 bedroom semi-detached house for sale in Brookfield Gardens, Claygate, KT10 — £750,000 • 3 bed • 1 bath • 1157 ft² 3 bedroom terraced house for sale in Pretoria Road, Chertsey, Surrey, KT16 — £320,000 • 3 bed • 1 bath • 740 ft²
 3 bedroom terraced house for sale in Pretoria Road, Chertsey, Surrey, KT16 — £320,000 • 3 bed • 1 bath • 740 ft²














































































