Tucked-away Victorian cottage with garden and studio, ready for modernisation.
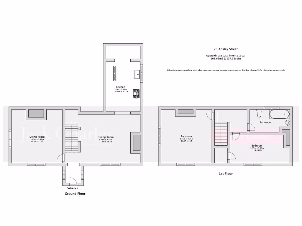
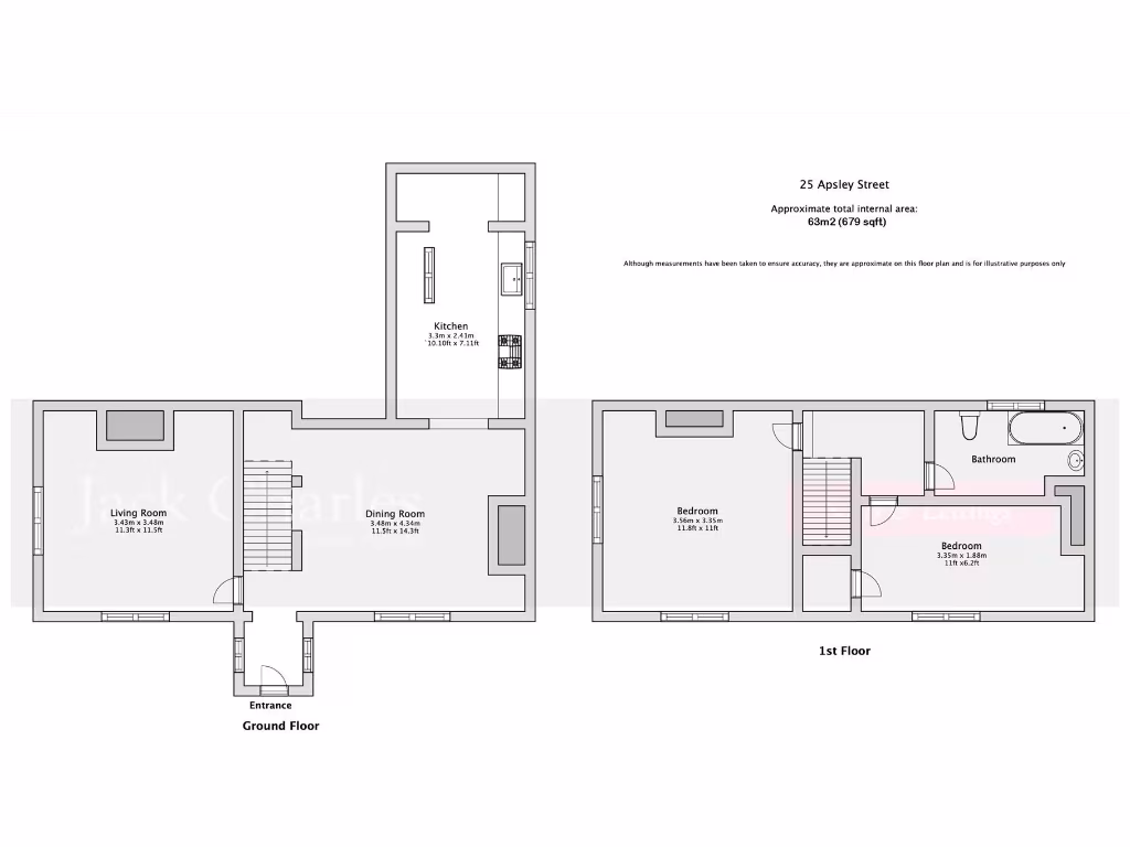
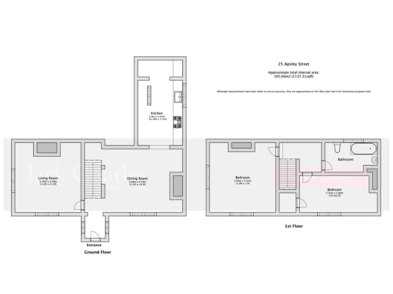
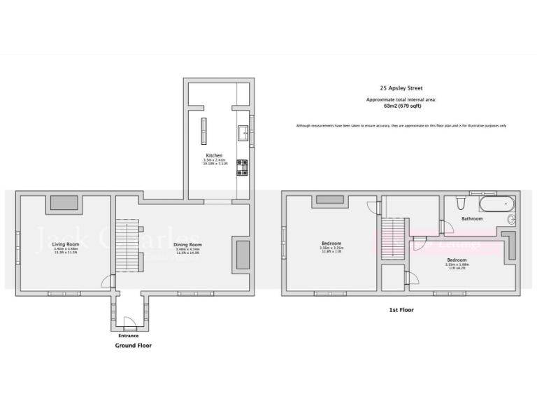
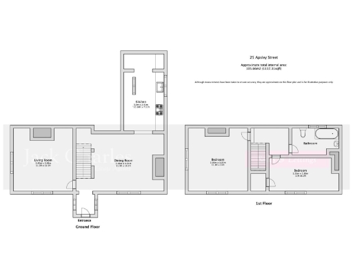
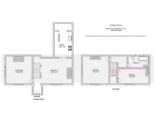
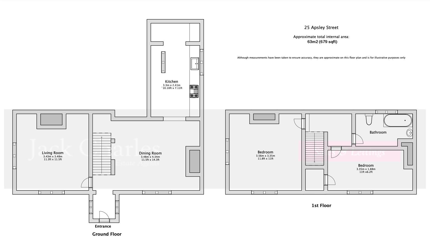
Two bedrooms, approximately 572 sq ft total
A charming two-bedroom semi-detached cottage, built around 1840, tucked away near Rusthall Common. The house retains period character—exposed brickwork, timber beams and fireplaces—and feels cosy rather than spacious. A double-aspect living room with a log-burning stove and a separate dining room give flexible living space for a small household.
The pretty, low-maintenance cottage garden and a timber studio/summer house extend the usable accommodation outdoors and create a private spot for relaxing or working from home. The property is freehold, not at risk of flooding, and sits within easy reach of Tunbridge Wells’ amenities and mainline stations.
Buyers should note the overall size is small (approximately 572 sq ft) with just one bathroom and limited internal storage. The solid brick walls are assumed to have no insulation, which may mean higher heating costs and potential retrofit work. While the home’s character is a strength, some updating or insulation improvements could be needed to modernise comfort and energy efficiency.
This cottage will suit first-time buyers or downsizers seeking period charm in a tucked-away village setting, and buyers who value a manageable garden and proximity to good local schools. For those willing to accept modest square footage and invest in targeted improvements, it offers appealing character and location in Tunbridge Wells.
2 bedroom terraced house for sale in Summer Cottages, Burdett Road, Tunbridge Wells, TN4 — £260,000 • 2 bed • 1 bath • 643 ft²
2 bedroom semi-detached house for sale in Upper Street, Rusthall, Tunbridge Wells, Kent, TN4 8NX, TN4 — £300,000 • 2 bed • 1 bath • 676 ft²
2 bedroom terraced house for sale in Woodside Road, Rusthall, Tunbridge Wells, TN4 — £350,000 • 2 bed • 1 bath • 743 ft²
2 bedroom terraced house for sale in Summer Cottages, Burdett Road, Rusthall, Tunbridge Wells, TN4 — £320,000 • 2 bed • 1 bath • 763 ft²
2 bedroom terraced house for sale in Apsley Street, Rusthall, Tunbridge Wells, TN4 — £350,000 • 2 bed • 1 bath • 732 ft²
2 bedroom end of terrace house for sale in Whetsted Road, Five Oak Green, Tonbridge, TN12 — £322,500 • 2 bed • 1 bath • 646 ft²














































































