TN12 7AD - 3 bedroom semidetached house for sale in Fairmans Lane, Bre…

View on Property Piper

3 bedroom semi-detached house for sale in Fairmans Lane, Brenchley, TN12 7AD, TN12

Summary - 2 GATE HOUSE COTTAGES BRENCHLEY TONBRIDGE TN12 7AD

3 bed 1 bath Semi-Detached

**Standout Features:**
- Grade II listed cottage dating back to the 1700s
- Sought-after village location in Brenchley, close to amenities
- Modern fitted kitchen and feature fireplace
- Three bedrooms and family bathroom
- Established rear garden with a gated driveway and detached garage
- New heating system installed in 2019
- Viewing highly recommended

Nestled in the picturesque village of Brenchley, this three-bedroom Grade II listed cottage is a prime example of quintessential English charm. Boasting a blend of traditional features such as exposed wooden beams and a cozy fireplace, it offers a warm and inviting atmosphere. The modern fitted kitchen enhances convenience, while the generously sized sitting/dining room provides ample space for family gatherings. The established garden serves as a tranquil escape, perfect for enjoying your mornings or entertaining guests.

Being in a central location means you're just a stone's throw from local amenities, including award-winning pubs and well-regarded schools, making this an ideal setting for families. The property also offers potential for future renovations, although its listed status may pose some challenges. With a detached garage and gated driveway, the outdoor space is as accommodating as the interior. Don’t miss your chance to own this unique property in an affluent rural community; schedule a viewing today!

Property Details

Brochure Descriptions

Image Descriptions

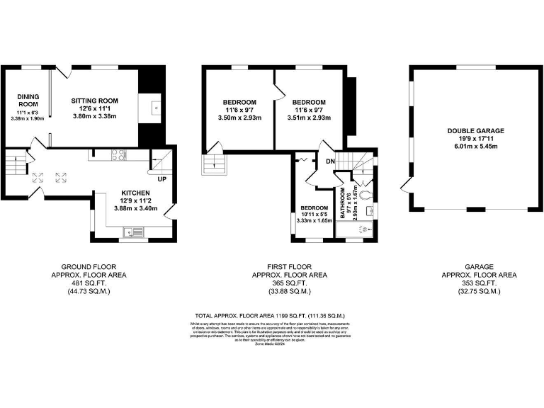
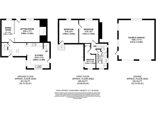
Floorplan Description

Rooms

Textual Property Features

Detected Visual Features

Nearby Schools

Nearest Bars And Restaurants

,,,,}

Nearest General Shops

,,}

Nearest Grocery shops

,,}

Nearest Supermarkets

,,}

Nearest Religious buildings

,,}

Nearest Medical buildings

,,,}

Nearest Leisure Facilities

,,,,}

Nearest Tourist attractions

,,}

Nearest Train stations

,,,,}

Nearest Bus stations and stops

,,,,}

Nearest Hotels

,,}

Tags

Local Market Stats

AirBnB Data

Similar Properties

Meta

High Res Images

Compatible Images

Low res Images

Thumbnails

Raw Images

High Res Floorplan Images

Compatible Floorplan Images

Low res Floorplan Images

FloorplanImages Thumbnail

Raw Floorplan Images