CM23 1EP - 3 bedroom link detached house for sale in Hegan Road, Bisho…

View on Property Piper

3 bedroom link detached house for sale in Hegan Road, Bishop's Stortford, Hertfordshire, CM23

Summary - 3, Hegan Road CM23 1EP

3 bed 2 bath Link Detached House

**Standout Features:**
- 3 double bedrooms with ample storage
- Stunning, modern kitchen with integral appliances
- Spacious open-plan living area with vaulted ceiling and garden access
- Luxury en suite shower room and family bathroom
- Sunny aspect rear garden with patio area
- Garage and additional parking space
- Located in a desirable cul-de-sac within top-rated school catchment

**Property Summary:**
Discover this immaculate three-bedroom link-detached house tucked away in a sought-after cul-de-sac on Hegan Road. Ideal for families, this naturally light home boasts a stunning kitchen equipped with integral appliances, a spacious open-plan living area with vaulted ceilings and direct access to a sunny garden, perfect for entertaining or family time. The master suite features fitted wardrobes and a luxury en suite, complemented by two additional double bedrooms and a family bathroom.

Enjoy the convenience of a garage and off-street parking while benefiting from proximity to the vibrant town center and excellent transport links. This property presents a fantastic opportunity for comfortable family living, all within well-regarded school catchments. While the home is presented immaculately, potential buyers should be aware that its average overall size and small plot may limit outdoor space. Don't miss your chance to secure this exceptional family home—schedule a viewing today!

Property Details

Image Descriptions

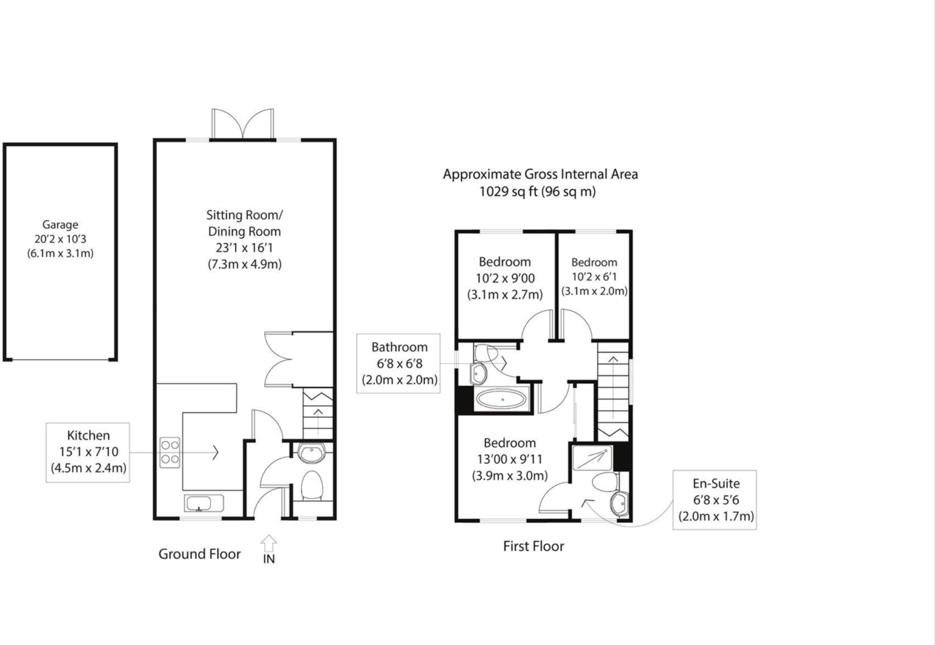
Floorplan Description

Rooms

Textual Property Features

Detected Visual Features

EPC Details

Nearby Schools

Nearest Bars And Restaurants

,,,,}

Nearest General Shops

,,}

Nearest Grocery shops

,,}

Nearest Supermarkets

,,}

Nearest Religious buildings

,,}

Nearest Medical buildings

,,,}

Nearest Airports

}

Nearest Leisure Facilities

,,,,}

Nearest Tourist attractions

,,}

Nearest Train stations

,,,,}

Nearest Bus stations and stops

,,,,}

Nearest Hotels

,,}

Tags

Local Market Stats

Similar Properties

Meta

High Res Images

Compatible Images

Low res Images

Thumbnails

Raw Images

High Res Floorplan Images

Compatible Floorplan Images

Low res Floorplan Images

FloorplanImages Thumbnail

Raw Floorplan Images