EC1V 7PR - 2 bedroom flat for sale in Hall Street, Islington, London,…

View on Property Piper

2 bedroom flat for sale in Hall Street, Islington, London, EC1V

Summary - Flat 111 Peregrine House, Hall Street, LONDON EC1V 7PR

2 bed 1 bath Flat

Compact two-bedroom flat with panoramic city views — ideal entry into EC1V.
Twenty-first floor balcony with panoramic London views
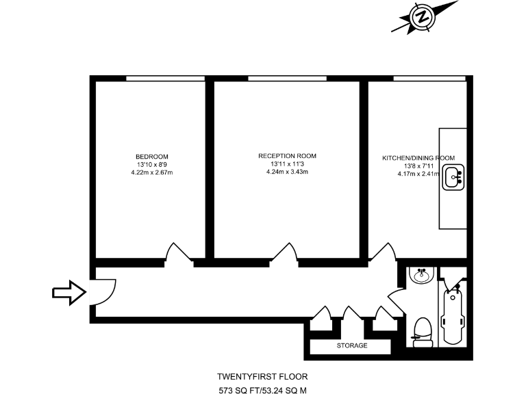
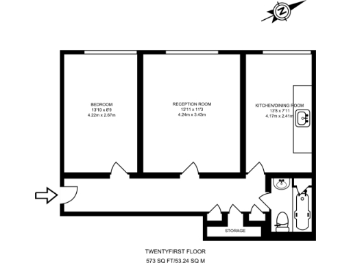
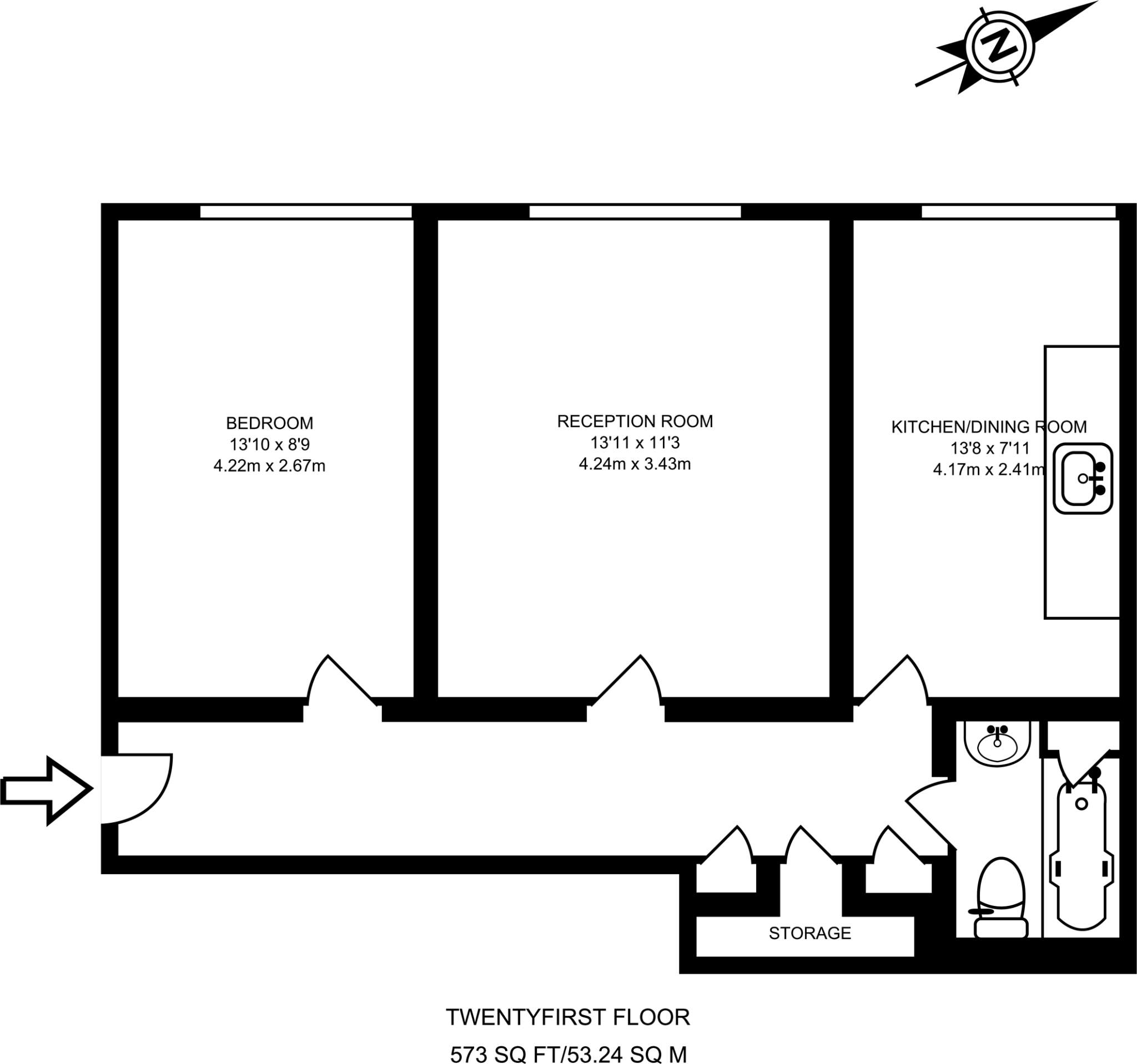
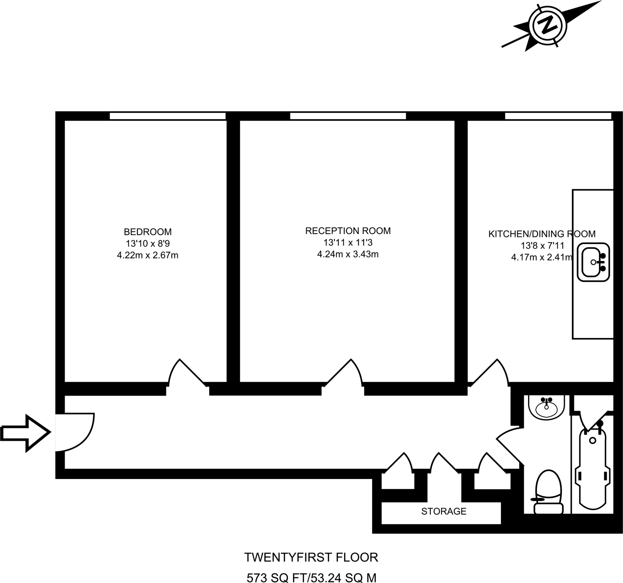
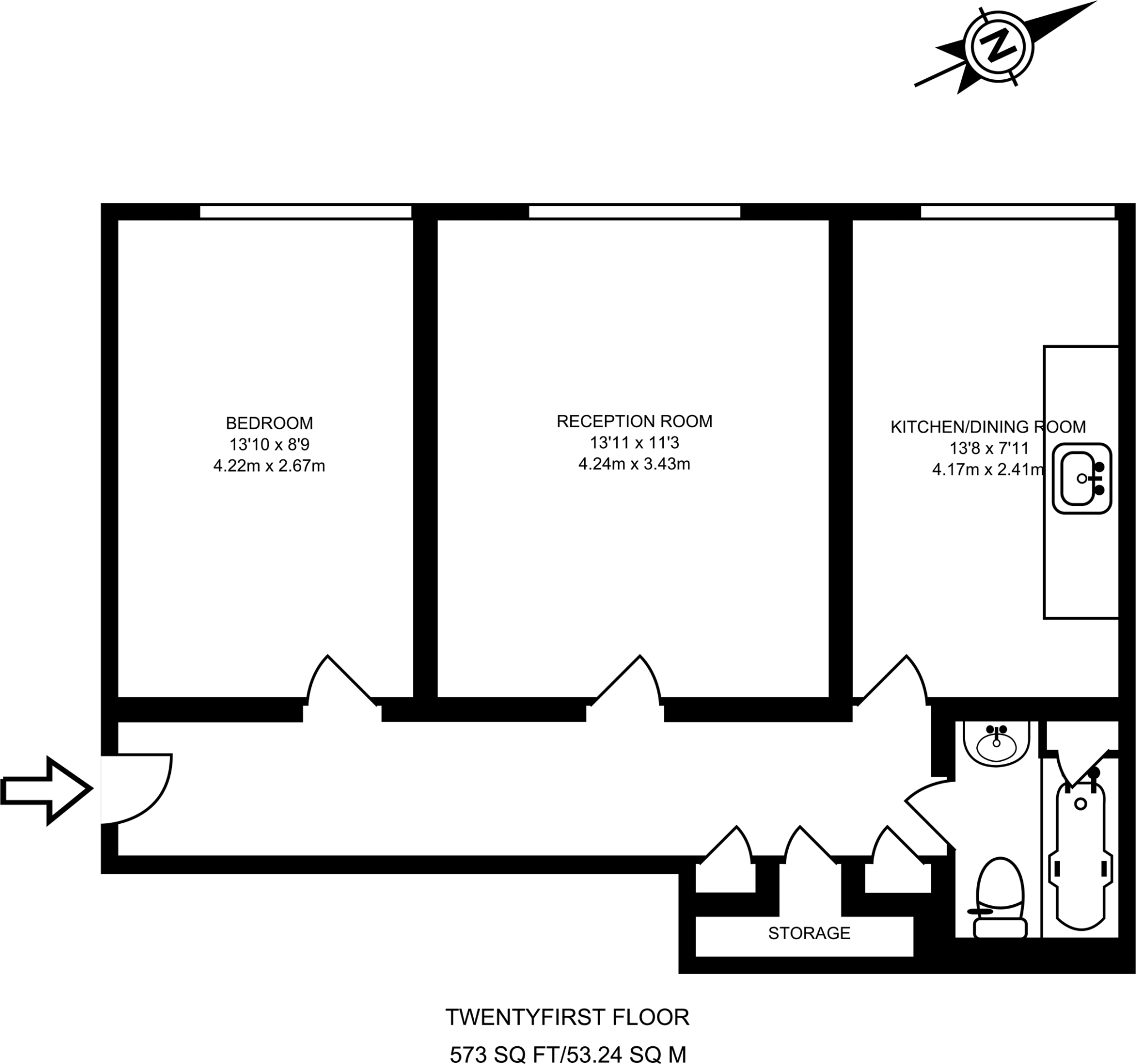
Perched on the twenty-first floor, this two-bedroom flat delivers dramatic city views and a private balcony — a rare find near St John’s Street and City Road. The living spaces are bright and airy with a well-equipped kitchen and straightforward, traditional layout, suited to buyers who value location and skyline outlooks.

At 541 sq ft the apartment is compact and best suited to first-time buyers or buy-to-let investors seeking strong central-London rental demand. Interiors show signs of wear, with dated décor and some areas that may need attention, including possible mould risk in cramped corners and general cosmetic updating.

Practicalities are clear: leasehold tenure, a single bathroom and a small overall footprint. The building is imposing and centrally placed, giving immediate access to Angel, Clerkenwell and the City. Broadband speeds are fast and mobile signal is excellent — convenient for remote working and city commuters.

Be aware the surrounding neighbourhood records higher crime levels and ranks as deprived, which may affect long-term resale or rental premiums. For buyers prioritising location and views over internal space, this flat offers an affordable entry into EC1V with scope to improve value through refurbishment.

Property Details

Image Descriptions

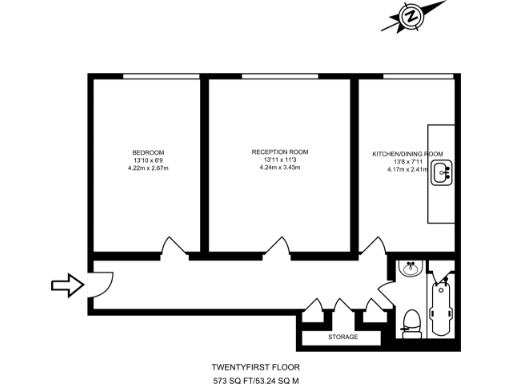
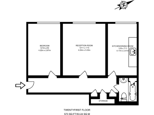
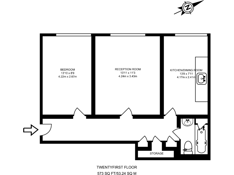
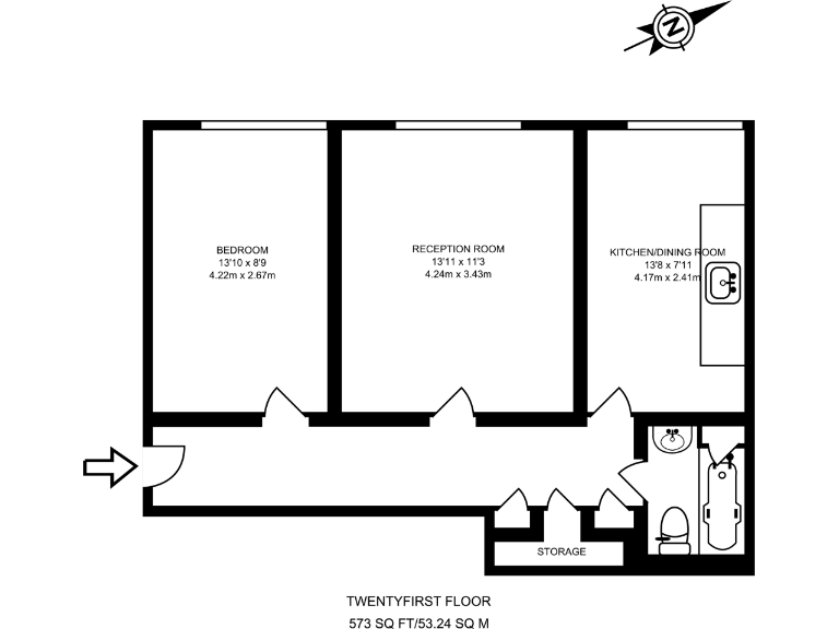
Floorplan Description

Rooms

Textual Property Features

Target Audience

AI Tags

Detected Visual Features

Nearby Schools

Nearest Bars And Restaurants

,,,,}

Nearest General Shops

,,}

Nearest Grocery shops

,,}

Nearest Supermarkets

,,}

Nearest Religious buildings

,,}

Nearest Medical buildings

,,,}

Nearest Airports

,}

Nearest Leisure Facilities

,,,,}

Nearest Tourist attractions

,,}

Nearest Train stations

,,,,}

Nearest Bus stations and stops

,,,,}

Nearest Hotels

,,}

Tags

Local Market Stats

AirBnB Data

Similar Properties

Meta

High Res Images

Compatible Images

Low res Images

Thumbnails

Raw Images

High Res Floorplan Images

Compatible Floorplan Images

Low res Floorplan Images

FloorplanImages Thumbnail

Raw Floorplan Images