**Standout Features:**
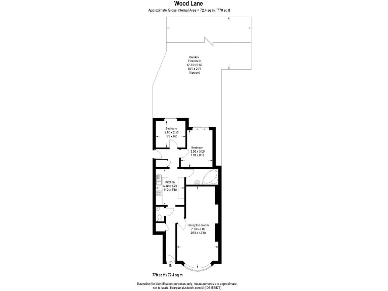
- Spacious ground floor apartment with approximately 779 sq. ft. of living space
- Open-plan lounge and dining room, offering flexibility for living arrangements
- Two bedrooms with serene garden views; principal bedroom with private balcony access
- Modern kitchen complete with built-in extractor oven and hob
- Large contemporary bathroom featuring a corner bath
- Private and sizable rear garden, perfect for relaxation or entertaining
- Off-street parking available
- Close proximity to Isleworth Station for convenient commuting to Waterloo
**Summary:**
Discover this charming ground floor apartment that strikes the perfect balance between space and convenience. With an impressive layout encompassing a lounge and separate dining area, this home is ideal for both relaxation and entertaining. The modern kitchen, equipped with essential appliances, flows seamlessly into comfortable living spaces, while the two cozy bedrooms provide peaceful views of the lush garden. Enjoy the splendid feature of a sliding door from the principal bedroom that opens to a private balcony and substantial rear garden, perfect for enjoying quiet evenings outdoors.
With gas central heating, off-street parking, and easy access to Isleworth Station, this property is well-suited for busy professionals and families alike. Neighbors include excellent schools, creating a nurturing environment for young families. While offering substantial livable space, the apartment also presents future potential for personalized renovations to make it your own. Given its unique features and prime location in a vibrant community, act swiftly to secure this wonderful home.
2 bedroom flat for sale in Oakley Close, Isleworth, TW7 — £325,000 • 2 bed • 1 bath • 602 ft²
2 bedroom apartment for sale in Nurburg House, TW7 — £450,000 • 2 bed • 2 bath • 773 ft²
2 bedroom apartment for sale in Thornbury Road, Isleworth, TW7 — £475,000 • 2 bed • 2 bath • 769 ft²
2 bedroom flat for sale in Shire Horse Way, Isleworth, TW7 — £325,000 • 2 bed • 1 bath • 611 ft²
2 bedroom apartment for sale in Academy Place, Isleworth, TW7 — £385,000 • 2 bed • 2 bath • 695 ft²
2 bedroom flat for sale in Woodlands Road, Isleworth, TW7 — £325,000 • 2 bed • 1 bath • 592 ft²






























































