**Standout Features:**
- Freehold plot of approximately 0.3 acres (6,500 sq. ft. planned build)
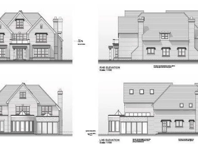
- Planning permission granted for a 6,500 sq. ft house
- Excellent countryside views and landscaped garden space
- Situated in a low-crime, affluent community
- Minutes from premium schools with high Ofsted ratings
**Summary:**
Discover an exceptional development opportunity with ‘Keystones’, a plot set on approximately 0.3 acres in the desirable HP9 postcode. With planning permission already secured for a remarkable 6,500 sq. ft. residence, this is the perfect canvas for creating your dream home. Enjoy beautiful countryside views and a vast, landscaped garden that adds to the allure. Located within a vibrant community boasting low crime rates and an impressive selection of high-caliber schools, this area is ideal for families looking for both comfort and education.
While the property currently has a slow broadband speed, the plot's potential far outweighs this concern. The exclusivity of a building plot in such a prestigious neighborhood, combined with the nearby amenities including retail centers, popular restaurants, and sports facilities, positions this property as a rare find. Don’t miss your chance to invest in this prime location where you can design your future living space in a thriving urban environment surrounded by natural beauty. Envision the possibilities today, as opportunities like this are not available for long!
Village house for sale in Manor Road, Penn, Buckinghamshire, HP10 — £1,100,000 • 1 bed • 1 bath • 5000 ft²
6 bedroom house for sale in Burkes Road, Beaconsfield, Buckinghamshire, HP9 — £2,250,000 • 6 bed • 5 bath • 9000 ft²
Plot for sale in Kestrel Drive, Hazlemere, High Wycombe, Buckinghamshire, HP15 — £695,000 • 1 bed • 1 bath
Plot for sale in Grove Road, Beaconsfield, HP9 — £1,950,000 • 1 bed • 1 bath • 11000 ft²
4 bedroom detached house for sale in Bottom Lane, Seer Green, Beaconsfield, Buckinghamshire, HP9 — £1,995,000 • 4 bed • 6 bath • 4870 ft²
Detached house for sale in Land, Boundary Road, HP10 — £100,000 • 1 bed • 1 bath






























