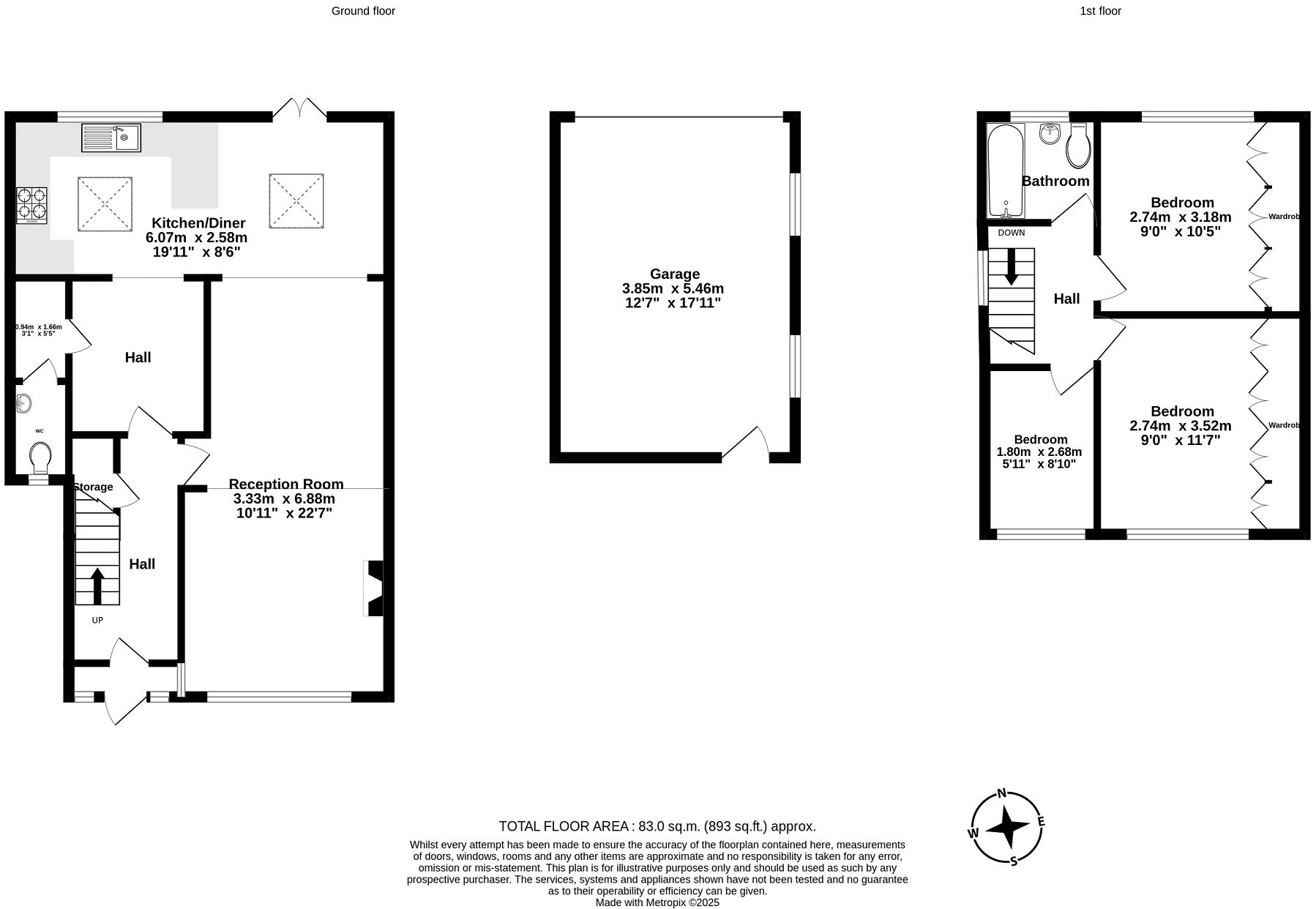
Well-presented three-bed extended family home with garage and low-maintenance garden..
Extended three-bedroom semi-detached house with modern kitchen/dining extension
22'7" x 10'11" through living room with good natural light
19'11" x 8'6" modern kitchen/dining area with patio doors
47' x 23' paved rear garden, low-maintenance outdoor space
Off-street parking to front plus 17'11" x 12'7" rear garage
Single bathroom only — may be limiting for larger families
Modest overall size (approx. 681 sq ft) — compact family footprint
Solid brick walls (no known insulation) — potential energy upgrades needed
This extended three-bedroom semi-detached house on Beechcroft Road offers practical family living in a well-connected Chessington location. The long through living room and modern kitchen/dining extension provide generous daytime space and good natural light, with patio doors opening to a paved rear garden ideal for low-maintenance entertaining.
The house is presented in good order with a modern white bathroom suite, double glazing and gas central heating, making it ready to move into for a family. Off-street parking to the front and a 17'11" x 12'7" garage accessed via a rear service road add useful vehicle storage and flexibility.
Buyers should note the overall size is modest (approx. 681 sq ft) and there is a single bathroom, which may be a consideration for larger families. The property dates from the 1930s–1940s and has solid brick walls (assumed without insulation), so further energy-efficiency improvements could be considered. Council tax is moderate.
3 bedroom semi-detached house for sale in Grange Road, Chessington, Surrey, KT9 — £500,000 • 3 bed • 1 bath • 994 ft²
3 bedroom end of terrace house for sale in Finlays Close, Chessington, Surrey. KT9 1XG, KT9 — £450,000 • 3 bed • 1 bath • 854 ft²
3 bedroom semi-detached house for sale in Hunters Road, Chessington, Surrey. KT9 1RU, KT9 — £550,000 • 3 bed • 1 bath • 1063 ft²
3 bedroom terraced house for sale in Hemsby Road, Chessington, KT9 2, KT9 — £400,000 • 3 bed • 1 bath • 974 ft²
3 bedroom semi-detached house for sale in Merling Close, Chessington, KT9 — £550,000 • 3 bed • 2 bath • 954 ft²
3 bedroom semi-detached house for sale in The Causeway, Chessington, Surrey. KT9 1DB, KT9 — £500,000 • 3 bed • 1 bath • 942 ft²


























































