Large period buildings with strong conversion potential near coast.
Freehold former care facility on a huge, enclosed plot
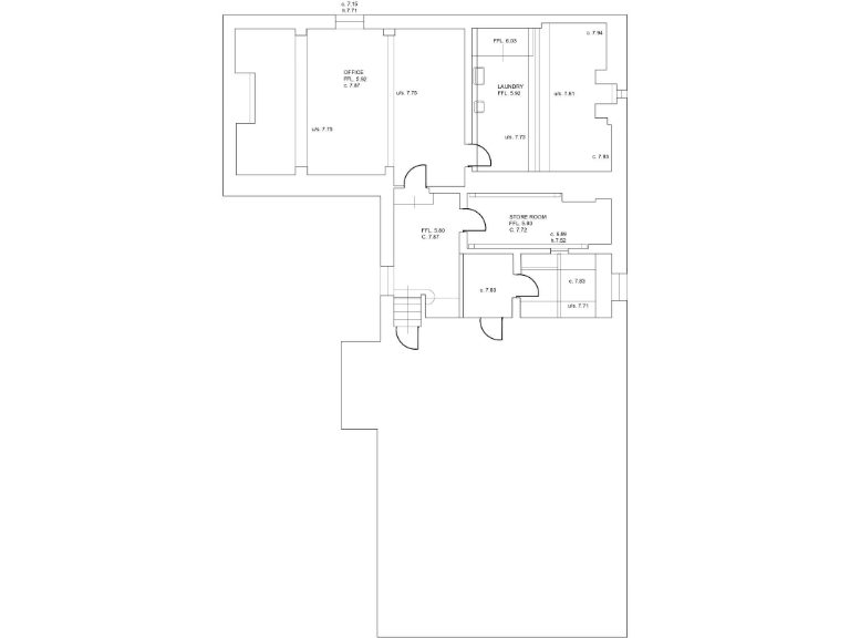
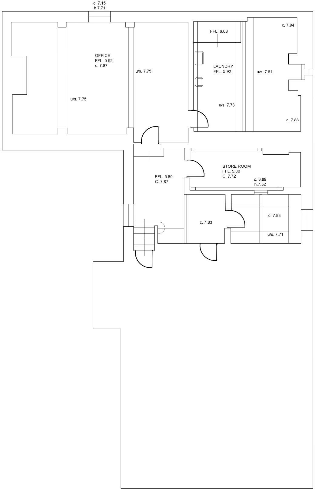
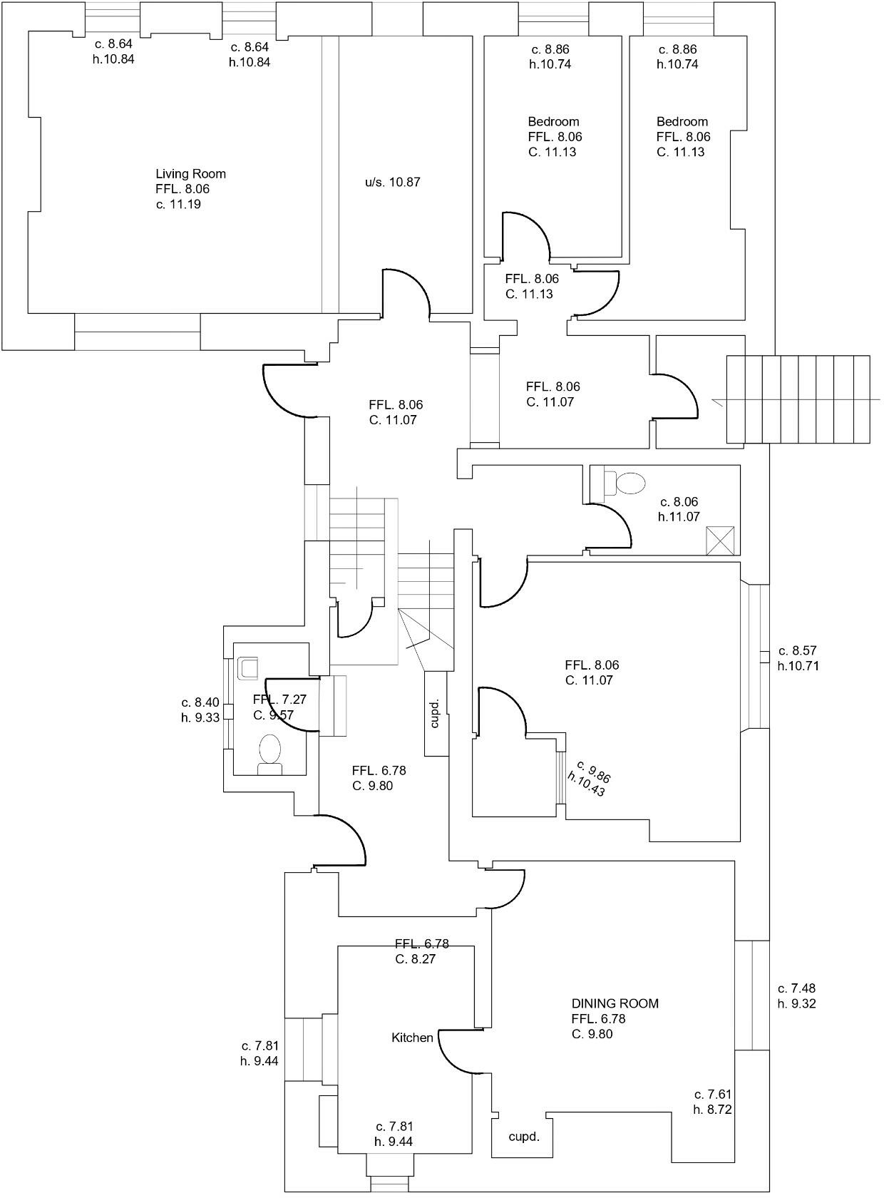
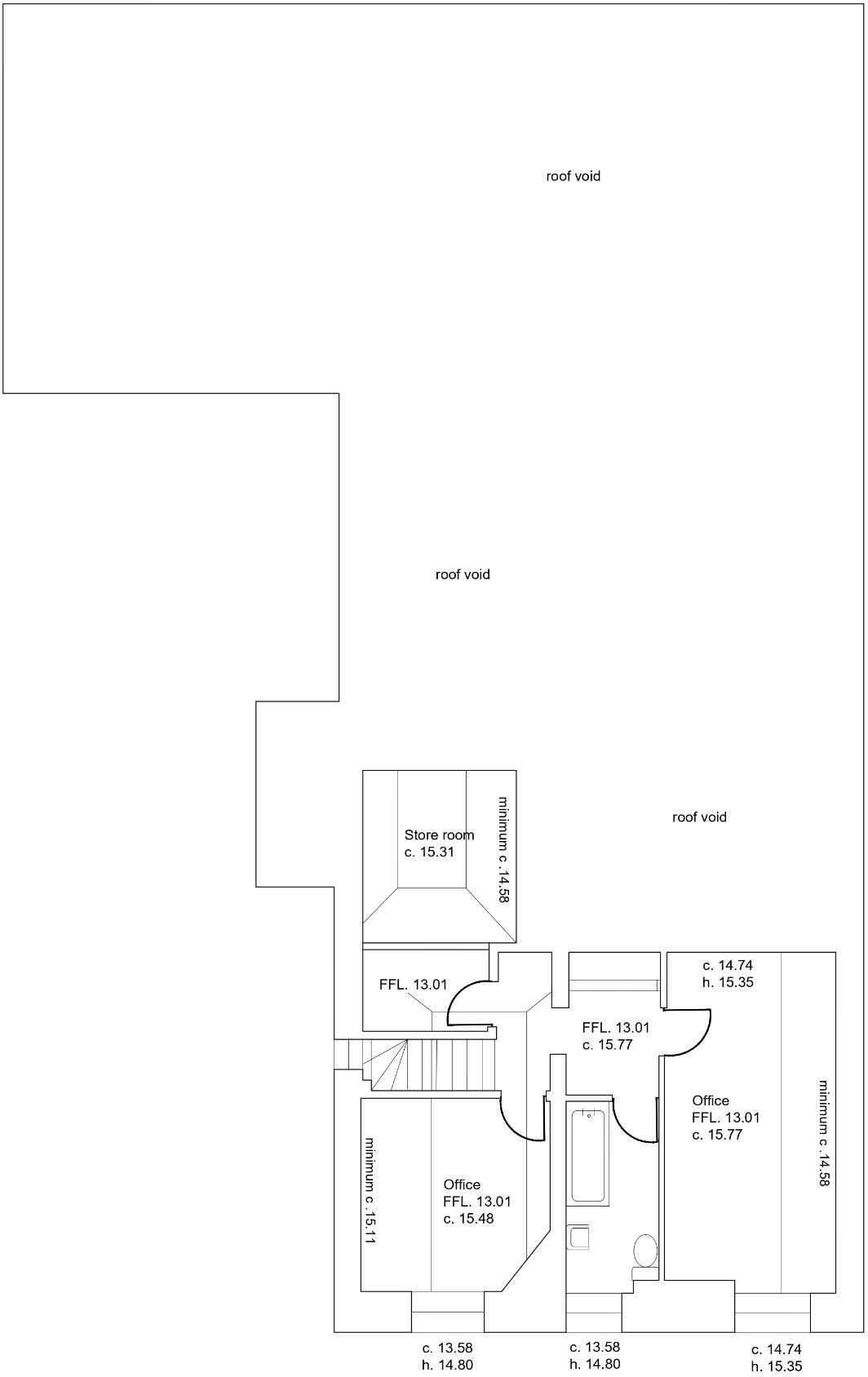
Courtwick Park is a substantial former care facility set on a very large, partly landscaped plot in Littlehampton. The property spans three main floors plus a usable basement and outbuildings, offering generous internal space and clear scope for conversion or modernisation subject to planning. Characterful period features and large room volumes give an attractive starting point for a residential reconfiguration or specialist housing scheme.
The accommodation includes ten double bedrooms on the first floor, two further bedrooms on the ground floor, basement utility and office space, and large communal living areas with direct access to an enclosed rectangular garden and private parking. The outside space and multiple buildings present opportunities to extend capacity or introduce new amenities, again subject to permissions.
Buyers should note the property requires renovation throughout and is being sold freehold. There is only one main bathroom serving the ten first-floor bedrooms and some ground-floor W/Cs; substantial upgrading of services and internal reconfiguration will be needed. Broadband speeds are slow, although mobile signal is excellent. Planning and building works will be necessary for conversion to alternative uses.
This property will suit developers or investors seeking a significant plot with conversion potential, or an owner-occupier prepared to undertake a large refurbishment to create a distinctive multi-bedroom residence with extensive grounds and parking.
Commercial development for sale in Adult Learning Centre, Brougham Road, Worthing, West Sussex BN11 2NU, BN11 — £1,500,000 • 1 bed • 1 bath • 27007 ft²
6 bedroom detached house for sale in Warningcamp, BN18 — £1,500,000 • 6 bed • 2 bath • 3400 ft²
4 bedroom detached house for sale in St. Raphael Road, Worthing, BN11 — £600,000 • 4 bed • 3 bath • 2199 ft²
9 bedroom detached house for sale in Lyminster Road, Lyminster, Arundel, West Sussex, BN17 — £3,950,000 • 9 bed • 8 bath • 10121 ft²
Residential development for sale in Bilsham Road, Yapton, BN18 — £395,000 • 1 bed • 1 bath • 2057 ft²
Land for sale in Plots C & D, Hampton Park, Toddington Lane, Littlehampton, West Sussex, BN17 — POA • 1 bed • 1 bath














































































