**Standout Features:**
- Stylish two-bedroom apartment in a historic building
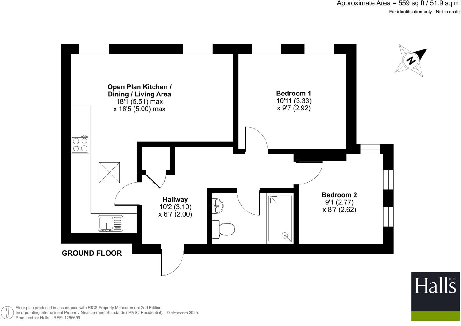
- Open-plan kitchen and living area, perfect for modern living
- Secure gated access with allocated parking
- Communal gardens for outdoor enjoyment
- Very low crime rate in a pleasant neighborhood
**Potential Downsides:**
- Small overall size (559 sq ft)
- Service charge of approximately £1260 per year
- Leasehold tenure, which may require additional considerations for some buyers
Discover contemporary living in this charming two-bedroom ground-floor apartment, ideally located on the fringe of Oswestry’s town centre. Constructed in 2023, this flat seamlessly combines modern design with the character of a historic site previously housing a school and magistrate's court. Enjoy a secure gated access to your home, along with allocated parking and beautifully maintained communal gardens, perfect for relaxing outdoors.
Step inside to find an open-plan kitchen and living area, featuring sleek high-gloss cabinets and stainless-steel appliances, creating an inviting space for gatherings. The two well-sized bedrooms provide comfort and versatility, whether for family living or as a personal oasis. Given its attractive price point at £180,000, this property is an excellent opportunity for first-time buyers, couples, or small families looking for a stylish home in a family-friendly neighborhood.
While the apartment offers modern convenience and an excellent local environment with crucial amenities and easy access to transport links, the small size and leasehold nature could be considerations for buyers. Don’t miss out on this exclusive opportunity to live in a vibrant community with a low crime rate—schedule a viewing today!
 2 bedroom apartment for sale in Apartment 9, Holbache Court, SY11 — £229,950 • 2 bed • 1 bath • 754 ft²
 2 bedroom apartment for sale in Apartment 9, Holbache Court, SY11 — £229,950 • 2 bed • 1 bath • 754 ft² 1 bedroom apartment for sale in Apartment 3, Holbache Court, SY11 — £159,950 • 1 bed • 1 bath • 467 ft²
 1 bedroom apartment for sale in Apartment 3, Holbache Court, SY11 — £159,950 • 1 bed • 1 bath • 467 ft² 2 bedroom apartment for sale in Apartment 6, Holbache Court, SY11 — £249,950 • 2 bed • 2 bath • 856 ft²
 2 bedroom apartment for sale in Apartment 6, Holbache Court, SY11 — £249,950 • 2 bed • 2 bath • 856 ft² 2 bedroom apartment for sale in Holbache Court, Oswestry, SY11 — £229,950 • 2 bed • 1 bath • 753 ft²
 2 bedroom apartment for sale in Holbache Court, Oswestry, SY11 — £229,950 • 2 bed • 1 bath • 753 ft² 2 bedroom apartment for sale in Holbache Court, Oswestry, SY11 — £249,950 • 2 bed • 2 bath • 861 ft²
 2 bedroom apartment for sale in Holbache Court, Oswestry, SY11 — £249,950 • 2 bed • 2 bath • 861 ft² 2 bedroom flat for sale in Beatrice Court, Beatrice Street, Oswestry, SY11 — £120,000 • 2 bed • 1 bath • 479 ft²
 2 bedroom flat for sale in Beatrice Court, Beatrice Street, Oswestry, SY11 — £120,000 • 2 bed • 1 bath • 479 ft²


















































