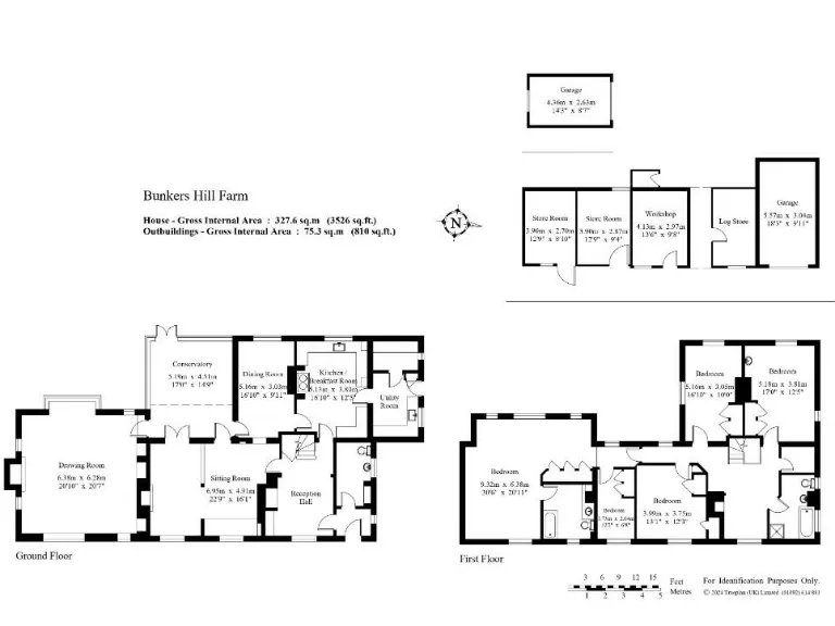
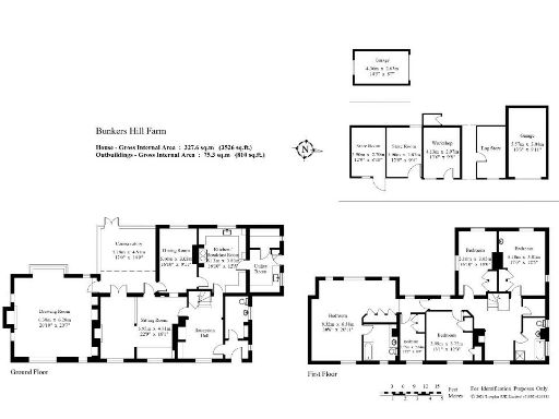
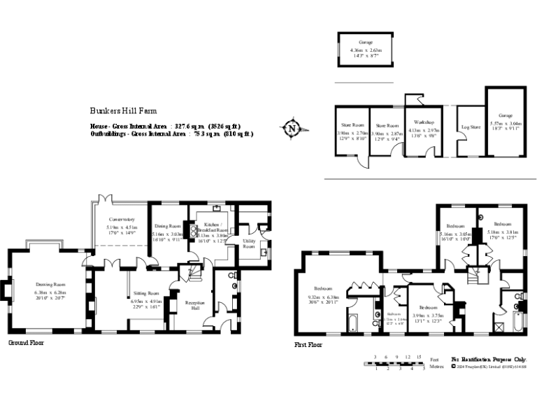
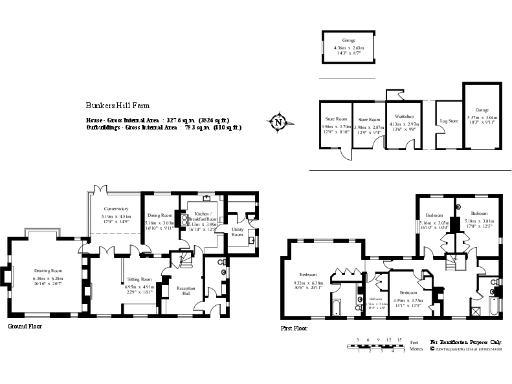
Five-bedroom farmhouse with paddocks, tennis court and outbuildings — ideal for equestrian or family living.
5 double and single bedrooms across 3,526 sq ft of accommodation
Very large plot with approx. paddock land suitable for horses or livestock
Mature landscaped gardens, tennis court, summerhouse and duck pond
Range of outbuildings: garage, workshop, stores — development potential (S.T.P)
No mobile signal on site and very slow broadband speeds
Located in Kent Downs AONB; rural yet accessible to nearby villages
Freehold tenure with off-street parking for several vehicles
Local area shows higher crime figures and signs of deprivation
Set within the Kent Downs National Landscape, Bunkers Hill Farm is a substantial five-bedroom farmhouse blending period character with later extensions. The house offers generous reception rooms, a conservatory, and a principal suite with en suite bathroom — comfortable living spaces for a growing family or someone seeking rural seclusion.
Outside, the property sits on a very large plot with paddock land (available as part of the lot) suitable for equestrian or small livestock use, mature landscaped gardens, a tennis court and a range of ancillary outbuildings including garage and workshop. The grounds and outbuildings present clear potential for further improvement or conversion, subject to necessary planning consents.
The location is rural and private yet accessible to nearby villages and schools, making it attractive for countryside family life. Practical drawbacks are material: there is no mobile signal and broadband speeds are very slow, which will affect remote working and connectivity. The wider area records higher crime levels and local deprivation indicators, which should be considered alongside the property’s rural benefits.
This is a property for buyers seeking space, character and land — particularly equestrian or hobby-farming households — who accept the need for some modernisation and can manage connectivity limitations. Additional land and buildings are available by separate negotiation for those wanting to expand the holding.
5 bedroom detached house for sale in Alkham, Dover, Kent, CT15 — £1,700,000 • 5 bed • 3 bath • 3587 ft²
6 bedroom detached house for sale in South Green, Sittingbourne, ME9 — £1,395,000 • 6 bed • 5 bath • 5576 ft²
5 bedroom detached bungalow for sale in Field Mill Road, Egerton, TN27 — £1,100,000 • 5 bed • 2 bath • 2500 ft²
5 bedroom detached house for sale in Loddington Lane, Linton, Maidstone, Kent, ME17 — £1,800,000 • 5 bed • 6 bath • 6549 ft²
5 bedroom detached house for sale in Woodland Road, Lyminge, Folkestone, CT18 — £925,000 • 5 bed • 3 bath • 1732 ft²
2 bedroom detached house for sale in Lomas Lane, Sandhurst, Kent, TN18 — £1,475,000 • 2 bed • 1 bath • 21700 ft²






























































































































