DH9 8AH - 2 bedroom terraced house for sale in Beamish Street, Stanle…

View on Property Piper

2 bedroom terraced house for sale in Beamish Street, Stanley, DH9

Summary - 32, BEAMISH STREET DH9 8AH

2 bed 2 bath Terraced

**Standout Features:**
- Large commercial unit with significant development potential
- Three floors totaling 2982 square feet (approximately 277 square meters)
- Previous use as a charity shop, providing a versatile space for retail or office purposes
- Freehold tenure with vacant possession
- Off-street parking access
- Prime location close to local amenities

**Summary:**
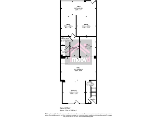
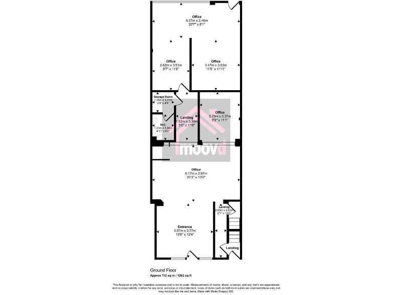
Unlock the potential of this expansive commercial unit on Beamish Street, Stanley, offered via online auction with a starting price of £70,000 plus fees. This property boasts an impressive 2982 square feet of space, spanning three levels—including a spacious basement perfect for additional storage or creative uses. The ground floor features a central retail space, two smaller rooms, a kitchen, and a WC, while the first floor includes a large office area with two additional WCs, supporting various business models or the exciting prospect of residential conversion.

With vacant possession and off-street parking, this property is ready for your vision. It's positioned conveniently near local amenities, including supermarkets and leisure facilities, ensuring ease of access for clients or residents. While the building requires renovation—including updates to the glazing and insulation—it represents a unique investment opportunity primed for thoughtful revitalization. Explore the possibilities and do not miss out—viewings are strictly by appointment and this property is expected to attract keen interest! Investing here could be your gateway to a lucrative future amidst a developing urban landscape.

Property Details

Brochure Descriptions

Image Descriptions

Floorplan Description

Rooms

Textual Property Features

Detected Visual Features

EPC Details

Nearby Schools

Nearest Bars And Restaurants

,,,,}

Nearest General Shops

,,}

Nearest Grocery shops

,,}

Nearest Supermarkets

,,}

Nearest Religious buildings

,,}

Nearest Medical buildings

,,,}

Nearest Airports

,}

Nearest Leisure Facilities

,,,,}

Nearest Tourist attractions

,,}

Nearest Train stations

,,,,}

Nearest Bus stations and stops

,,,,}

Nearest Hotels

,,}

Tags

Local Market Stats

Similar Properties

Meta

High Res Images

Compatible Images

Low res Images

Thumbnails

Raw Images

High Res Floorplan Images

Compatible Floorplan Images

Low res Floorplan Images

FloorplanImages Thumbnail

Raw Floorplan Images