Fully furnished, income‑producing 3 bed apartment with direct Porth Beach access and stunning sea views.
Direct beach access and panoramic Atlantic sea views
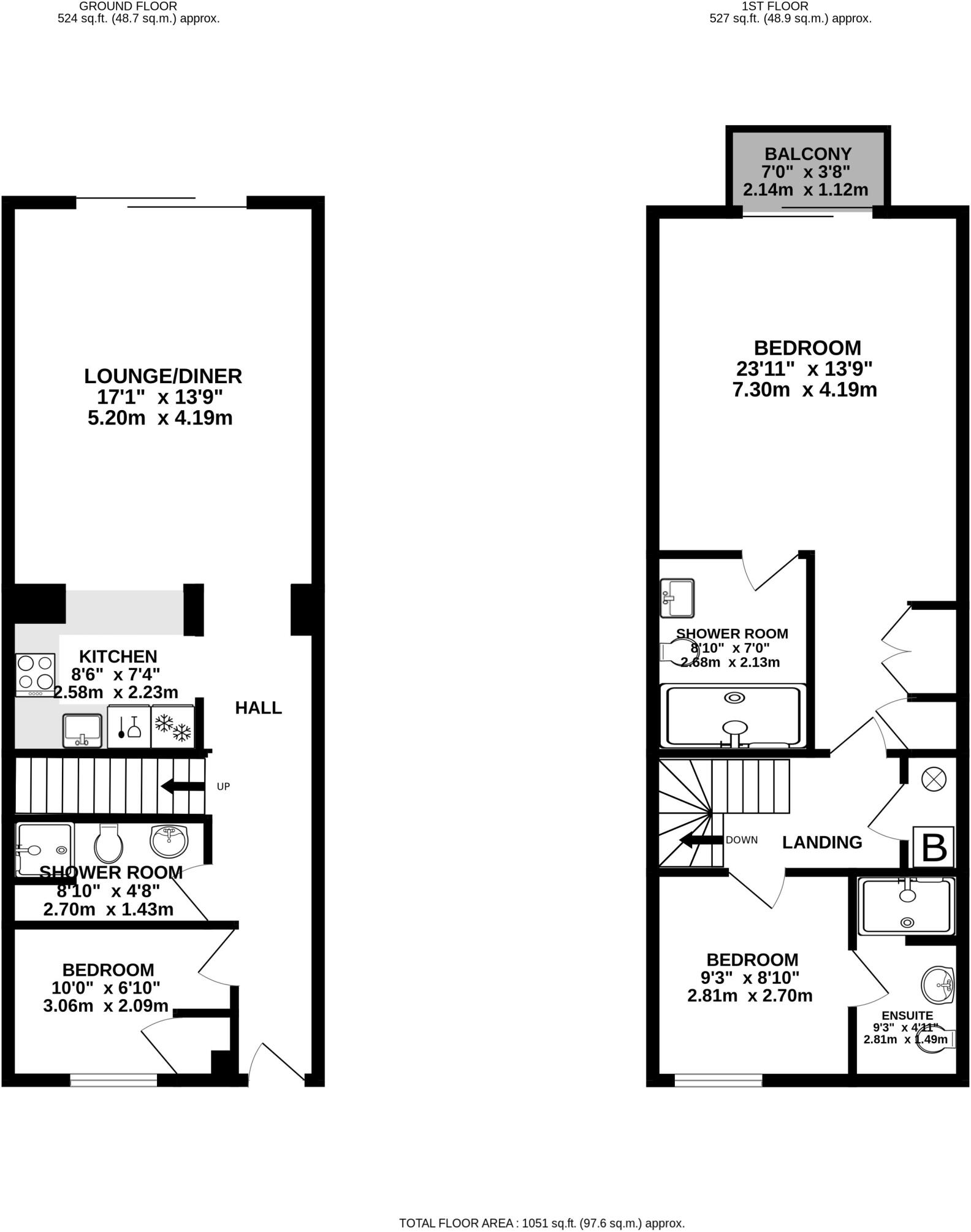
Front-line and fully furnished, Apartment 3 at Glendorgal Sands occupies a rare headland position with direct access to Porth Beach, Lusty Glaze and the South West Coast Path. The apartment has three bedrooms, two en‑suite shower rooms, a compact fully equipped kitchen and a first‑floor balcony framing panoramic Atlantic views — a ready-to-run holiday home with bookings already in place.
Interior finishes are contemporary and low‑maintenance, and the property benefits from an enclosed garden, decked terrace, allocated off‑street parking and a convenient utility/shower room on the ground floor. The long 999‑year lease and established rental performance make this an attractive purchase for investor‑buyers seeking a seaside income stream.
Buyers should note practical details: the property uses electric storage heating and electricity as the main fuel, broadband speeds in the area are slow, and there is an annual service charge and buildings insurance of £2,584.33. The apartment is leasehold and sits within a managed estate, which contributes to the upkeep and communal facilities.
This is a straightforward proposition for someone seeking an exceptional coastal location with strong holiday demand and immediate rental potential. It will suit purchasers who prioritise location and turnkey rental income, and who are comfortable with electric heating and the management costs associated with a serviced development.
2 bedroom apartment for sale in Beach Road, Porth, TR7 — £300,000 • 2 bed • 2 bath • 749 ft²
2 bedroom terraced house for sale in Alexandra Road, Newquay, Cornwall, TR7 — £275,000 • 2 bed • 1 bath • 710 ft²
2 bedroom apartment for sale in Porth Sand, Beach Road, Porth, Newquay, TR7 — £360,000 • 2 bed • 2 bath • 718 ft²
2 bedroom apartment for sale in Island Point, Watergate Road, Porth, Newquay, TR7 — £260,000 • 2 bed • 2 bath • 847 ft²
4 bedroom terraced house for sale in Lusty Glaze Road, Newquay, TR7 — £357,500 • 4 bed • 3 bath • 1153 ft²
3 bedroom apartment for sale in Lusty Glaze Road, Newquay, TR7 — £441,000 • 3 bed • 2 bath • 939 ft²






















































































