SL8 5RY - 3 bedroom detached house for sale in Southbourne Drive, Bou…

View on Property Piper

3 bedroom detached house for sale in Southbourne Drive, Bourne End, SL8

Summary - 21 SOUTHBOURNE DRIVE, BOURNE END SL8 5RY

3 bed 1 bath Detached

**Key Features:**
- Offers over £550,000
- Spacious detached family home in need of updating
- Three bedrooms and one bathroom
- Two reception rooms ideal for family living
- Driveway and garage for convenient parking
- Good-sized garden with potential for landscaping
- Chain-free sale, allowing for quick move-in
- Located in the desirable Thameside village of Bourne End

This charming three-bedroom detached family home presents an exciting renovation opportunity in the heart of Bourne End, a highly sought-after Thameside village. Boasting two generous reception rooms, this property provides a welcoming atmosphere for family bonding and entertaining guests. While it requires updating throughout, the home’s potential awaits your personal touch, making it perfect for those looking to invest in their dream space.

With the added benefit of off-street parking through its driveway and garage, as well as a modest garden ready for your landscaping vision, this home is perfectly suited for family life. Enjoy easy access to local amenities, excellent schools, and a thriving community filled with shops, cafes, and recreational opportunities. This property is chain-free and priced attractively, making it an exceptional find in an affluent area. Don't miss your chance to view and explore the possibilities this home offers—seize the moment and start your renovation journey today!

Property Details

Brochure Descriptions

Image Descriptions

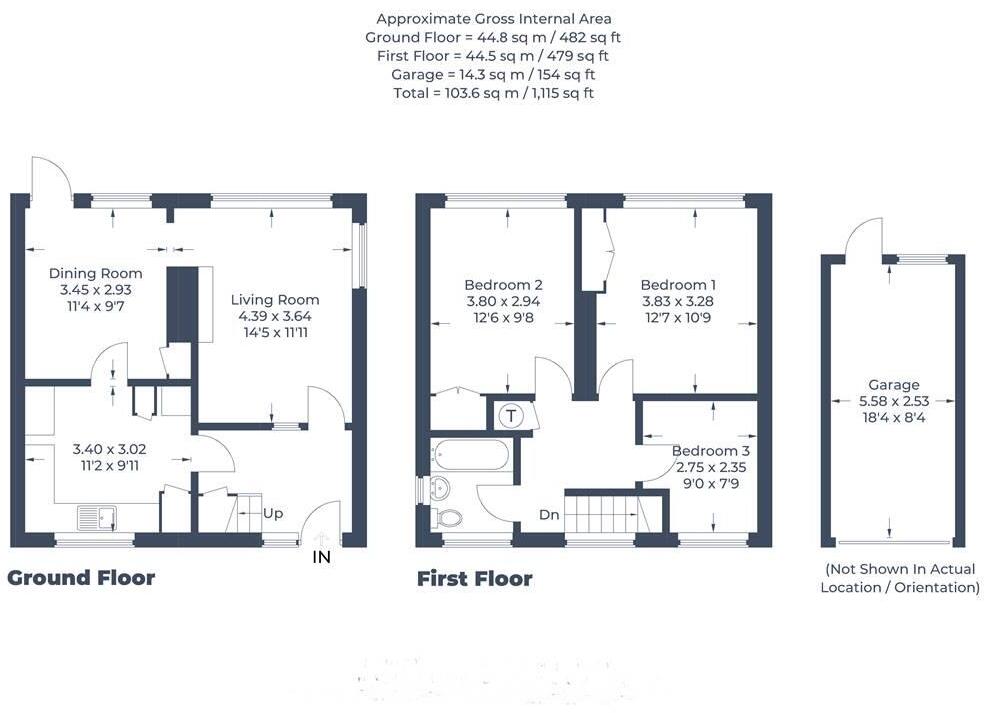
Floorplan Description

Rooms

Textual Property Features

Detected Visual Features

EPC Details

Nearby Schools

Nearest Bars And Restaurants

,,,,}

Nearest General Shops

,,}

Nearest Grocery shops

,,}

Nearest Supermarkets

,,}

Nearest Religious buildings

,,}

Nearest Medical buildings

,,,}

Nearest Airports

}

Nearest Leisure Facilities

,,,,}

Nearest Tourist attractions

,,}

Nearest Train stations

,,,,}

Nearest Bus stations and stops

,,,,}

Nearest Hotels

,,}

Tags

Local Market Stats

AirBnB Data

Similar Properties

Meta

High Res Images

Compatible Images

Low res Images

Thumbnails

Raw Images

High Res Floorplan Images

Compatible Floorplan Images

Low res Floorplan Images

FloorplanImages Thumbnail

Raw Floorplan Images