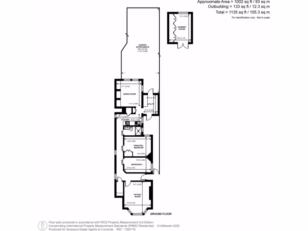
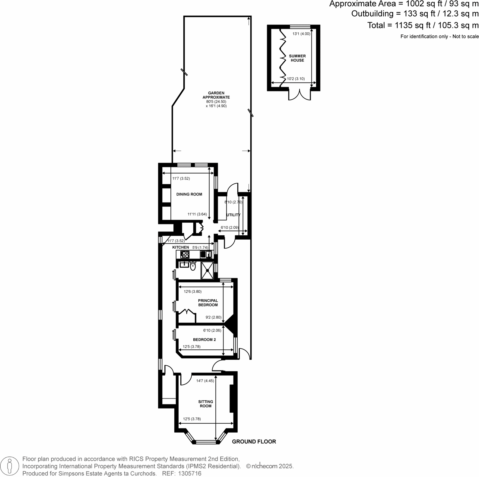
**Standout Features:**
- Ground floor garden maisonette with a generous 1135 sq ft living space
- Two spacious bedrooms and two reception rooms
- Detached garden studio, perfect for a home office or leisure space
- Large private garden ideal for outdoor entertaining
- Just a five-minute walk to Norbiton station for easy commuting
- Share of Freehold with 994 years remaining
- Modern gas and electric heating, with double glazing installed after 2002
- Located in a culturally vibrant inner-city area
Discover a rare gem in this charming ground floor garden maisonette, expertly blending period elegance with modern living. Spanning an impressive 1135 sq ft, this two-bedroom home boasts two airy reception rooms filled with ample natural light, along with a delightful detached studio in the garden—perfect for a workspace or creative retreat. Step outside to the expansive private garden, ideal for entertaining or relaxation. Situated just five minutes from Norbiton station, this property offers exceptional convenience for commuters, all while accommodating a lively urban atmosphere.
With a shared ownership of the freehold and a long lease, this maisonette stands as an excellent investment opportunity or an ideal first home for families seeking a community-oriented environment. While the property's solid brick construction may require some updates in insulation and maintenance, the overall structure remains sound, ready for your personal touches. Act now—properties of this caliber and charm are rare in this desired location!
2 bedroom maisonette for sale in Queens Road, Kingston Upon Thames, KT2 — £595,000 • 2 bed • 1 bath • 654 ft²
3 bedroom maisonette for sale in 3A Brunswick Road, Kingston upon Thames, KT2 — £690,000 • 3 bed • 2 bath • 1367 ft²
3 bedroom maisonette for sale in Villiers Road, Kingston upon Thames, KT1 — £525,000 • 3 bed • 1 bath • 939 ft²
2 bedroom maisonette for sale in Woodcote Close, Kingston upon Thames, KT2 — £400,000 • 2 bed • 1 bath • 710 ft²
2 bedroom maisonette for sale in Ellerton Road, Surbiton, KT6 — £435,000 • 2 bed • 1 bath • 728 ft²
1 bedroom maisonette for sale in Kings Road, Kingston Upon Thames, KT2 — £410,000 • 1 bed • 1 bath • 537 ft²






































































