Quiet plot with countryside views and generous parking for multiple cars.
- Two double bedrooms plus large converted loft room
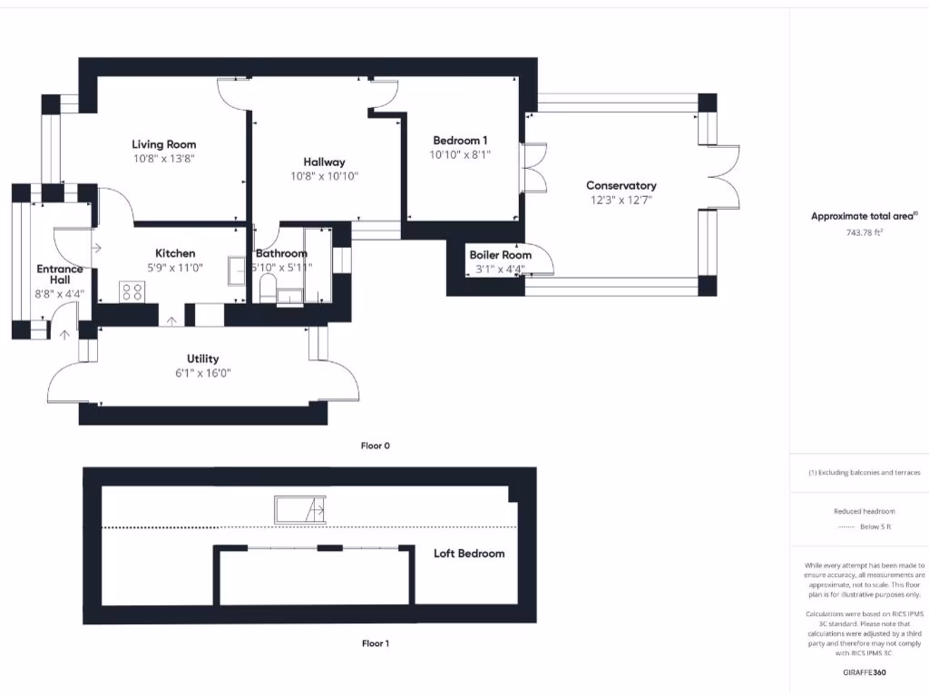
A two-bedroom semi-detached bungalow in a quiet, sought-after stretch of Sutton-on-Sea, offering single-storey living with useful extra space from a converted loft. The property sits on a generous plot with a fully enclosed lawned garden, several sheds and a driveway wide enough for multiple vehicles. Countryside views to the rear add calm and privacy.
Internally the layout is traditional and practical: living room with bay window, kitchen with adjoining utility, a conservatory overlooking the garden, bathroom and a loft bedroom providing substantial additional accommodation. The home is double glazed and freehold, with fast broadband and excellent mobile signal — convenient for modern living or part-time coastal owners.
The bungalow will suit buyers seeking easy, single-floor living or those looking to refurbish and add value. It benefits from low flood risk and very low council tax banding, but does need updating in places. Heating is by electric room heaters and the glazing install date is unknown, so buyers should budget for modern heating and possible insulation or window upgrades.
Overall this is a comfortable, mid-century bungalow with strong potential for improvement and immediate occupation. The layout and plot make it especially appealing for downsizers wanting manageable grounds or buyers after a seaside retreat with future refurbishment upside.
2 bedroom detached bungalow for sale in Huttoft Road, Sutton-On-Sea, LN12 — £375,000 • 2 bed • 1 bath • 1291 ft²
2 bedroom bungalow for sale in Crabtree Lane, Sutton-on-Sea, Mablethorpe, Lincolnshire, LN12 — £180,000 • 2 bed • 1 bath
2 bedroom semi-detached bungalow for sale in Rudyard Close, Sandilands, Mablethorpe, LN12 — £210,000 • 2 bed • 1 bath • 883 ft²
2 bedroom semi-detached bungalow for sale in Kipling Drive, Sandilands, LN12 — £180,000 • 2 bed • 1 bath • 850 ft²
2 bedroom semi-detached bungalow for sale in Furlongs Road, Sutton-On-Sea, LN12 — £185,000 • 2 bed • 1 bath • 566 ft²
2 bedroom semi-detached bungalow for sale in Millfield, Trusthorpe, LN12 — £169,950 • 2 bed • 1 bath • 1054 ft²






















































































































