LS29 0NF - 4 bedroom terraced house for sale in Victoria Terrace, Addi…

View on Property Piper

4 bedroom terraced house for sale in Victoria Terrace, Addingham, LS29

Summary - 16 VICTORIA TERRACE ADDINGHAM ILKLEY LS29 0NF

4 bed 2 bath Terraced

**Standout Features:**
- Chain-free Victorian mid-terrace house
- Four bedrooms, including a top-floor en-suite
- Stunning views of Beamsley Beacon
- Spacious breakfast kitchen and living room
- Off-street parking for two vehicles
- Enclosed front garden and stepped rear patio garden
- Prime location in the desirable Addingham village

**Concise Summary:**
Discover this beautifully presented Victorian mid-terraced home nestled in the sought-after village of Addingham. Spanning four spacious levels, this chain-free property offers four bedrooms, including a top-floor suite with en-suite bathroom, making it ideal for family living. The inviting breakfast kitchen and elegant living room feature high ceilings and period details, creating a comfortable and stylish space. Enjoy stunning views of Beamsley Beacon from the rear patio and take advantage of off-street parking for two vehicles.

Set within a charming community, you'll have easy access to local amenities, including shops, pubs, and excellent primary and secondary schools. While the property boasts historic beauty and ample living space, it does require some minor updates to reach its full potential. Don't miss this opportunity; properties like this don't last long on the market!

Property Details

Brochure Descriptions

Image Descriptions

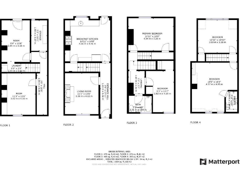
Floorplan Description

Rooms

Textual Property Features

Detected Visual Features

EPC Details

Nearby Schools

Nearest Bars And Restaurants

,,,,}

Nearest General Shops

,,}

Nearest Grocery shops

,,}

Nearest Supermarkets

,,}

Nearest Religious buildings

,,}

Nearest Medical buildings

,,,}

Nearest Airports

}

Nearest Leisure Facilities

,,,,}

Nearest Tourist attractions

,,}

Nearest Train stations

,,,,}

Nearest Bus stations and stops

,,,,}

Nearest Hotels

,,}

Tags

Local Market Stats

AirBnB Data

Similar Properties

Meta

High Res Images

Compatible Images

Low res Images

Thumbnails

Raw Images

High Res Floorplan Images

Compatible Floorplan Images

Low res Floorplan Images

FloorplanImages Thumbnail

Raw Floorplan Images