**Standout Features:**
- Unique 1889 chapel with full residential planning permission for conversion to a 2-bedroom home (25/0869/FUL).
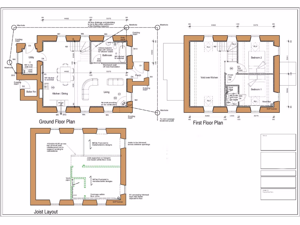
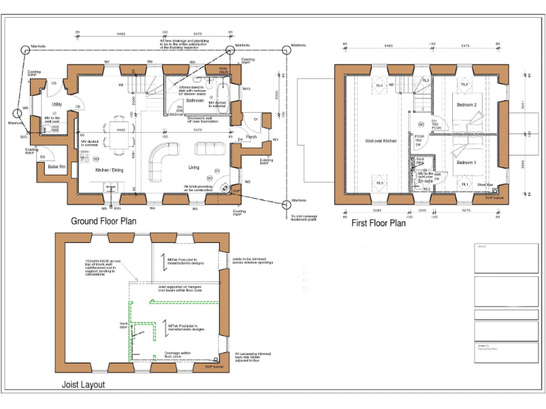
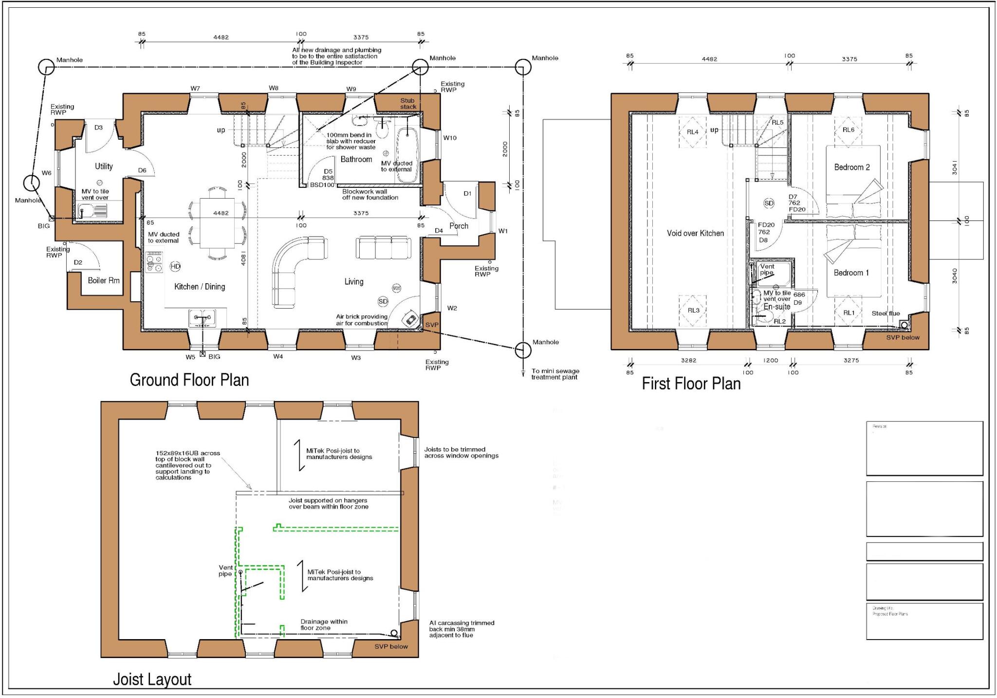
- Spacious layout featuring a planned open-plan living area, kitchen/dining space, and two bathrooms.
- Off-road parking for two vehicles and a substantial garden, ideal for outdoor enjoyment.
- Nestled in the beautiful Shropshire Hills AONB, perfect for outdoor enthusiasts.
- Investment potential as a profitable holiday let in a sought-after rural area.
**Potential Concerns:**
- Property needs renovation and landscaping to restore its charm.
- Currently appears unkempt, requiring significant work to unlock its full potential.
**Summary Description:**
Nestled in the tranquil conservation area of Hyssington, this unique former chapel offers an exciting opportunity to create a bespoke two-bedroom home surrounded by the stunning scenery of the Shropshire Hills AONB. Full residential planning permissions in place provide a secure pathway to transforming this historic structure into a contemporary retreat, complete with plans for a spacious open-plan living area, utility room, and two well-proportioned bedrooms, one with an en-suite bathroom.
The property needs renovations, allowing the new owner to customize the space to their preferences, and it comes with generous outdoor space, including off-road parking and a sizable garden, perfect for relaxing or entertaining. With its architectural charm and potential for a profitable holiday let or personal residence, this property is ideally positioned to take full advantage of rural living. Don't miss this rare opportunity to own a piece of history and turn it into your dream home or investment in one of the most picturesque areas in the country.
3 bedroom detached house for sale in Chapel House, Meadowtown, Shrewsbury, SY5 — £200,000 • 3 bed • 2 bath • 1088 ft²
3 bedroom detached bungalow for sale in Ludlow Road, Little Stretton, SY6 — £550,000 • 3 bed • 2 bath • 1217 ft²
3 bedroom detached house for sale in Ludlow Road, Little Stretton, Church Stretton, Shropshire, SY6 — £575,000 • 3 bed • 3 bath • 1378 ft²
4 bedroom terraced house for sale in Bridge End, Churchstoke, Montgomery, SY15 — £229,950 • 4 bed • 3 bath • 1135 ft²
3 bedroom detached house for sale in Perkins Beach Dingle, Snailbeach, Shrewsbury, SY5 — £450,000 • 3 bed • 2 bath • 1423 ft²
4 bedroom detached bungalow for sale in Symbista, Ragdon,Church Stretton SY6 7EY, SY6 — £375,000 • 4 bed • 1 bath • 774 ft²


















































