**Standout Features:**
- Recently renovated and designed for family living
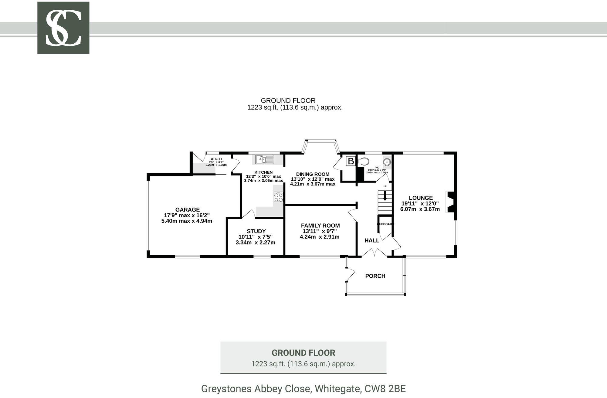
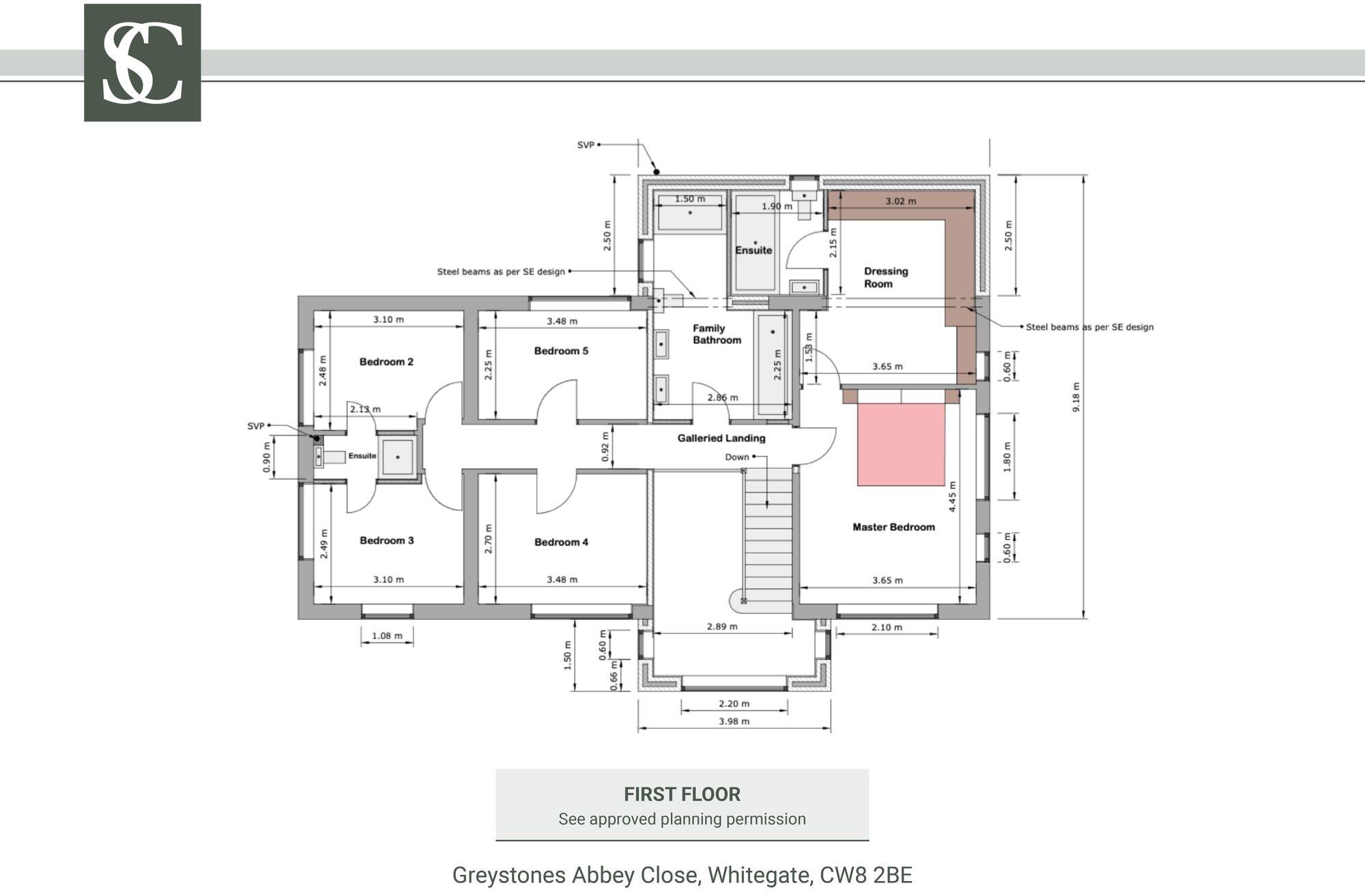
- Planning permission approved (22/02842/FUL) for further enhancements
- Spacious, light-filled interior with character and comfort
- Large wraparound gardens, ideal for family fun and entertaining
- Located in a serene cul-de-sac within a semi-rural setting
- Ample parking with a double garage
- Excellent local schools with good ratings
**Notable Concerns:**
- Average broadband speeds
- Expensive council tax
- Maintenance required for some landscaping
Discover Greystones, a beautifully renovated five-bedroom detached home nestled in a tranquil cul-de-sac in the heart of Whitegate. With its spacious wraparound gardens and light-filled rooms, this property is perfect for families seeking a peaceful retreat in nature. The open-plan design, featuring a striking dining room that connects to a modern kitchen, ensures both comfort and versatility. Original features such as a charming fireplace and restored parquet flooring add character, creating a unique blend of vintage charm and contemporary living.
This residence not only meets your immediate needs but offers remarkable potential for future enhancements, with approved planning permission for a stunning extension that promises to elevate the property further. Imagine transforming the existing space into an expansive open-plan kitchen and living area, seamlessly merging indoor and outdoor living.
Perfectly positioned, Greystones allows you to savor the serenity of countryside life while being well-connected to nearby amenities. Families will appreciate being surrounded by several highly-rated local schools and the idyllic walking paths of Whitegate Woods, a true community gem. With ample parking and a setting brimming with wildlife, this home is a rare find that invites you to enjoy both comfort and opportunity. Don't miss your chance to own a slice of country paradise—properties like this are hard to come by!
4 bedroom detached house for sale in The White House, Dalefords Lane - stunning house in 0.47 acre south west facing plot, CW8 — £1,150,000 • 4 bed • 4 bath • 3322 ft²
5 bedroom detached house for sale in Grange Lane, Whitegate, Northwich, CW8 — £440,000 • 5 bed • 2 bath • 1419 ft²
4 bedroom semi-detached house for sale in Dalefords Lane, Whitegate, CW8 — £665,000 • 4 bed • 2 bath • 2337 ft²
3 bedroom semi-detached house for sale in Exceptional Sandiway home with over 2,000 sq ft, CW8 — £650,000 • 3 bed • 2 bath • 2041 ft²
4 bedroom barn conversion for sale in A Spacious And Special Home By Vale Royal Abbey, CW8 — £985,000 • 4 bed • 3 bath • 3997 ft²
5 bedroom detached house for sale in An exceptional family home in a breathtaking setting, CW8 — £2,150,000 • 5 bed • 3 bath • 5503 ft²














































































































































































































































