Chain-free Victorian terrace with big rooms and renovation potential, close to local amenities..
Chain-free freehold probate sale
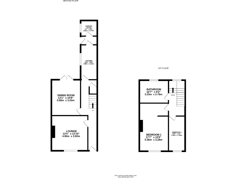
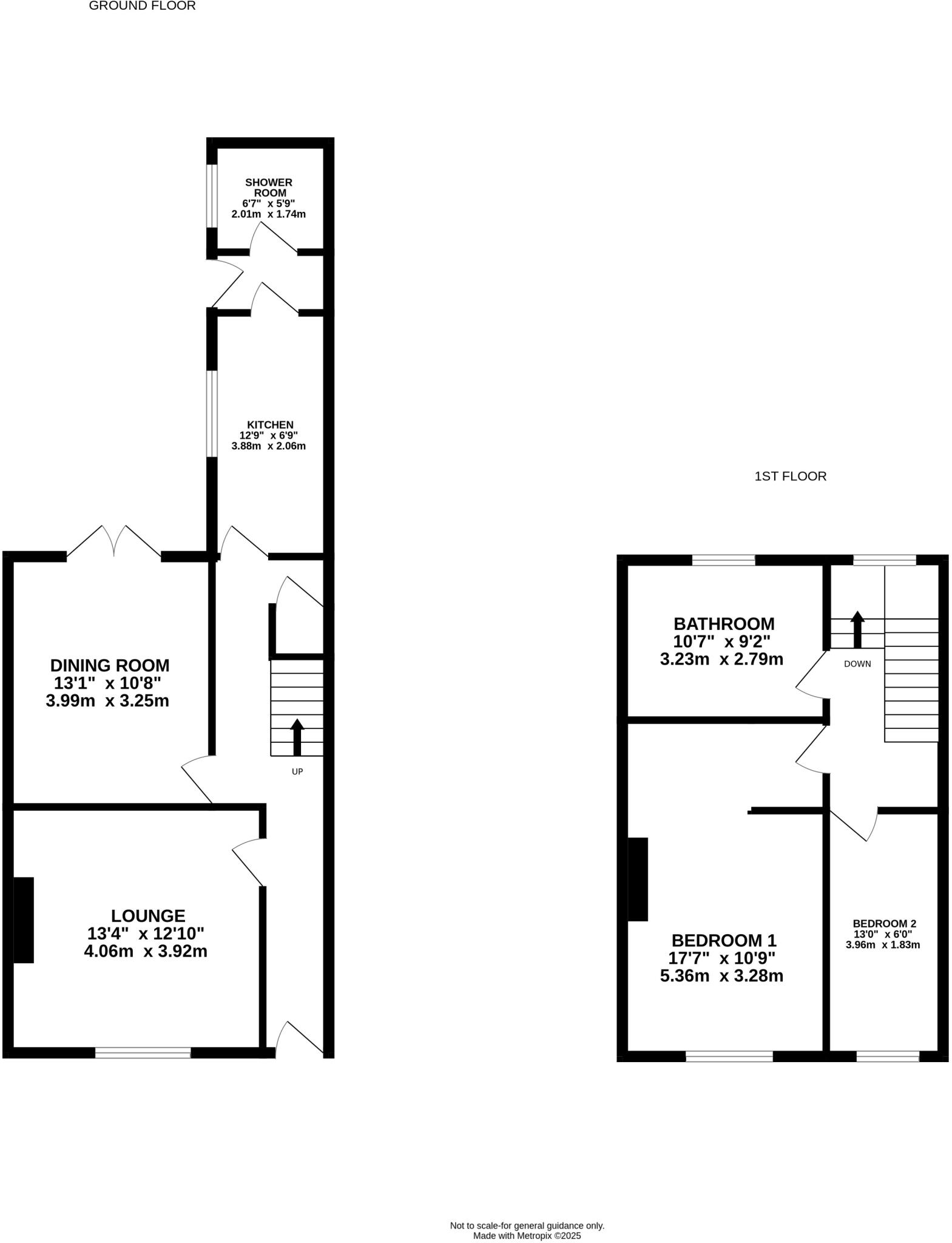
Two bedrooms with separate lounge and dining room
Two bathrooms—ground shower and large first-floor bathroom
Requires cosmetic updating and some renovation throughout
Double glazing and mains gas central heating present
Stone walls likely uninsulated—may need energy upgrades
Situated in former mining area; above-average local crime
Small enclosed rear yard; limited mobile signal
This mid-terraced Victorian home on Mill Street offers a roomy two-bedroom layout and clear potential for a first-time buyer or investor prepared to refresh the property. The house is chain-free and sold freehold as a probate sale, so a straightforward sale process is likely once probate is granted. Broadly usable living space includes separate lounge and dining rooms, a kitchen, ground-floor shower room and a larger first-floor bathroom — useful for families or sharers.
The property benefits from mains gas central heating, double glazing fitted since 2002 and reasonable broadband options (up to ultrafast where available). An enclosed rear yard gives private outdoor space in a small-town setting with local shops, a convenience store and several well-rated primary and secondary schools nearby.
Material points to note: the house requires cosmetic updating and general renovation, and the stone walls are assumed uninsulated which will affect heating efficiency and renovation costs. The location is in a former mining area and local crime levels are above average; prospective buyers should factor potential insurance or survey implications into their plans. Mobile phone signal is limited.
At £70,000 for about 802 sq ft, the property represents value for those willing to invest time and money to modernise — ideal for a practical first-time buyer seeking space and low council tax, or an investor targeting rental demand in a working-town catchment.
2 bedroom terraced house for sale in Coronation Terrace, Willington, DL15 — £68,000 • 2 bed • 1 bath • 797 ft²
2 bedroom terraced house for sale in Carville Estate, Willington, Crook, DL15 — £66,000 • 2 bed • 1 bath • 786 ft²
2 bedroom terraced house for sale in Boyne Street, Willington, DL15 — £55,000 • 2 bed • 1 bath • 948 ft²
2 bedroom end of terrace house for sale in Lydia Street, Willington, DL15 — £70,000 • 2 bed • 1 bath • 679 ft²
2 bedroom end of terrace house for sale in York Terrace, Willington, DL15 — £77,500 • 2 bed • 1 bath • 851 ft²
3 bedroom house for sale in Carville Terrace, Willington, Crook, DL15 — £74,000 • 3 bed • 1 bath • 863 ft²














































