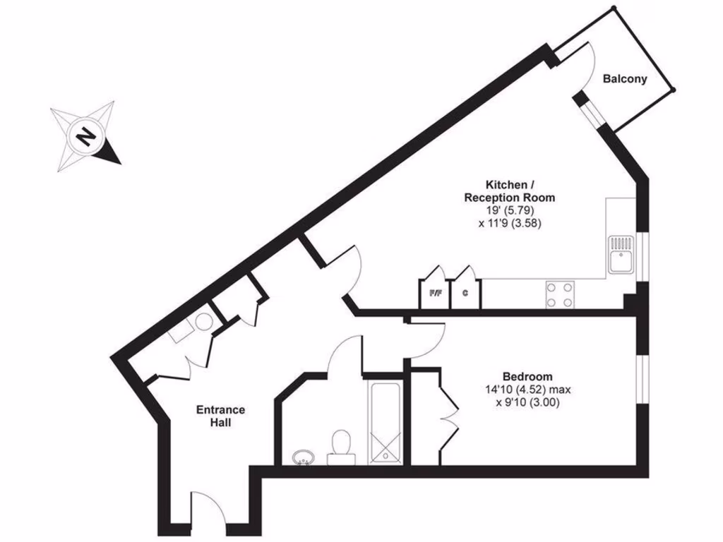
Sunny balcony, allocated parking and convenient town-centre location for first-time buyers.
55% shared ownership with option to staircase or buy outright
A bright, generously sized one-bedroom apartment in the heart of Tonbridge, offered as 55% shared ownership with the option to buy a higher share or purchase outright. The open-plan living area is filled with natural light and opens onto a sunny balcony, extending the living space for morning coffee or relaxed evenings. The modern fitted kitchen and thoughtful built-in storage keep the apartment feeling tidy and move-in ready.
Practical features include an allocated off-street parking space, a long lease (114 years remaining) and a large overall footprint (764 sq ft) unusual for a one-bedroom. The property is heated via a community scheme, which can simplify maintenance but may involve communal service charges — check current costs. Council tax is described as affordable.
Important considerations: this is a shared ownership leasehold (initial 55% share) so buyers should be comfortable with shared ownership rules and costs, and confirm staircasing terms if planning to buy more. The local area carries an above-average crime level and a medium flood risk; purchasers should obtain specific insurance and local-risk advice. The flat sits in a convenient town-centre location, close to mainline rail, shops and a range of schools, making it suitable for first-time buyers, professionals or investors looking for low-maintenance town living.
1 bedroom apartment for sale in Medway Wharf Road, Tonbridge, Kent, TN9 — £210,000 • 1 bed • 1 bath • 494 ft²
1 bedroom flat for sale in Sovereign Way, Tonbridge, Kent, TN9 — £120,000 • 1 bed • 1 bath • 1768 ft²
1 bedroom apartment for sale in Medway Wharf Road, Tonbridge, Kent, TN9 — £52,500 • 1 bed • 1 bath • 494 ft²
1 bedroom flat for sale in Medway Wharf Road, Tonbridge, TN9 1SY, TN9 — £87,500 • 1 bed • 1 bath • 480 ft²
1 bedroom apartment for sale in Medway Wharf Road, Tonbridge, Kent, TN9 — £109,995 • 1 bed • 1 bath • 457 ft²
2 bedroom apartment for sale in Avebury Avenue, Tonbridge, Kent, TN9 — £115,000 • 2 bed • 1 bath • 667 ft²






































