**Standout Features:**
- Centrally located 2-bedroom flat in Chelmsford
- Newly extended lease with 140 years remaining
- Bright, contemporary living spaces with double glazing
- Allocated off-street parking and communal green areas
- Proximity to local amenities, schools, and transport links (0.8 miles to mainline railway)
**Concise Summary:**
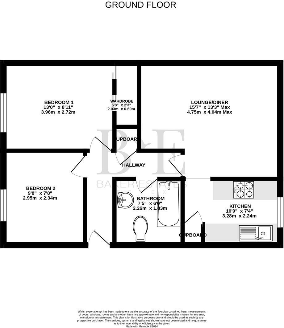
Discover this charming two-bedroom flat situated just 0.9 miles from Chelmsford City Centre. Ideal for first-time buyers or young families, the property features a spacious lounge/dining area that opens to a functional kitchen, alongside two comfortably sized bedrooms—one with built-in wardrobes. Enjoy the benefit of a modern bathroom and an allocated off-street parking space, all set against the backdrop of lush communal green areas for relaxation and play.
The property offers an attractive leasehold with a low ground rent and a manageable service charge, presenting a solid investment or cozy living option. With convenient access to quality schools, local amenities, and fast transport links, this home will not last long on the market. Seize the opportunity to make this delightful flat your new home, where comfort and convenience await!
2 bedroom flat for sale in Lynmouth Avenue, CHELMSFORD, CM2 — £245,000 • 2 bed • 1 bath • 583 ft²
2 bedroom flat for sale in Hall Street, Chelmsford, CM2 — £210,000 • 2 bed • 1 bath • 519 ft²
2 bedroom flat for sale in Mary Munnion Quarter, Chelmsford, CM2 — £270,000 • 2 bed • 1 bath • 592 ft²
2 bedroom flat for sale in Ramshaw Drive, Chelmsford, CM2 — £200,000 • 2 bed • 1 bath • 415 ft²
2 bedroom flat for sale in Parkinson Drive, Central, Chelmsford, CM1 — £180,000 • 2 bed • 1 bath • 603 ft²
2 bedroom apartment for sale in Goodier Road, Chelmsford, CM1 — £240,000 • 2 bed • 1 bath • 546 ft²






























