Modern four-bedroom family home with large garden and three-car driveway in sought-after Wimblebury..
Newly renovated four-bedroom detached family home
Stunning open-plan kitchen and living area with skylight
South-west facing two-tier rear garden, good for entertaining
Driveway for three cars plus compact integral garage
Excellent local schooling and close to Cannock Chase
Total internal size approx. 984 sq ft — relatively small
Two bathrooms only (en-suite + family bathroom)
Double glazing (installed before 2002) and mains gas heating
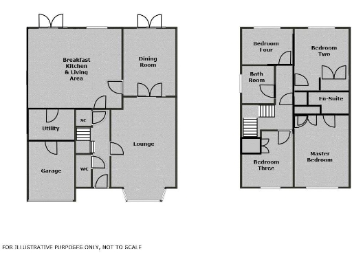
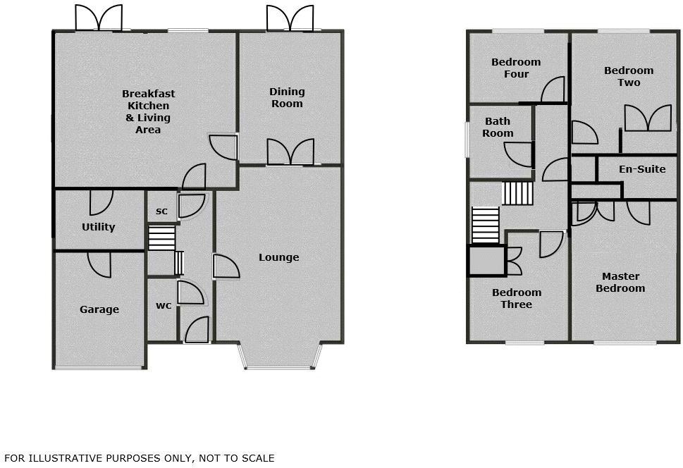
This immaculately presented four-bedroom detached home in a quiet Wimblebury cul-de-sac is aimed squarely at families seeking a ready-to-move-in property near excellent schools and green space. The house has been modernised throughout with contemporary fixtures, an impressive open-plan breakfast kitchen and living area with pitched ceiling and skylight, plus a separate lounge and dining room for flexible family living.
Practical benefits include a three-car driveway, integral garage with electric roller shutter, and a useful utility room. The south-west facing two-tier rear garden captures sun for much of the day and offers a decent plot size for outdoor family time and entertaining. The property is double-glazed and heated by a mains-gas boiler with radiators.
Notable constraints to be aware of: the total internal area is relatively small at about 984 sq ft for four bedrooms, and there are two bathrooms (one en-suite and one family bathroom), which may feel limited for larger households. Council tax is moderate. The property is modernised and ready to occupy, so major renovation is not required, but the integral garage is compact and some buyers may prefer larger ancillary storage or off-street garaging.
Set close to Cannock Chase and local commuter routes (A5, A34, M6 Toll), the home suits families wanting good schooling, easy access to outdoor recreation and straightforward links to the Midlands motorway network.
4 bedroom detached house for sale in Watermint Close, Wimblebury, WS12 — £390,000 • 4 bed • 2 bath • 1066 ft²
4 bedroom detached house for sale in Kensington Place, Heath Hayes, Cannock, WS12 — £375,000 • 4 bed • 1 bath • 1380 ft²
3 bedroom detached house for sale in Ironstone Road, Burntwood, WS7 — £375,000 • 3 bed • 2 bath • 926 ft²
5 bedroom detached house for sale in Lewis Court, Hednesford, Cannock, WS12 — £425,000 • 5 bed • 3 bath • 1789 ft²
3 bedroom detached house for sale in Waterlily Close, Wimblebury, Cannock, Staffordshire, WS12 — £270,000 • 3 bed • 1 bath • 901 ft²
4 bedroom detached house for sale in Eights Croft, Burntwood, WS7 — £440,000 • 4 bed • 2 bath • 1126 ft²


































































































































