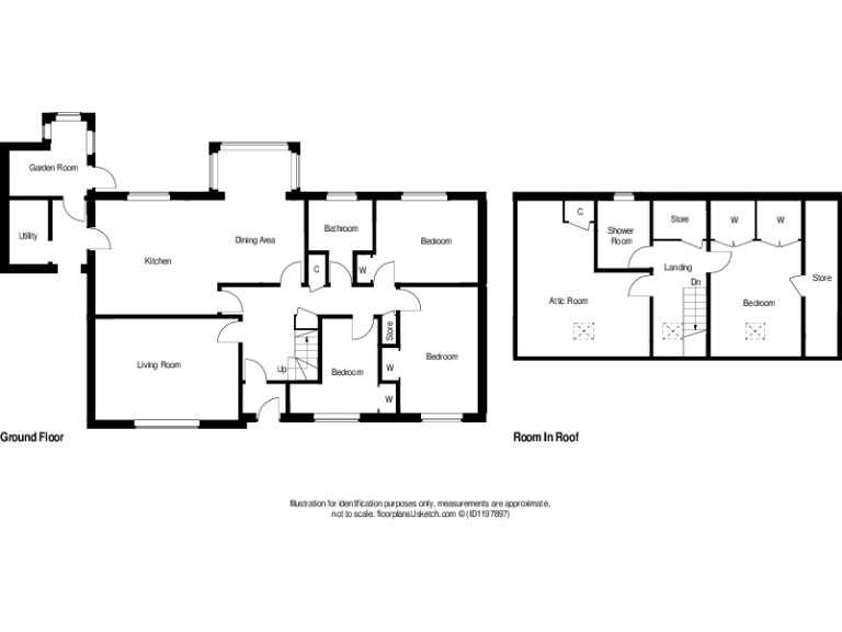
Large five-bedroom detached home with open-plan living and a productive mature garden..
Five well-proportioned bedrooms across ground and first floors
A spacious five-bedroom detached home arranged over two levels, offering flexible family living with generous reception space and an expansive open-plan kitchen, dining area and sunroom. The layout suits multi-generational households or anyone wanting distinct living, working and entertaining zones. The principal ground-floor bedroom is south-facing and king-size, while two further double bedrooms are on the ground floor and two large bedrooms occupy the first floor.
The property sits on a well-maintained plot with a mature, productive rear garden that includes a greenhouse, vegetable beds, fruit cages, herb beds, composter and a raised paved patio. Practical extras include an integral single garage with workshop space, a capacious driveway, gas central heating, double glazing and a useful rear porch and store room linking to the garage.
Notable points to be realistic about: the energy rating is D and council tax band F (expensive). The wider area is described as an ageing suburban locality with higher deprivation indicators, which may influence future resale values. The sale is freehold and the price has been reduced by £10,000 below the home report valuation. Some included appliances and services have not been tested and measurements are for guidance only.
5 bedroom detached house for sale in Mcmillan Avenue, Elgin, IV30 — £280,000 • 5 bed • 4 bath • 1518 ft²
3 bedroom detached house for sale in Kirkland Hill, Lhanbryde, Elgin, Moray, IV30 — £220,000 • 3 bed • 2 bath • 1100 ft²
7 bedroom detached house for sale in York House, Mosstowie, IV30 — £575,000 • 7 bed • 6 bath • 4106 ft²
5 bedroom bungalow for sale in East Road, Elgin, Moray, IV30 — £330,000 • 5 bed • 5 bath • 2188 ft²
4 bedroom detached bungalow for sale in Rowan Lea, Elgin, IV30 6FP, IV30 — £330,000 • 4 bed • 2 bath
5 bedroom detached house for sale in Hamilton Drive, Elgin, IV30 — £400,000 • 5 bed • 2 bath • 2190 ft²


































































































